Lancaster Gardens, Plymouth, Devon, PL5
By Homewise
£ 60,250
Reviews
3 out of 5 stars
Homewise says ..
Guide price for a Home for Life Lifetime Lease for OVER 60s tailored to your personal circumstances and requirements. Your price may vary. OVER 60S could benefit from SAVINGS of up to 59% from the market value with a one-off payment for a Lifetime Lease on this property. £60...
Property Oracle says ..
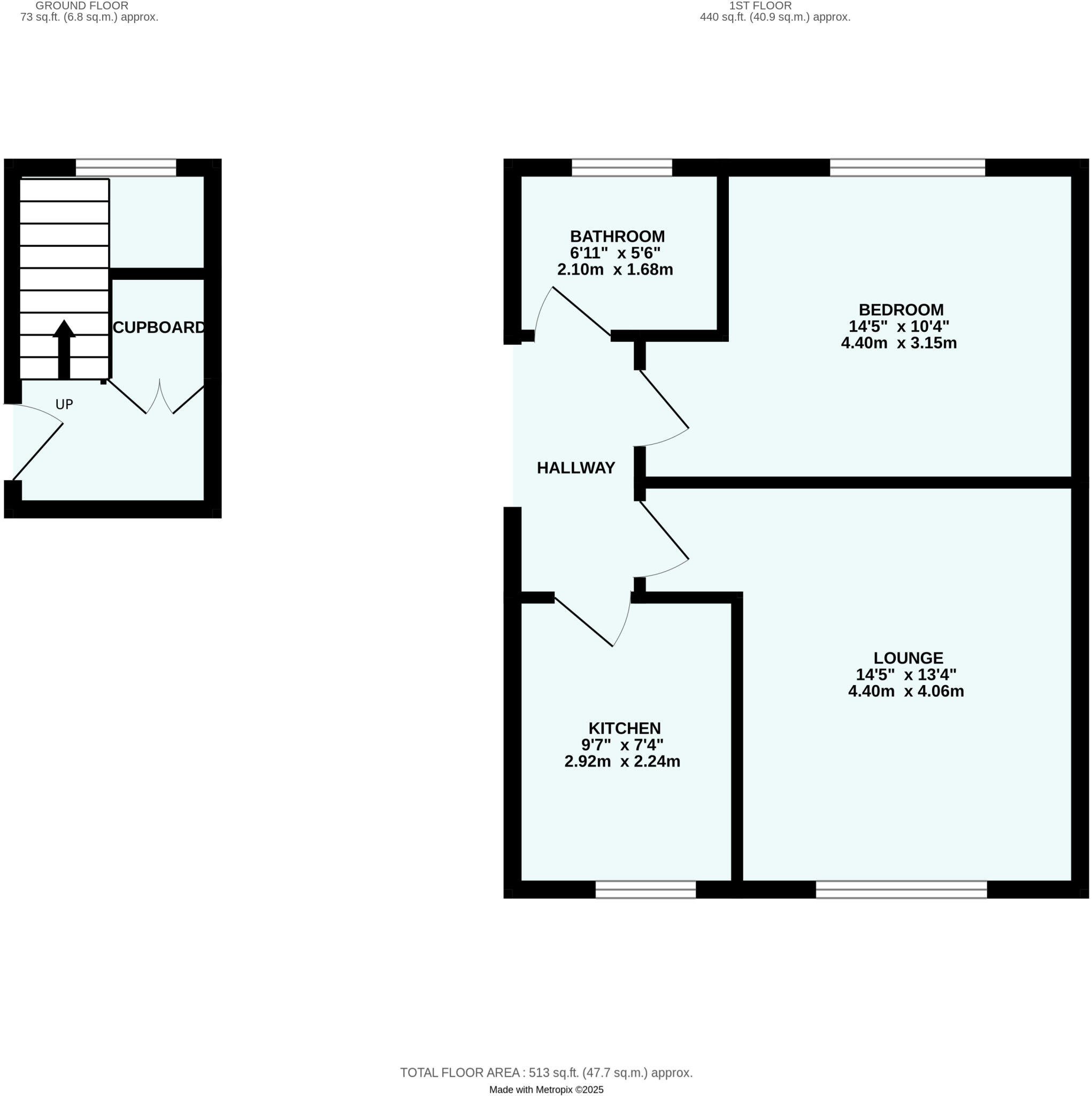
This is a one-bedroom apartment located in Lancaster Gardens, Plymouth. The property is listed at £60,250 and has a square footage of 513. The property is located close to local schools. While the property could benefit from some modernisation, the price is significantly below the average for the area, suggesting it could be a good investment.
Therefore, we give this property 6 / 10. *Disclaimer: This is our option and does constitute a recommendation or financial advice. Do your own research. *
- Price
- 8
- Condition
- 5
- Location
- 6
- Land
- 6
- Bedrooms
- 1
- Bathrooms
- 1
- Sqft (est)
- 513.00
The heatmap indicates the level of crime in the area. The color of the heatmap indicates the crime severity and recency.
Metrics Year-on-Year
- Average area value
- 231,250.00 £Decreased by 12.40 %
- Est sale value
- 145,179.00 £Decreased by 10.44 %
- Average area rental value
- 1,650.00 £/moIncreased by 107.29 %
- Est letting value
- 1,026.00 £/mo
- Est rental Yield
- 8.56 %Increased by 136.46 %
- Crime Rate
- 6.00 %Unchanged by 0.00 %
Agent Activity
Homewise created the listing.
Nearby Schools
| Name | Type | Ofsted | Distance |
|---|---|---|---|
| Whitleigh Community Primary School | Foundation School | Good | 0.15 KM |
| Woodlands School | Foundation Special School | Good | 0.55 KM |
| Whitleigh Children'S Centre | Children's Centre | 0.97 KM | |
| Woodfield Primary School | Academy Converter | Good | 1.04 KM |
| St Boniface'S Rc College | Academy Sponsor Led | Requires improvement | 1.43 KM |
Images
Nearby Streets
| Name | Average Price | Average Sqft | Distance |
|---|---|---|---|
| Silver Hill Close | £ 0 | 0 | 0.00 KM |
| Rothesay Gardens | £ 180,000 | 0 | 0.00 KM |
| Looseleigh Lane | £ 425,000 | 0 | 0.00 KM |
| Trowbridge Close | £ 105,000 | 0 | 0.00 KM |
| Frobisher Approach | £ 0 | 0 | 0.00 KM |
Nearby Transport
| Name | NLC | TLC | Distance |
|---|---|---|---|
| Plymouth | 3580 | PLY | 4.34 KM |
| Keyham | 3571 | KEY | 5.14 KM |
| St Budeaux Ferry Road | 3590 | SBF | 5.26 KM |
| St Budeaux Victoria Road | 3592 | SBV | 5.30 KM |
| Devonport | 3579 | DPT | 5.32 KM |
Nearby Listings
| Address | Price | Type | Score | Distance |
|---|---|---|---|---|
| Lancaster Gardens, Plymouth, Devon, PL5 | £ 60,250 | BUY | 6 / 10 | 0.00 KM |
| Lancaster Gardens, Plymouth, Devon | £ 90,000 | BUY | 5 / 10 | 0.01 KM |
| Whitleigh, Plymouth | £ 240,000 | BUY | 7 / 10 | 0.17 KM |
| Lancaster Gardens, Plymouth, Devon | £ 240,000 | BUY | 7 / 10 | 0.23 KM |
| Squirrel Close, Plymouth | £ 280,000 | BUY | 6 / 10 | 0.26 KM |
Nearby Properties
| Address | Price | Distance |
|---|---|---|
| 80 Lancaster Gardens | £ 80,000 | 0.00 KM |
| 84 Lancaster Gardens | £ 185,250 | 0.00 KM |
| 75 Lancaster Gardens | £ 145,500 | 0.00 KM |
| 61 Lancaster Gardens | £ 124,000 | 0.00 KM |
| 71 Lancaster Gardens | £ 136,500 | 0.00 KM |