MOVE online says ..
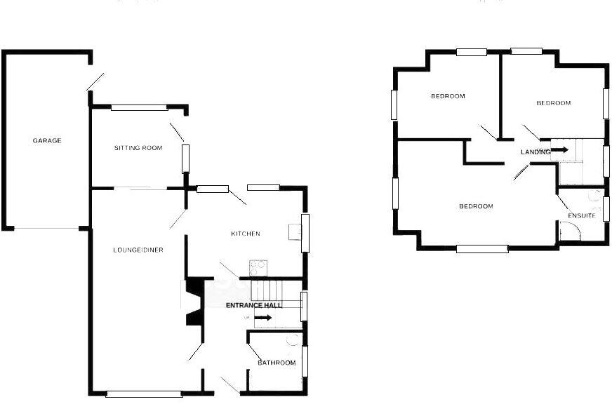
* THREE BEDROOM DETACHED FAMILY HOME * NO ONWARD CHAIN * This bright and spacious detached family home boasts three double bedrooms and is beautifully presented throughout. The property features a large lounge/diner with a charming log burner, a cozy sitting room, a stunning fitted kitchen, (cont.)
Property Oracle says ..
Therefore, we give this property 7 / 10. *Disclaimer: This is our option and does constitute a recommendation or financial advice. Do your own research. *
- Price
- 8
- Condition
- 8
- Location
- 7
- Land
- 7
- Bedrooms
- 3
- Bathrooms
- 2
- Sqft (est)
- 1,553.00
The heatmap indicates the level of crime in the area. The color of the heatmap indicates the crime severity and recency.
Metrics Year-on-Year
- Average area value
- 425,000.00 £Decreased by 8.87 %
- Est sale value
- 563,739.00 £Decreased by 7.16 %
- Average area rental value
- 2,435.00 £/moIncreased by 27.89 %
- Est letting value
- 3,106.00 £/moIncreased by 100.00 %
- Est rental Yield
- 6.88 %Increased by 40.41 %
- Crime Rate
- 22.00 %Unchanged by 0.00 %
from 466,353.00 £
from 607,223.00 £
from 1,904.00 £/mo
from 1,553.00 £/mo
from 4.90 %
from 22.00 %
Agent Activity
MOVE online created the listing.
Nearby Schools
| Name | Type | Ofsted | Distance |
|---|---|---|---|
| Hadleigh Junior School | Academy Converter | Good | 0.32 KM |
| Hadleigh Infant And Nursery School | Academy Converter | Good | 0.54 KM |
| Westwood Academy | Academy Converter | Outstanding | 1.34 KM |
| The King John School | Academy Converter | Good | 2.10 KM |
| The Deanes | Academy Sponsor Led | Requires improvement | 2.47 KM |
Images
Nearby Streets
| Name | Average Price | Average Sqft | Distance |
|---|---|---|---|
| Beech Road | £ 383,775 | 0 | 0.00 KM |
| Broughton Road | £ 0 | 0 | 0.00 KM |
| Shepherds Walk | £ 550,000 | 0 | 0.00 KM |
| Warren Road | £ 1,410,000 | 0 | 0.00 KM |
| Windsor Gardens | £ 325,000 | 0 | 0.00 KM |
Nearby Transport
| Name | NLC | TLC | Distance |
|---|---|---|---|
| Leigh-On-Sea | 7446 | LES | 3.20 KM |
| Rayleigh | 6884 | RLG | 4.58 KM |
| Benfleet | 7439 | BEF | 5.70 KM |
| Chalkwell | 7469 | CHW | 6.51 KM |
| Hockley | 6880 | HOC | 7.83 KM |
Nearby Listings
| Address | Price | Type | Score | Distance |
|---|---|---|---|---|
| Hadleigh, Benfleet, SS7 | £ 475,000 | BUY | 7 / 10 | 0.00 KM |
| Beech Road, Benfleet, SS7 | £ 400,000 | BUY | 7 / 10 | 0.08 KM |
| Castle Road, Hadleigh Essex | £ 550,000 | BUY | 6 / 10 | 0.09 KM |
| Ash Road, Hadleigh | £ 425,000 | BUY | 7 / 10 | 0.09 KM |
| Ash Road, Hadleigh | £ 350,000 | BUY | Unknown | 0.09 KM |
Nearby Properties
| Address | Price | Distance |
|---|---|---|
| 9 Ash Road | £ 180,000 | 0.07 KM |
| 9a Ash Road | £ 135,000 | 0.09 KM |
| 17 Ash Road | £ 327,000 | 0.09 KM |
| 8 Ash Road | £ 295,000 | 0.09 KM |
| 1 Ash Road | £ 78,000 | 0.09 KM |