Middle Street, Shaldon, Devon
BR

Middle Street, Shaldon, Devon

By Bradleys

£ 495,000

Reviews

4 out of 5 stars

Bradleys says ..

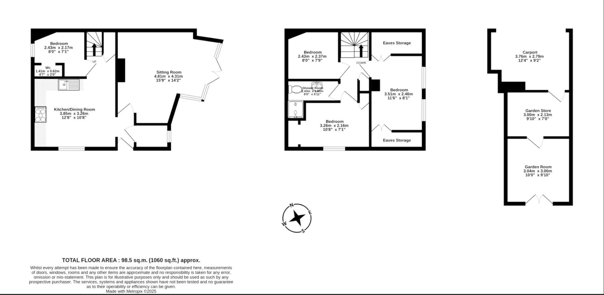
Attrative Cottage with garden & car port Charming character cottage in the heart of Shaldon with a lovely mature courtyard garden and small car port. Level position close to the beach, river and village shops. Three/four bedrooms, kitchen/breakfast room, lovely sitting room with f...

Property Oracle says ..

Shaldon is a highly desirable coastal village in Devon, known for its picturesque setting and strong community spirit. The property’s location on Middle Street places it within easy walking distance of the village’s amenities, including shops, restaurants, and the beach. The proximity to Shaldon Primary School is also a significant advantage for families. Teignmouth, with its railway station providing links to the wider region, is also relatively close. This contributes to a high location score.

The property appears well-maintained and presented. The images show a clean and updated interior, with modern fixtures and fittings in the bathroom. While some rooms retain traditional features, the overall impression is one of a comfortable and well-cared-for home. There is no obvious evidence of significant repair or renovation needs.

The property benefits from a substantial garden, which is well-landscaped and offers a private outdoor space. The inclusion of a shed and garage further enhances its appeal. The size of the plot, at 1,060 square feet, is also a positive attribute.

Considering the property’s size (808 square feet), condition, location, and the inclusion of a garden and garage, the list price of £495,000 appears reasonable in comparison to the average price per square foot in the area (£442). While some nearby properties have sold for higher prices, these may be larger or offer different features. The property’s list price is slightly above the average house price in the area, but this is likely justified by its desirable location and well-maintained condition.

Therefore, we give this property 8 / 10. *Disclaimer: This is our option and does constitute a recommendation or financial advice. Do your own research. *

Price
8
Condition
9
Location
9
Land
8
Bedrooms
4
Bathrooms
1
Sqft (est)
808.00
Lot (est)
1,060.00

The heatmap indicates the level of crime in the area. The color of the heatmap indicates the crime severity and recency.

Metrics Year-on-Year

Average area value
305,488.00 £
Decreased by 9.52 %
from 337,636.00 £
Est sale value
284,416.00 £
Increased by 33.84 %
from 212,504.00 £
Average area rental value
1,004.00 £/mo
Decreased by 1.08 %
from 1,015.00 £/mo
Est letting value
808.00 £/mo
from 0.00 £/mo
Est rental Yield
3.94 %
Increased by 9.14 %
from 3.61 %
Crime Rate
3.00 %
Unchanged by 0.00 %
from 3.00 %

Agent Activity

  • Bradleys created the listing.

Nearby Schools

NameTypeOfstedDistance
Shaldon Primary SchoolAcademy Converter0.43 KM
Dawlish Children'S CentreChildren's Centre1.10 KM
Teignmouth Children'S CentreChildren's Centre1.10 KM
Our Lady And St Patrick'S Roman Catholic Primary SchoolAcademy Sponsor LedGood1.38 KM
Teignmouth Community School, Exeter RoadAcademy ConverterRequires improvement1.45 KM

Images

Picture No. 79 Picture No. 49 Picture No. 47 Picture No. 37 Picture No. 77 Picture No. 51 Picture No. 43 Picture No. 67 Picture No. 44 Picture No. 14 Picture No. 41 Picture No. 38 Picture No. 10 Picture No. 09 Picture No. 12 Picture No. 08 Picture No. 27 Picture No. 50 Picture No. 28 Picture No. 45 Picture No. 57 Picture No. 58

Nearby Streets

NameAverage PriceAverage SqftDistance
Home Yards £ 420,00000.00 KM
Oystercatcher Court £ 000.00 KM
The Embankment £ 000.00 KM
Park Hill £ 280,00000.00 KM
Powderham Terrace £ 000.00 KM

Nearby Transport

NameNLCTLCDistance
Teignmouth3430TGM1.45 KM
Dawlish3408DWL6.35 KM
Torre3432TRR8.74 KM
Dawlish Warren3409DWW9.41 KM
Torquay3434TQY9.76 KM

Nearby Listings

AddressPriceTypeScoreDistance
Middle Street, Shaldon, Devon £ 495,000BUY8 / 100.00 KM
Penrhyn Place, Strand, Shaldon £ 420,000BUYUnknown0.04 KM
Strand, Shaldon, Devon £ 325,000BUY7 / 100.05 KM
Middle Street, Shaldon, TQ14 £ 575,000BUYUnknown0.05 KM
Strand, Shaldon, Teignmouth, Devon £ 795,000BUY7 / 100.05 KM

Nearby Properties

AddressPriceDistance
28 Middle Street £ 278,0000.01 KM
15 Middle Street £ 308,0000.01 KM
23 Middle Street £ 250,0000.01 KM
2 Middle Street £ 45,0000.01 KM
25 Middle Street £ 95,0000.01 KM