Fennel Road, Mere
By Boatwrights Estate Agents
£ 250,000
Reviews
3 out of 5 stars
Boatwrights Estate Agents says ..
Positioned at the end of the cul de sac, in a quiet, tucked away position, within easy reach of the town centre and amenities, with garden, garage and parking. No onward chain.
Property Oracle says ..
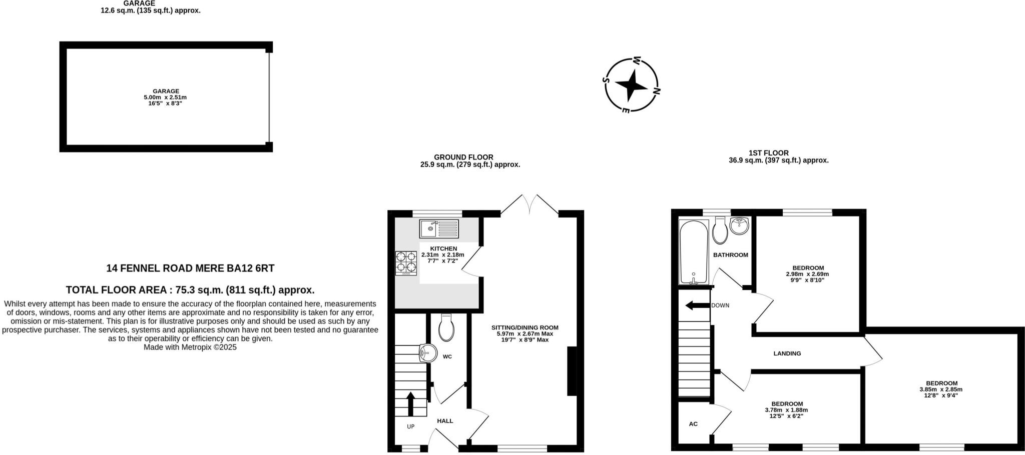
This is a three-bedroom terraced house in Mere, Wiltshire. The property is in reasonable condition, but would benefit from some modernisation. It has a good-sized garden and is located close to local amenities, including a school and train station. The asking price is reasonable for the area.
Therefore, we give this property 7 / 10. *Disclaimer: This is our option and does constitute a recommendation or financial advice. Do your own research. *
- Price
- 8
- Condition
- 6
- Location
- 7
- Land
- 7
- Bedrooms
- 3
- Bathrooms
- 1
- Sqft (est)
- 810.52
The heatmap indicates the level of crime in the area. The color of the heatmap indicates the crime severity and recency.
Metrics Year-on-Year
- Average area value
- 431,250.00 £Increased by 5.19 %
- Est sale value
- 350,955.16 £Increased by 65.90 %
- Average area rental value
- 1,300.00 £/moDecreased by 23.48 %
- Est letting value
- 810.52 £/moUnchanged by 0.00 %
- Est rental Yield
- 3.62 %Decreased by 27.16 %
- Crime Rate
- 77.00 %Unchanged by 0.00 %
Agent Activity
Boatwrights Estate Agents created the listing.
Nearby Schools
| Name | Type | Ofsted | Distance |
|---|---|---|---|
| Mere Children'S Centre | Children's Centre | 0.27 KM | |
| Mere School | Community School | Good | 0.28 KM |
| Milton-On-Stour Church Of England Primary School | Voluntary Aided School | Good | 4.53 KM |
| Whitesheet Church Of England Primary Academy | Academy Sponsor Led | Good | 5.54 KM |
| Gillingham School | Voluntary Controlled School | Good | 6.10 KM |
Images
Nearby Streets
| Name | Average Price | Average Sqft | Distance |
|---|---|---|---|
| Spinners Way | £ 449,000 | 0 | 0.00 KM |
| Springfield Road | £ 350,000 | 0 | 0.00 KM |
| Nursery Gardens | £ 0 | 0 | 0.00 KM |
| Water Street | £ 1,025,000 | 0 | 0.00 KM |
| Grange Cottages | £ 260,000 | 0 | 0.00 KM |
Nearby Transport
| Name | NLC | TLC | Distance |
|---|---|---|---|
| Gillingham (Dorset) | 5796 | GIL | 6.61 KM |
Nearby Listings
| Address | Price | Type | Score | Distance |
|---|---|---|---|---|
| Fennel Road, Mere | £ 250,000 | BUY | 7 / 10 | 0.00 KM |
| Fennel Road, Mere | £ 229,950 | BUY | 7 / 10 | 0.00 KM |
| Fennel Road, Mere, BA12 6RT | £ 265,000 | BUY | 6 / 10 | 0.04 KM |
| Spinners Way, Mere, Warminster, Wiltshire, BA12 | £ 410,000 | BUY | 7 / 10 | 0.04 KM |
| Fennel Road, Mere, BA12 6RT | £ 495,000 | BUY | 6 / 10 | 0.07 KM |
Nearby Properties
| Address | Price | Distance |
|---|---|---|
| 10 Fennel Road | £ 162,000 | 0.01 KM |
| 6 Fennel Road | £ 179,000 | 0.01 KM |
| 16 Fennel Road | £ 147,000 | 0.01 KM |
| 14 Fennel Road | £ 97,500 | 0.01 KM |
| 12 Fennel Road | £ 164,000 | 0.01 KM |