FAIR BANK CLOSE, GRIMSBY
By Crofts Estate Agents
£ 179,000
Reviews
3 out of 5 stars
Crofts Estate Agents says ..
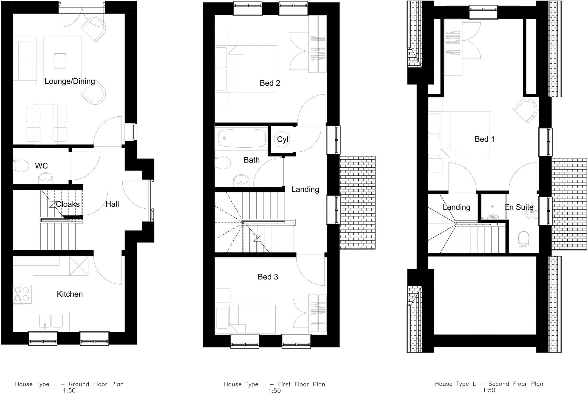
Situated upon the Clee Fields development, we are pleased to able to offer to the market this three storey semi-detached family home which has been improved by the current vendor and also has a larger than average garden due to some extra land purchased when the owners first bought. Presented thr...
Property Oracle says ..
Therefore, we give this property 7 / 10. *Disclaimer: This is our option and does constitute a recommendation or financial advice. Do your own research. *
- Price
- 6
- Condition
- 8
- Location
- 7
- Land
- 7
- Bedrooms
- 3
- Bathrooms
- 2
- Sqft (est)
- 1,076.39
The heatmap indicates the level of crime in the area. The color of the heatmap indicates the crime severity and recency.
Metrics Year-on-Year
- Average area value
- 137,129.00 £Decreased by 23.46 %
- Est sale value
- 160,382.11 £Decreased by 12.87 %
- Average area rental value
- 586.00 £/moDecreased by 0.85 %
- Est letting value
- 0.00 £/mo
- Est rental Yield
- 5.13 %Increased by 29.55 %
- Crime Rate
- 12.00 %Unchanged by 0.00 %
from 179,149.00 £
from 184,062.69 £
from 591.00 £/mo
from 0.00 £/mo
from 3.96 %
from 12.00 %
Agent Activity
Crofts Estate Agents created the listing.
Nearby Schools
| Name | Type | Ofsted | Distance |
|---|---|---|---|
| Central Outreach | Children's Centre Linked Site | 0.43 KM | |
| Welholme Academy | Academy Converter | Good | 0.49 KM |
| Edward Heneage Primary Academy | Academy Sponsor Led | Good | 0.49 KM |
| Saint Mary'S Catholic Voluntary Academy | Academy Sponsor Led | Good | 0.62 KM |
| Special Educational Needs Support Service (Senss) | Miscellaneous | 0.71 KM |
Images
Nearby Streets
| Name | Average Price | Average Sqft | Distance |
|---|---|---|---|
| Fairbank Drive | £ 0 | 0 | 0.00 KM |
| Wragby Street | £ 0 | 0 | 0.00 KM |
| Ross Mews | £ 0 | 0 | 0.00 KM |
| The Square | £ 0 | 0 | 0.00 KM |
| Bradley Street | £ 0 | 0 | 0.00 KM |
Nearby Transport
| Name | NLC | TLC | Distance |
|---|---|---|---|
| Grimsby Docks | 6276 | GMD | 1.50 KM |
| New Clee | 6289 | NCE | 1.64 KM |
| Grimsby Town | 6280 | GMB | 1.95 KM |
| Cleethorpes | 6274 | CLE | 4.44 KM |
| Great Coates | 6275 | GCT | 6.89 KM |
Nearby Listings
| Address | Price | Type | Score | Distance |
|---|---|---|---|---|
| FAIR BANK CLOSE, GRIMSBY | £ 179,000 | BUY | 7 / 10 | 0.00 KM |
| Fairbank Close, Grimsby | £ 165,000 | BUY | 7 / 10 | 0.00 KM |
| 3 Fair Bank Close, Grimsby, Lincolnshire DN32 9SB | £ 100,000 | BUY | 6 / 10 | 0.01 KM |
| Fair Bank Close, Grimsby | £ 149,950 | BUY | 7 / 10 | 0.03 KM |
| Cleefield Drive, Grimsby | £ 155,000 | BUY | 7 / 10 | 0.04 KM |
Nearby Properties
| Address | Price | Distance |
|---|---|---|
| 29 Ropery Street | £ 50,000 | 0.06 KM |
| 33 Ropery Street | £ 68,500 | 0.06 KM |
| 27 Ropery Street | £ 61,000 | 0.06 KM |
| 16 Donnington Street | £ 29,500 | 0.09 KM |
| 49 Ladysmith Road | £ 32,500 | 0.09 KM |