Larpent Avenue, Putney, London, SW15
By Foxtons
£ 750,000
Reviews
4 out of 5 stars
Foxtons says ..
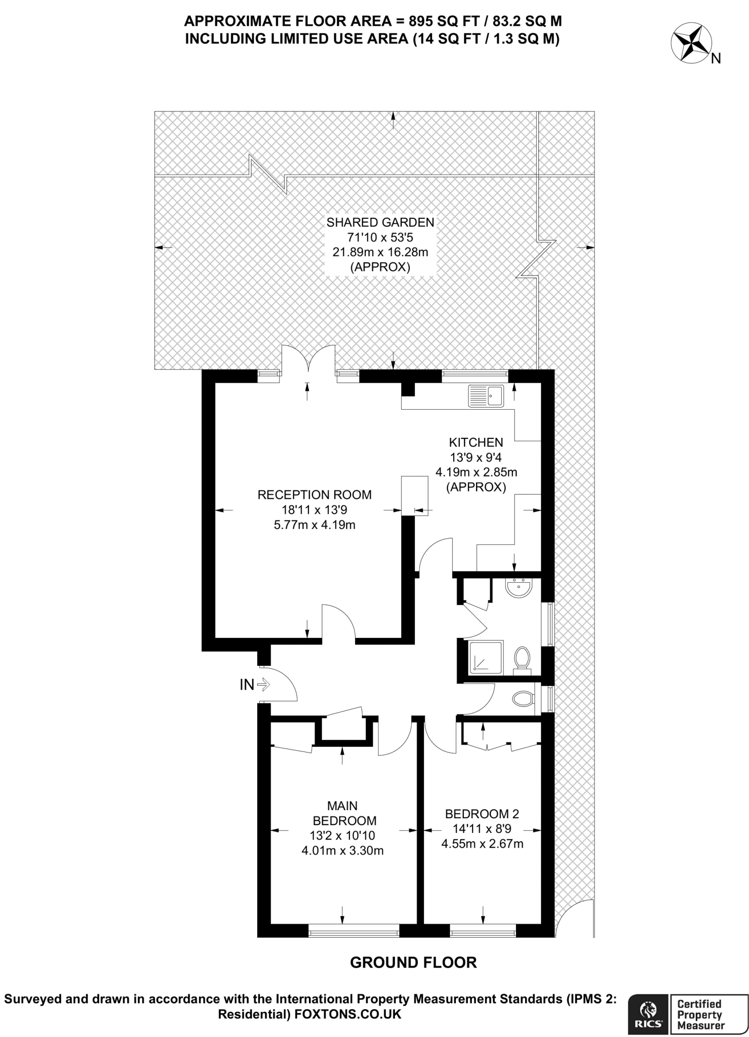
Featuring direct access to a beautiful shared garden, this fantastic two bedroom flat is located on the ground floor of a private development on a peaceful residential road.
Property Oracle says ..
This 2-bedroom flat in Putney, London is located in a desirable area with good access to transportation and schools. The property benefits from a private garden, a feature not always found in flats. While the images show a well-maintained interior, the lack of information on the property’s age and any potential structural issues prevents a definitive assessment of its overall condition. The list price is significantly below the average price for the area, suggesting it may represent good value, however, further investigation into the specific condition and any potential hidden costs is recommended. The small plot size is a factor to consider.
Therefore, we give this property 8 / 10. *Disclaimer: This is our option and does constitute a recommendation or financial advice. Do your own research. *
- Price
- 8
- Condition
- 7
- Location
- 9
- Land
- 8
- Bedrooms
- 2
- Bathrooms
- 1
- Sqft (est)
- 895.00
The heatmap indicates the level of crime in the area. The color of the heatmap indicates the crime severity and recency.
Metrics Year-on-Year
- Average area value
- 721,658.00 £Decreased by 13.09 %
- Est sale value
- 929,010.00 £Increased by 82.43 %
- Average area rental value
- 2,654.00 £/moDecreased by 13.47 %
- Est letting value
- 2,685.00 £/moIncreased by 50.00 %
- Est rental Yield
- 4.41 %Decreased by 0.45 %
- Crime Rate
- 1.00 %Unchanged by 0.00 %
Agent Activity
Foxtons created the listing.
Nearby Schools
| Name | Type | Ofsted | Distance |
|---|---|---|---|
| Granard Primary School And Children'S Centre | Children's Centre | 0.32 KM | |
| Granard Primary School | Community School | Good | 0.32 KM |
| Ark Putney Academy | Academy Converter | Good | 0.60 KM |
| Falcons School For Girls | Other Independent School | 0.63 KM | |
| All Saints' Cofe Primary School, Putney | Voluntary Aided School | Outstanding | 1.10 KM |
Images
Nearby Streets
| Name | Average Price | Average Sqft | Distance |
|---|---|---|---|
| Whitnell Road | £ 0 | 0 | 0.00 KM |
| Parkmead | £ 0 | 0 | 0.00 KM |
| North Lodge Close | £ 550,000 | 0 | 0.00 KM |
| Bowling Green Close | £ 2,800,000 | 0 | 0.00 KM |
| Jordan Court | £ 0 | 0 | 0.00 KM |
Nearby Transport
| Name | NLC | TLC | Distance |
|---|---|---|---|
| Putney | 5603 | PUT | 1.54 KM |
| Barnes | 5551 | BNS | 1.69 KM |
| Barnes Bridge | 5580 | BNI | 2.95 KM |
| Mortlake | 5600 | MTL | 4.25 KM |
| Wandsworth Town | 5576 | WNT | 4.65 KM |
Nearby Listings
| Address | Price | Type | Score | Distance |
|---|---|---|---|---|
| Larpent Avenue, Putney, London, SW15 | £ 750,000 | BUY | 8 / 10 | 0.00 KM |
| Larpent Avenue, Putney, London, SW15 | £ 600,000 | BUY | 7 / 10 | 0.00 KM |
| Larpent Avenue, Putney, London, SW15 | £ 3,795,000 | BUY | Unknown | 0.09 KM |
| Chartfield Avenue, Putney | £ 3,900,000 | BUY | Unknown | 0.10 KM |
| Luttrell Avenue, Putney, London, SW15 | £ 2,095,000 | BUY | 7 / 10 | 0.12 KM |
Nearby Properties
| Address | Price | Distance |
|---|---|---|
| 37 Larpent Avenue | £ 2,655,000 | 0.07 KM |
| 43 Larpent Avenue | £ 350,000 | 0.07 KM |
| 25a Larpent Avenue | £ 215,000 | 0.07 KM |
| 25b Larpent Avenue | £ 655,000 | 0.07 KM |
| 30 Larpent Avenue | £ 3,362,500 | 0.07 KM |