Pearl Close, Knaresborough, HG5
By Myrings Estate Agents
£ 515,000
Reviews
4 out of 5 stars
Myrings Estate Agents says ..
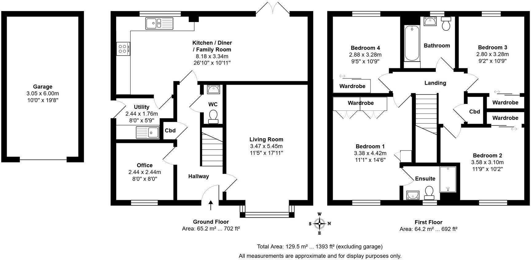
HIGHLY ENERGY EFFICIENT HOME - 4 DOUBLE BEDROOMS 2 BATHROOMS - 1,393 SQFT OF ACCOMMODATION - CONSTRUCTED IN 2023 WITH REMAINING NEW BUILD WARRANTY - SECURE WEST FACING REAR GARDEN - MULTI-VEHICLE DRIVEWAY AND GARAGE - ASPIN PRIMARY SCHOOL 4 MINUTES DRIVE - KING JAMES SCHOOL 4 MINUTES DRIVE - TOWN...
Property Oracle says ..
Location: Knaresborough is a desirable town in North Yorkshire, known for its castle and market town atmosphere. The property’s proximity to Knaresborough Castle and several schools (Aspin Park Academy, The Forest School, Meadowside Academy, and King James’S School) adds to its appeal. The presence of nearby train stations (Knaresborough, Starbeck, and Hornbeam Park) further enhances its accessibility. Condition: Based on the provided images, the property appears to be in excellent condition. It is modern, well-maintained, and shows no signs of needing repair or renovation. The kitchen, bathrooms, and bedrooms all appear recently updated and stylish. Land: The property includes a sizeable garden, as evidenced by the photos. The garden appears well-maintained and offers a good outdoor space. Price: The list price of £515,000 is slightly above the average price of £410,845 for the area. However, considering the property’s modern condition, the inclusion of a garden, and its location in Knaresborough, the price seems reasonable. The average price per square foot in the area is £309, while this property’s price per square foot is approximately £369. This is a premium, but justified given the property’s condition and features. Nearby comparable properties, such as the detached property on Red Admiral Way listed at £525,000, support this assessment.
Therefore, we give this property 8 / 10. *Disclaimer: This is our option and does constitute a recommendation or financial advice. Do your own research. *
- Price
- 8
- Condition
- 10
- Location
- 9
- Land
- 8
- Bedrooms
- 4
- Bathrooms
- 2
- Sqft (est)
- 1,393.93
The heatmap indicates the level of crime in the area. The color of the heatmap indicates the crime severity and recency.
Metrics Year-on-Year
- Average area value
- 425,000.00 £Increased by 22.40 %
- Est sale value
- 551,996.28 £Increased by 78.38 %
- Average area rental value
- 1,098.00 £/moDecreased by 12.09 %
- Est letting value
- 1,393.93 £/mo
- Est rental Yield
- 3.10 %Decreased by 28.24 %
- Crime Rate
- 3.00 %Unchanged by 0.00 %
Agent Activity
Myrings Estate Agents created the listing.
Nearby Schools
| Name | Type | Ofsted | Distance |
|---|---|---|---|
| Aspin Park Academy | Academy Converter | 0.95 KM | |
| The Forest School | Academy Special Converter | 0.97 KM | |
| Meadowside Academy | Academy Converter | 1.61 KM | |
| King James'S School | Community School | Good | 1.70 KM |
| East & South Harrogate & Knaresborough Children'S Centre | Children's Centre | 1.75 KM |
Images
Nearby Streets
| Name | Average Price | Average Sqft | Distance |
|---|---|---|---|
| Pearl Close | £ 0 | 0 | 0.00 KM |
| Gatekeeper Close | £ 419,950 | 0 | 0.00 KM |
| Bishopdale Close | £ 350,000 | 0 | 0.00 KM |
| Goldfinch Street | £ 0 | 0 | 0.00 KM |
| Skipper Close | £ 0 | 0 | 0.00 KM |
Nearby Transport
| Name | NLC | TLC | Distance |
|---|---|---|---|
| Knaresborough | 8214 | KNA | 2.71 KM |
| Starbeck | 8221 | SBE | 6.19 KM |
| Hornbeam Park | 8212 | HBP | 9.49 KM |
Nearby Listings
| Address | Price | Type | Score | Distance |
|---|---|---|---|---|
| Pearl Close, Knaresborough, HG5 | £ 515,000 | BUY | 8 / 10 | 0.00 KM |
| Gatekeeper Close, Knaresborough, North Yorkshire, HG5 | £ 320,000 | BUY | Unknown | 0.07 KM |
| Raydale Close, Knaresborough, HG5 0SX | £ 290,000 | BUY | 7 / 10 | 0.16 KM |
| Cardinal Way, Castle Gate, Knaresborough | £ 325,000 | BUY | 8 / 10 | 0.17 KM |
| Red Admiral Way, Knaresborough | £ 509,950 | BUY | 7 / 10 | 0.23 KM |
Nearby Properties
| Address | Price | Distance |
|---|---|---|
| 1 Raydale Close | £ 187,500 | 0.17 KM |
| 2 Raydale Close | £ 171,000 | 0.17 KM |
| 12 Raydale Close | £ 273,000 | 0.18 KM |
| 8 Raydale Close | £ 365,000 | 0.18 KM |
| 11 Raydale Close | £ 262,000 | 0.18 KM |