North Street, Emsworth
NE

North Street, Emsworth

By NEXA Properties

£ 250,000

Reviews

3 out of 5 stars

NEXA Properties says ..

This charming ground-floor garden flat is ideally located in the heart of Emsworth, a historic market town on the sunny south coast. Just a short walk from the train station with direct links to London Victoria, this property offers easy access to the local shops, restaurants, and amenities, maki...

Property Oracle says ..

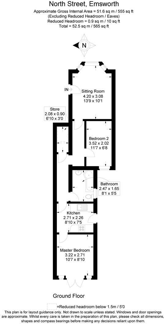
This property is a 2-bedroom house located on North Street in Emsworth, Hampshire. Emsworth is a desirable coastal town with good local amenities and transport links. The property itself appears to be in good condition, having undergone some modernisation. It benefits from a small rear garden. The list price of £250,000 is significantly below the average price for the area (£544,832), and also below the average price per sqft (£463.00). However, the property is smaller than average (565 sqft compared to 1175 sqft). While the price may seem attractive, potential buyers should carefully consider the smaller size and compare it to similar properties in the area.

Therefore, we give this property 7 / 10. *Disclaimer: This is our option and does constitute a recommendation or financial advice. Do your own research. *

Price
7
Condition
8
Location
9
Land
4
Bedrooms
2
Bathrooms
1
Sqft (est)
565.11

The heatmap indicates the level of crime in the area. The color of the heatmap indicates the crime severity and recency.

Metrics Year-on-Year

Average area value
500,000.00 £
Decreased by 10.71 %
from 559,965.00 £
Est sale value
260,515.71 £
Increased by 18.51 %
from 219,827.79 £
Average area rental value
1,441.00 £/mo
Increased by 8.26 %
from 1,331.00 £/mo
Est letting value
565.11 £/mo
from 0.00 £/mo
Est rental Yield
3.46 %
Increased by 21.40 %
from 2.85 %
Crime Rate
22.00 %
Unchanged by 0.00 %
from 22.00 %

Agent Activity

  • NEXA Properties created the listing.

Nearby Schools

NameTypeOfstedDistance
Glenwood SchoolCommunity Special SchoolRequires improvement0.43 KM
St James Church Of England Controlled Primary SchoolVoluntary Controlled SchoolGood0.72 KM
Emsworth Primary SchoolCommunity SchoolGood1.07 KM
The Orchard Children'S CentreChildren's Centre Linked Site1.12 KM
Westbourne Primary SchoolCommunity SchoolGood2.37 KM

Images

Garden Flat, 92 North Street, Emsworth-PorticoMark Garden Flat, 92 North Street, Emsworth-PorticoMark Garden Flat, 92 North Street, Emsworth-PorticoMark Garden Flat, 92 North Street, Emsworth-PorticoMark Garden Flat, 92 North Street, Emsworth-PorticoMark Garden Flat, 92 North Street, Emsworth-PorticoMark Garden Flat, 92 North Street, Emsworth-PorticoMark Garden Flat, 92 North Street, Emsworth-PorticoMark Garden Flat, 92 North Street, Emsworth-PorticoMark Garden Flat, 92 North Street, Emsworth-PorticoMark Garden Flat, 92 North Street, Emsworth-PorticoMark Garden Flat, 92 North Street, Emsworth-PorticoMark Garden Flat, 92 North Street, Emsworth-PorticoMark Garden Flat, 92 North Street, Emsworth-PorticoMark

Nearby Streets

NameAverage PriceAverage SqftDistance
A27 £ 000.00 KM
Saint Peter's Square £ 650,00000.00 KM
Harbour Court £ 000.00 KM
Lumley Road £ 315,00000.00 KM
Dolphin Quay £ 000.00 KM

Nearby Transport

NameNLCTLCDistance
Emsworth5257EMS0.10 KM
Warblington5264WBL3.24 KM
Southbourne5263SOB3.32 KM
Havant5532HAV4.84 KM
Rowlands Castle5658RLN5.08 KM

Nearby Listings

AddressPriceTypeScoreDistance
North Street, Emsworth £ 250,000BUY7 / 100.00 KM
North Street, Emsworth £ 270,000BUY7 / 100.02 KM
North Street, Emsworth, Hampshire, PO10 £ 645,000BUY5 / 100.04 KM
North Street, Emsworth £ 375,000BUYUnknown0.08 KM
North Street, Emsworth £ 250,000BUYUnknown0.09 KM

Nearby Properties

AddressPriceDistance
90a North Street £ 192,5000.03 KM
89 North Street £ 316,0000.04 KM
91 North Street £ 315,0000.04 KM
87 North Street £ 240,0000.04 KM
85b North Street £ 155,0000.04 KM