SA
Plot 30 - G11 West, Beith Street, Partick, G11
By Savills New Homes
£ 299,995
Reviews
3 out of 5 stars
Savills New Homes says ..
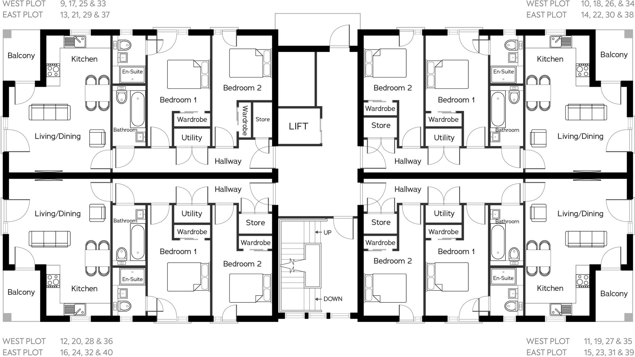
Now available! Ready-to-move-in third floor 2 bed apartment with private balcony and access to landscaped communal gardens - modern living in a prime location.
Property Oracle says ..
This is a modern two-bedroom apartment in Partick, Glasgow. The property is in excellent condition and benefits from good transport links. The price is higher than average for the area.
Therefore, we give this property 6 / 10. *Disclaimer: This is our option and does constitute a recommendation or financial advice. Do your own research. *
- Price
- 6
- Condition
- 9
- Location
- 7
- Land
- 3
- Bedrooms
- 2
- Bathrooms
- 2
- Sqft (est)
- 670.00
The heatmap indicates the level of crime in the area. The color of the heatmap indicates the crime severity and recency.
Metrics Year-on-Year
- Average area value
- 211,368.00 £Decreased by 19.75 %
- Est sale value
- 183,580.00 £Decreased by 16.46 %
- Average area rental value
- 1,169.00 £/moDecreased by 9.73 %
- Est letting value
- 670.00 £/moUnchanged by 0.00 %
- Est rental Yield
- 6.64 %Increased by 12.54 %
- Crime Rate
- 0.00 %
from 263,401.00 £
from 219,760.00 £
from 1,295.00 £/mo
from 670.00 £/mo
from 5.90 %
from 0.00 %
Agent Activity
Savills New Homes created the listing.
Images
Nearby Streets
| Name | Average Price | Average Sqft | Distance |
|---|---|---|---|
| Maule Drive | £ 0 | 0 | 0.00 KM |
| Exeter Lane | £ 0 | 0 | 0.00 KM |
| Exeter Drive | £ 0 | 0 | 0.00 KM |
| Apsley Lane | £ 89,000 | 0 | 0.00 KM |
| Ardery Street | £ 0 | 0 | 0.00 KM |
Nearby Transport
| Name | NLC | TLC | Distance |
|---|---|---|---|
| Hyndland | 9845 | HYN | 1.23 KM |
| Partick | 9917 | PTK | 1.35 KM |
| Jordanhill | 9995 | JOR | 1.40 KM |
| Anniesland | 9972 | ANL | 2.07 KM |
| Kelvindale | 1655 | KVD | 2.83 KM |
Nearby Listings
| Address | Price | Type | Score | Distance |
|---|---|---|---|---|
| Plot 30 - G11 West, Beith Street, Partick, G11 | £ 299,995 | BUY | 6 / 10 | 0.00 KM |
| Plot 40 - G11 West, Beith Street, Partick, G11 | £ 305,000 | BUY | 6 / 10 | 0.00 KM |
| Dumbarton Road, Thornwood, Glasgow, G11 | £ 120,000 | BUY | 4 / 10 | 0.03 KM |
| Dumbarton Road, Glasgow | £ 110,000 | BUY | 5 / 10 | 0.06 KM |
| Auchentorlie Street, Flat 0/2, Thornwood, Glasgow, G11 7TP | £ 139,000 | BUY | 6 / 10 | 0.08 KM |