Church Crescent, Finchley Central, N3
By Chancellors
£ 750,000
Reviews
4 out of 5 stars
Chancellors says ..
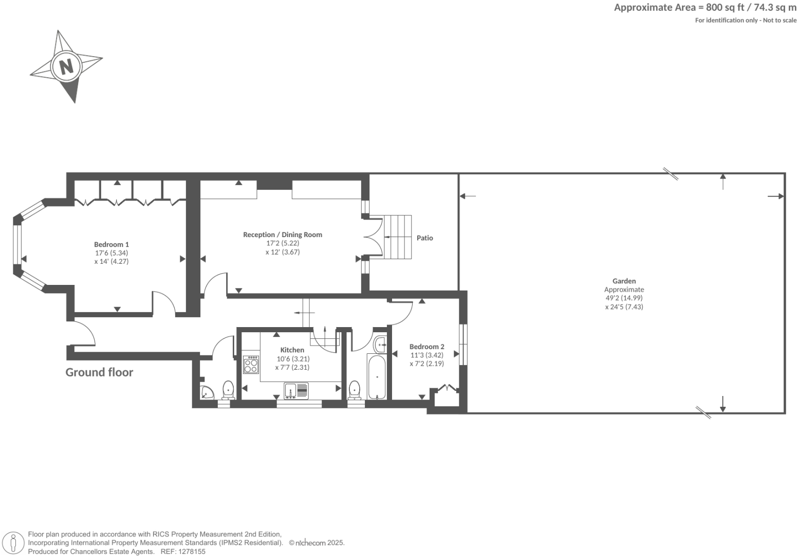
Rarely available we offer this ground floor garden conversion preserving period features, located in one of Finchley's premier tree-lined roads within 0.2 miles of Finchley Central tube station.
Property Oracle says ..
This property is a 2 bedroom, 2 bathroom flat located in Finchley Central, a desirable area of North London. The flat is spacious at 1,800 sqft and benefits from a good-sized garden. The property appears to be well-maintained and presented to a high standard, with modern fixtures and fittings throughout. The location is excellent, with good transport links and local amenities nearby, including well-regarded schools. While the list price is above the average price per sqft for the area, the size and condition of the property, along with its desirable location and garden, justify the higher price.
Therefore, we give this property 8 / 10. *Disclaimer: This is our option and does constitute a recommendation or financial advice. Do your own research. *
- Price
- 7
- Condition
- 9
- Location
- 10
- Land
- 8
- Bedrooms
- 2
- Bathrooms
- 2
- Sqft (est)
- 1,800.00
- Lot (est)
- 800.00
The heatmap indicates the level of crime in the area. The color of the heatmap indicates the crime severity and recency.
Metrics Year-on-Year
- Average area value
- 1,216,667.00 £Increased by 18.81 %
- Est sale value
- 1,744,200.00 £Increased by 46.37 %
- Average area rental value
- 2,646.00 £/moIncreased by 2.16 %
- Est letting value
- 3,600.00 £/moIncreased by 100.00 %
- Est rental Yield
- 2.61 %Decreased by 13.86 %
- Crime Rate
- 8.00 %Unchanged by 0.00 %
Agent Activity
Chancellors created the listing.
Nearby Schools
| Name | Type | Ofsted | Distance |
|---|---|---|---|
| Pardes House Primary School | Voluntary Aided School | Good | 0.27 KM |
| Pardes House Grammar School | Other Independent School | Good | 0.27 KM |
| St Mary'S Cofe Primary School | Voluntary Aided School | Outstanding | 0.37 KM |
| Finchley And Acton Yochien School | Other Independent School | Good | 0.46 KM |
| Akiva School | Voluntary Aided School | Good | 1.14 KM |
Images
Nearby Streets
| Name | Average Price | Average Sqft | Distance |
|---|---|---|---|
| Albert Place | £ 565,000 | 0 | 0.00 KM |
| Anatoolpad | £ 0 | 0 | 0.00 KM |
| Wootton Grove | £ 0 | 0 | 0.00 KM |
| Popes Drive | £ 0 | 0 | 0.00 KM |
| Adams Close | £ 550,000 | 0 | 0.00 KM |
Nearby Transport
| Name | NLC | TLC | Distance |
|---|---|---|---|
| Cricklewood | 1519 | CRI | 5.09 KM |
| Hendon | 1522 | HEN | 5.16 KM |
| Oakleigh Park | 6020 | OKL | 5.29 KM |
| Mill Hill Broadway | 1527 | MIL | 5.87 KM |
| New Barnet | 6018 | NBA | 5.88 KM |
Nearby Listings
| Address | Price | Type | Score | Distance |
|---|---|---|---|---|
| Church Crescent, Finchley Central, N3 | £ 750,000 | BUY | 8 / 10 | 0.00 KM |
| Church Crescent, Finchley, N3 | £ 2,000,000 | BUY | 6 / 10 | 0.06 KM |
| DOLLIS PARK, FINCHLEY, N3 | £ 1,000,000 | BUY | 5 / 10 | 0.08 KM |
| Church Crescent, Church End, London, N3 | £ 2,000,000 | BUY | 7 / 10 | 0.09 KM |
| Church Crescent, London | £ 2,000,000 | BUY | 7 / 10 | 0.10 KM |
Nearby Properties
| Address | Price | Distance |
|---|---|---|
| 31 Dollis Park | £ 625,000 | 0.06 KM |
| 3 Dollis Park | £ 1,400,000 | 0.07 KM |
| 7 Dollis Park | £ 455,000 | 0.07 KM |
| 3 Church Crescent | £ 1,030,000 | 0.07 KM |
| 5 Church Crescent | £ 1,300,000 | 0.07 KM |