Woodbine Avenue, Newcastle Upon Tyne, NE3
By Sarah Mains Residential Sales and Lettings
£ 690,000
Reviews
3 out of 5 stars
Sarah Mains Residential Sales and Lettings says ..
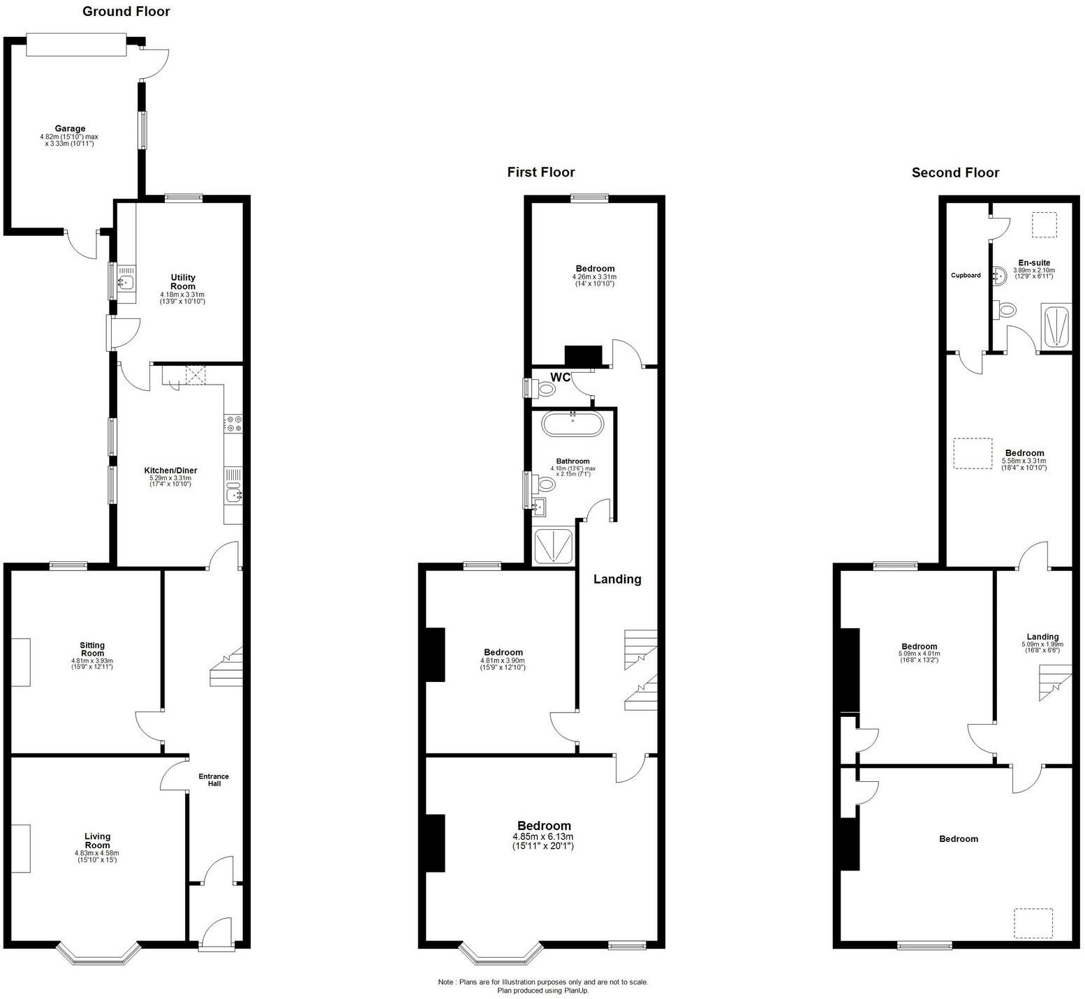
An impressive and deceptively spacious period mid-terraced home, this beautiful property offers superbly versatile accommodation arranged over three floors.
Property Oracle says ..
This is a six-bedroom terraced property in Gosforth, a sought-after area of Newcastle Upon Tyne. The house offers ample living space and is conveniently located near schools, shops, and transport links. While the property appears to be in generally good condition, some areas may benefit from modernisation. The asking price of £690,000 seems reasonable for the location and size of the property, but without knowing the exact square footage, it’s challenging to determine its value precisely. The property features a small garden, which is a plus for families. Overall, this property presents a good opportunity for those looking for a spacious family home in a prime location.
Therefore, we give this property 6 / 10. *Disclaimer: This is our option and does constitute a recommendation or financial advice. Do your own research. *
- Price
- 7
- Condition
- 7
- Location
- 8
- Land
- 5
- Bedrooms
- 6
- Bathrooms
- 2
The heatmap indicates the level of crime in the area. The color of the heatmap indicates the crime severity and recency.
Metrics Year-on-Year
- Average area value
- 1,142,500.00 £Increased by 139.22 %
- Average area rental value
- 1,237.00 £/moDecreased by 7.48 %
- Est rental Yield
- 1.30 %Decreased by 61.31 %
- Crime Rate
- 7.00 %Unchanged by 0.00 %
Agent Activity
Sarah Mains Residential Sales and Lettings created the listing.
Nearby Schools
| Name | Type | Ofsted | Distance |
|---|---|---|---|
| Newcastle School For Boys | Other Independent School | 0.11 KM | |
| Archibald First School | Foundation School | Outstanding | 0.27 KM |
| Gosforth Junior High Academy | Academy Converter | Outstanding | 0.40 KM |
| St Charles' Catholic Primary School | Academy Converter | 0.82 KM | |
| Gosforth Central Middle School | Foundation School | Good | 0.86 KM |
Images
Nearby Streets
| Name | Average Price | Average Sqft | Distance |
|---|---|---|---|
| Back West Avenue | £ 0 | 0 | 0.00 KM |
| Linden Avenue | £ 1,200,000 | 0 | 0.00 KM |
| Mayfield Road | £ 450,000 | 0 | 0.00 KM |
| Elsdon Road | £ 0 | 0 | 0.00 KM |
| Furzefield Road | £ 1,375,000 | 0 | 0.00 KM |
Nearby Transport
| Name | NLC | TLC | Distance |
|---|---|---|---|
| Newcastle | 7728 | NCL | 4.16 KM |
| Manors | 7603 | MAS | 4.16 KM |
| Dunston | 7744 | DOT | 6.48 KM |
| Metrocentre | 7725 | MCE | 6.96 KM |
| Heworth | 7766 | HEW | 9.57 KM |
Nearby Listings
| Address | Price | Type | Score | Distance |
|---|---|---|---|---|
| Woodbine Avenue, Newcastle Upon Tyne, NE3 | £ 690,000 | BUY | 6 / 10 | 0.00 KM |
| Woodbine Avenue, Newcastle Upon Tyne | £ 300,000 | BUY | Unknown | 0.03 KM |
| Woodbine Avenue, Gosforth, Newcastle Upon Tyne | £ 710,000 | BUY | 6 / 10 | 0.04 KM |
| Woodbine Avenue, Gosforth, Newcastle Upon Tyne, NE3 | £ 690,000 | BUY | 6 / 10 | 0.05 KM |
| Woodbine Avenue, Gosforth, Newcastle upon Tyne | £ 695,000 | BUY | 8 / 10 | 0.07 KM |
Nearby Properties
| Address | Price | Distance |
|---|---|---|
| 10 Woodbine Avenue | £ 620,000 | 0.05 KM |
| 7 Woodbine Avenue | £ 487,000 | 0.05 KM |
| 24b Woodbine Avenue | £ 300,000 | 0.05 KM |
| 1b Woodbine Avenue | £ 207,500 | 0.05 KM |
| 8 Woodbine Avenue | £ 530,000 | 0.05 KM |