Chancellor Road, Walton, BA16
By Cooper & Tanner
£ 350,000
Reviews
3 out of 5 stars
Cooper & Tanner says ..
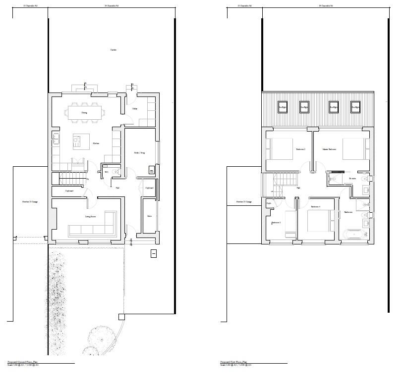
A superbly presented detached house, tucked away at the end of this sought after cul-de-sac in the popular village of Walton. With generous extended living space, driveway parking, a single garage and good size garden backing onto fields, this makes for an ideal family home.
Property Oracle says ..
This property is a 3-bedroom, 1-bathroom link detached house located in Walton, Somerset. The house is presented in good condition and benefits from a well-maintained garden. The property is conveniently located near Walton Church of England Voluntary Controlled Primary School (0.58km), making it an attractive option for families. While specific transportation details are unavailable, the proximity to a highly-rated primary school suggests a family-friendly neighbourhood. The list price of £350,000 is slightly higher than the average price of similar properties in the area (£292,744), but considering its condition and the inclusion of a garden, it may represent reasonable value. Further investigation into local transportation links and comparable property sales would help to refine this assessment.
Therefore, we give this property 7 / 10. *Disclaimer: This is our option and does constitute a recommendation or financial advice. Do your own research. *
- Price
- 7
- Condition
- 8
- Location
- 7
- Land
- 7
- Bedrooms
- 3
- Bathrooms
- 1
- Sqft (est)
- 828.41
- Lot (est)
- 1,045.00
The heatmap indicates the level of crime in the area. The color of the heatmap indicates the crime severity and recency.
Metrics Year-on-Year
- Average area value
- 274,990.00 £Decreased by 21.89 %
- Est sale value
- 190,534.30 £Decreased by 31.55 %
- Average area rental value
- 838.00 £/moDecreased by 3.12 %
- Est letting value
- 0.00 £/mo
- Est rental Yield
- 3.66 %Increased by 24.07 %
- Crime Rate
- 286.00 %Unchanged by 0.00 %
Agent Activity
Cooper & Tanner created the listing.
Nearby Schools
| Name | Type | Ofsted | Distance |
|---|---|---|---|
| Walton Church Of England Voluntary Controlled Primary School | Voluntary Controlled School | Outstanding | 0.58 KM |
| Brookside Community Primary School | Academy Converter | Good | 2.76 KM |
| Avalon School | Community Special School | Good | 2.83 KM |
| Street Building | Children's Centre Linked Site | 2.85 KM | |
| Hindhayes Infant School | Community School | Good | 4.08 KM |
Images
Nearby Streets
| Name | Average Price | Average Sqft | Distance |
|---|---|---|---|
| Long Lane | £ 0 | 0 | 0.00 KM |
| Foxlands Close | £ 260,000 | 0 | 0.00 KM |
Nearby Listings
| Address | Price | Type | Score | Distance |
|---|---|---|---|---|
| Chancellor Road, Walton, BA16 | £ 350,000 | BUY | 7 / 10 | 0.00 KM |
| Chancellor Road, Walton | £ 325,000 | BUY | 6 / 10 | 0.09 KM |
| Long Lane, Walton, BA16 | £ 565,000 | BUY | 7 / 10 | 0.11 KM |
| South Close, Walton | £ 269,000 | BUY | 7 / 10 | 0.12 KM |
| Main Street, Walton | £ 205,000 | BUY | 7 / 10 | 0.12 KM |
Nearby Properties
| Address | Price | Distance |
|---|---|---|
| 26 Chancellor Road | £ 248,500 | 0.01 KM |
| 17 Chancellor Road | £ 291,000 | 0.01 KM |
| 29 Chancellor Road | £ 123,000 | 0.01 KM |
| 2 Chancellor Road | £ 239,950 | 0.01 KM |
| 1 Chancellor Road | £ 281,000 | 0.01 KM |