Glamis Place, Elgin, IV30 8UJ
By Hamish Homes Ltd
£ 290,000
Reviews
3 out of 5 stars
Hamish Homes Ltd says ..
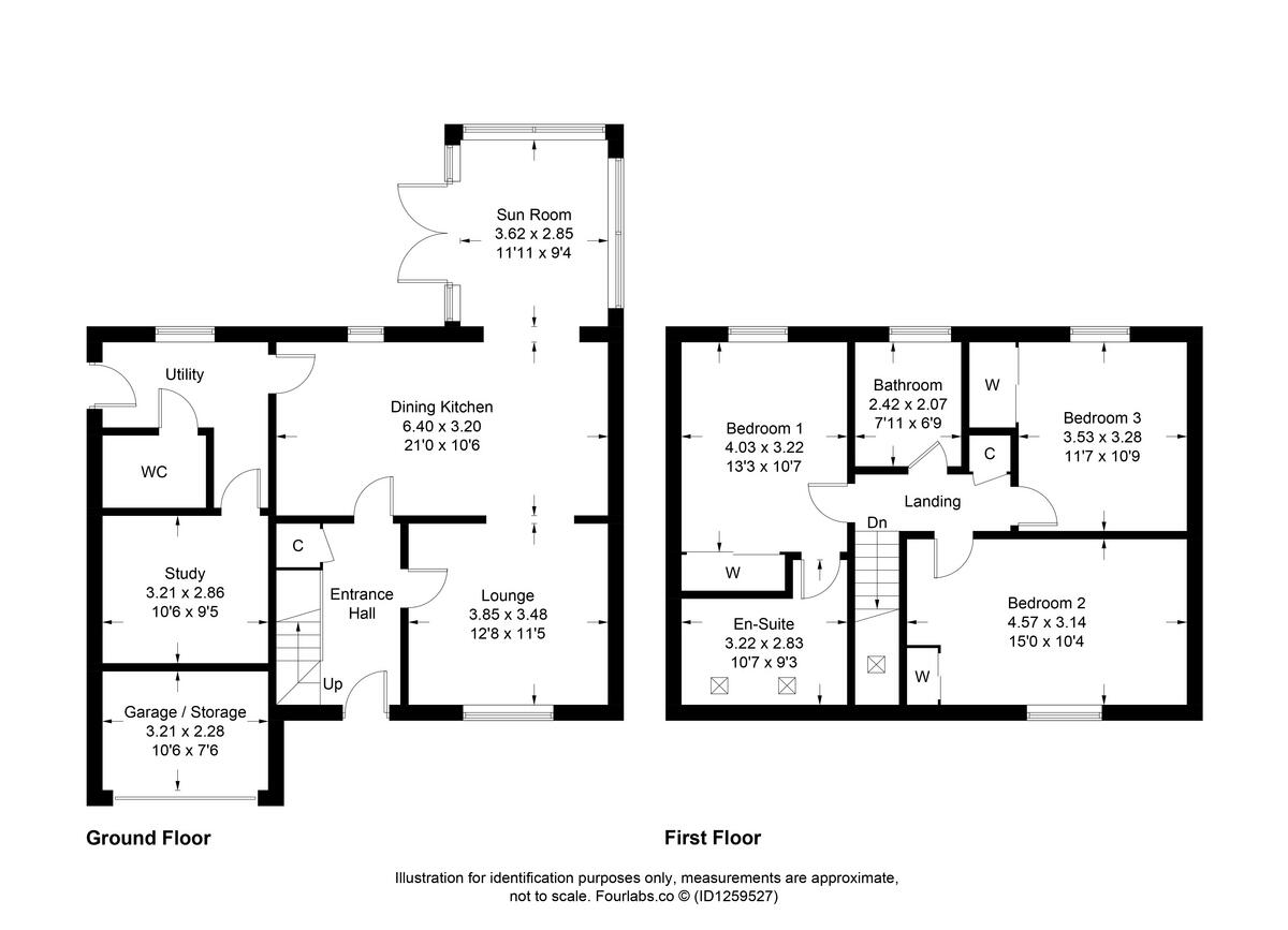
Beautifully Designed Modern Elgin Home With Open Plan Layout, Sun Room And En-Suite Master Bedroom
Property Oracle says ..
This is a modern semi-detached property in Elgin City South. The house features three bedrooms and three bathrooms. The interior is well-presented, with a modern kitchen and bathrooms. The property benefits from off-street parking and a garden, although the garden requires some attention. The location offers good transport links with a nearby train station. While the price is above the local average, the condition and modern features justify the premium.
Therefore, we give this property 7 / 10. *Disclaimer: This is our option and does constitute a recommendation or financial advice. Do your own research. *
- Price
- 7
- Condition
- 8
- Location
- 7
- Land
- 6
- Bedrooms
- 3
- Bathrooms
- 3
- Sqft (est)
- 479.15
The heatmap indicates the level of crime in the area. The color of the heatmap indicates the crime severity and recency.
Metrics Year-on-Year
- Average area value
- 95,250.00 £Decreased by 1.73 %
- Est sale value
- 68,997.60 £Decreased by 0.69 %
- Average area rental value
- 842.00 £/moIncreased by 10.94 %
- Est letting value
- 479.15 £/moUnchanged by 0.00 %
- Est rental Yield
- 10.61 %Increased by 12.87 %
- Crime Rate
- 0.00 %
Agent Activity
Hamish Homes Ltd created the listing.
Images
Nearby Streets
| Name | Average Price | Average Sqft | Distance |
|---|---|---|---|
| Glamis Place | £ 0 | 0 | 0.00 KM |
| Dunnicaer Way | £ 208,500 | 0 | 0.00 KM |
| Fyvie Green | £ 215,714 | 0 | 0.00 KM |
| Scone Road | £ 0 | 0 | 0.00 KM |
| Bisset Beat | £ 325,000 | 0 | 0.00 KM |
Nearby Transport
| Name | NLC | TLC | Distance |
|---|---|---|---|
| Elgin | 8977 | ELG | 1.56 KM |
Nearby Listings
| Address | Price | Type | Score | Distance |
|---|---|---|---|---|
| Glamis Place, Elgin, IV30 8UJ | £ 155,000 | BUY | 6 / 10 | 0.00 KM |
| Glamis Place, Elgin, IV30 8UJ | £ 305,000 | BUY | 7 / 10 | 0.00 KM |
| Glamis Place, Elgin, IV30 8UJ | £ 290,000 | BUY | 7 / 10 | 0.00 KM |
| Glamis Place, Elgin, IV30 8UJ | £ 155,000 | BUY | 7 / 10 | 0.00 KM |
| Cawdor Avenue, Elgin, IV30 8AH | £ 290,000 | BUY | Unknown | 0.12 KM |