Manbre Road, Hammersmith, W6
By Benham & Reeves
£ 450,000
Reviews
3 out of 5 stars
Benham & Reeves says ..
A well proportioned superb apartment set in the King Henrys Reach, an exclusive gated riverside development, with underground parking. The flat is well located within close proximity of Hammersmith Underground station.
Property Oracle says ..
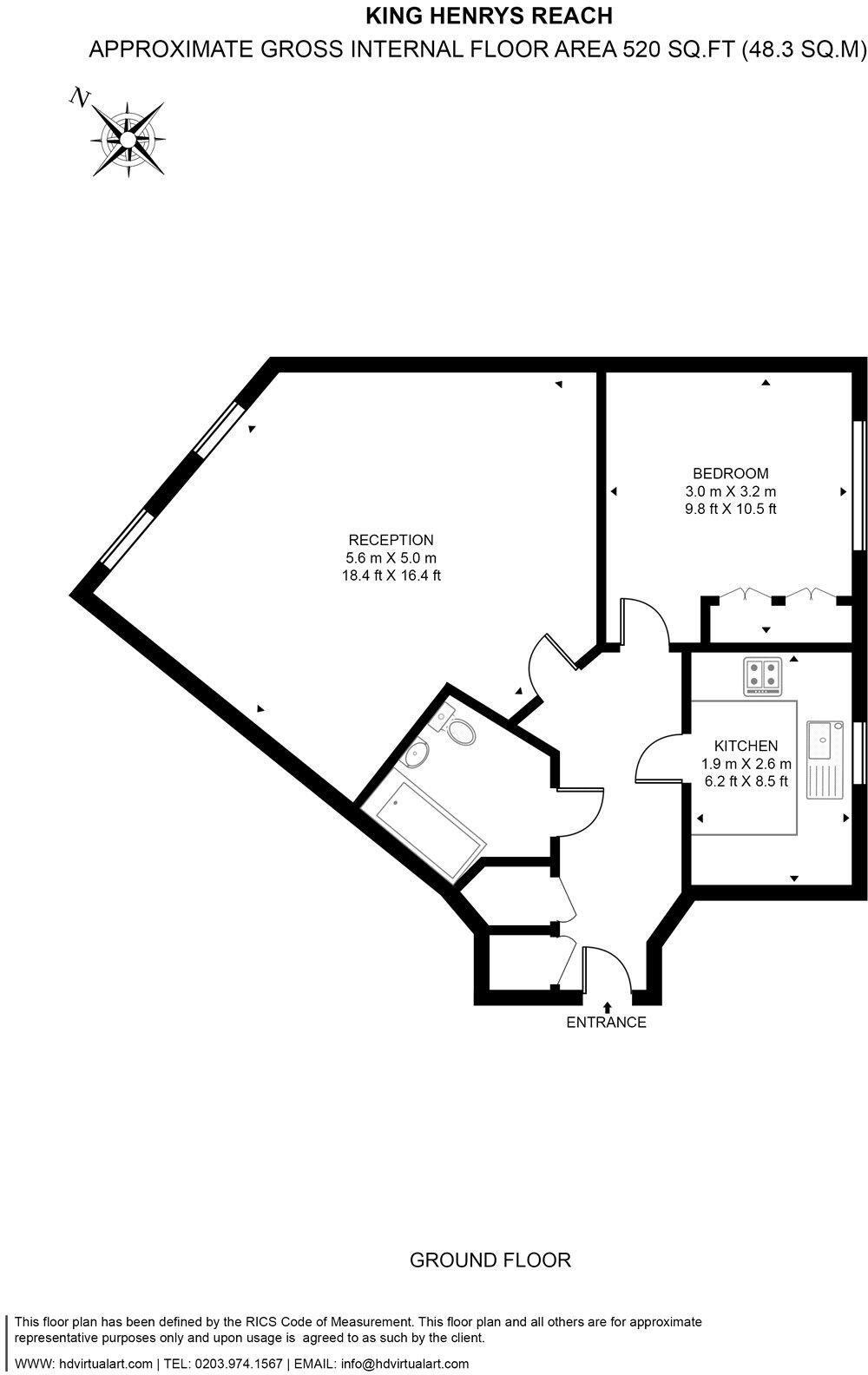
This property is a 1-bedroom, 1-bathroom apartment located in Hammersmith, West London. The apartment is situated within a modern development and benefits from access to communal gardens. While the apartment itself is in reasonable condition, it appears to be vacant and requires some modernisation to reach its full potential. The location is excellent, with good transport links and local amenities. However, the list price of £450,000 is significantly lower than the average price for the area (£807,568), and even lower than the average price per square foot. This suggests that the property may represent good value for money, although further investigation into the specific reasons for the lower pricing is recommended. Nearby properties show a wide range of prices, indicating a varied market. The lack of plot size information makes it difficult to fully assess the land value.
Therefore, we give this property 6 / 10. *Disclaimer: This is our option and does constitute a recommendation or financial advice. Do your own research. *
- Price
- 8
- Condition
- 7
- Location
- 9
- Land
- 3
- Bedrooms
- 1
- Bathrooms
- 1
- Sqft (est)
- 519.90
The heatmap indicates the level of crime in the area. The color of the heatmap indicates the crime severity and recency.
Metrics Year-on-Year
- Average area value
- 834,279.00 £Decreased by 5.94 %
- Est sale value
- 469,469.70 £Decreased by 8.23 %
- Average area rental value
- 2,797.00 £/moIncreased by 4.68 %
- Est letting value
- 1,559.70 £/moIncreased by 50.00 %
- Est rental Yield
- 4.02 %Increased by 11.36 %
- Crime Rate
- 6.00 %Unchanged by 0.00 %
Agent Activity
Benham & Reeves created the listing.
Nearby Schools
| Name | Type | Ofsted | Distance |
|---|---|---|---|
| Oakwood School | Other Independent Special School | Good | 0.13 KM |
| Darwin School | Other Independent Special School | Good | 0.13 KM |
| Melcombe Primary School | Community School | Requires improvement | 0.33 KM |
| Melcombe Children'S Centre | Children's Centre | 0.33 KM | |
| St Paul'S Cofe Primary School | Voluntary Aided School | Outstanding | 0.58 KM |
Images
Nearby Streets
| Name | Average Price | Average Sqft | Distance |
|---|---|---|---|
| Manbre Road | £ 0 | 0 | 0.00 KM |
| Winslow Road | £ 0 | 0 | 0.00 KM |
| Distillery Road | £ 0 | 0 | 0.00 KM |
| Distillery Lane | £ 1,100,000 | 0 | 0.00 KM |
| Parr's Way | £ 1,175,000 | 0 | 0.00 KM |
Nearby Transport
| Name | NLC | TLC | Distance |
|---|---|---|---|
| Kensington (Olympia) | 3092 | KPA | 1.99 KM |
| Shepherd'S Bush | 9587 | SPB | 2.22 KM |
| Putney | 5603 | PUT | 2.92 KM |
| Barnes | 5551 | BNS | 2.94 KM |
| West Brompton | 8875 | WBP | 3.15 KM |
Nearby Listings
| Address | Price | Type | Score | Distance |
|---|---|---|---|---|
| Manbre Road, Hammersmith, W6 | £ 450,000 | BUY | 6 / 10 | 0.00 KM |
| Tierney Lane, Hammersmith | £ 795,000 | BUY | 6 / 10 | 0.08 KM |
| Parr's Way, Hammersmith, W6 | £ 4,200,000 | BUY | 7 / 10 | 0.08 KM |
| Tierney Lane, London, W6 | £ 800,000 | BUY | 6 / 10 | 0.08 KM |
| Morris Court, Tierney Lane, London, W6 | £ 980,000 | BUY | 7 / 10 | 0.09 KM |
Nearby Properties
| Address | Price | Distance |
|---|---|---|
| 9 Winslow Road | £ 470,000 | 0.08 KM |
| 19 Winslow Road | £ 1,295,000 | 0.08 KM |
| 13 Winslow Road | £ 1,265,500 | 0.08 KM |
| 29 Winslow Road | £ 367,000 | 0.08 KM |
| 41 Winslow Road | £ 363,000 | 0.08 KM |