OC
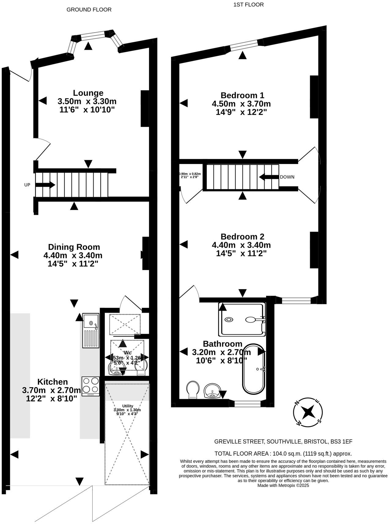
18 Greville Street, Southville, Bristol
By Ocean
£ 520,000
Reviews
3 out of 5 stars
Ocean says ..
This charming terraced house, located in the ever-popular Southville area of Bristol, beautifully combines character and modern living. Featuring a stunning kitchen extension and offered to the market with no onward chain.
Property Oracle says ..
Therefore, we give this property 7 / 10. *Disclaimer: This is our option and does constitute a recommendation or financial advice. Do your own research. *
- Price
- 6
- Condition
- 8
- Location
- 8
- Land
- 7
- Bedrooms
- 2
- Bathrooms
- 2
The heatmap indicates the level of crime in the area. The color of the heatmap indicates the crime severity and recency.
Metrics Year-on-Year
- Average area value
- 347,833.00 £Decreased by 12.30 %
- Average area rental value
- 1,855.00 £/moIncreased by 23.17 %
- Est rental Yield
- 6.40 %Increased by 40.35 %
- Crime Rate
- 3.00 %Unchanged by 0.00 %
from 396,637.00 £
from 1,506.00 £/mo
from 4.56 %
from 3.00 %
Agent Activity
Ocean created the listing.
Nearby Schools
| Name | Type | Ofsted | Distance |
|---|---|---|---|
| Southville Primary School | Community School | Good | 0.19 KM |
| Compass Point: South Street School & Children'S Centre | Children's Centre | 0.39 KM | |
| Compass Point Primary School | Academy Converter | 0.43 KM | |
| Holy Cross Rc Primary School | Voluntary Aided School | Good | 0.52 KM |
| City Of Bristol College | Further Education | Requires improvement | 1.03 KM |
Images
Nearby Streets
| Name | Average Price | Average Sqft | Distance |
|---|---|---|---|
| Gladstone Street | £ 455,000 | 0 | 0.00 KM |
| Diamond Street | £ 450,000 | 0 | 0.00 KM |
| Frances Mews | £ 0 | 0 | 0.00 KM |
| Norfolk ? | £ 325,000 | 0 | 0.00 KM |
| Cumberland Court | £ 0 | 0 | 0.00 KM |
Nearby Transport
| Name | NLC | TLC | Distance |
|---|---|---|---|
| Parson Street | 3246 | PSN | 1.00 KM |
| Bedminster | 3245 | BMT | 1.16 KM |
| Clifton Down | 3202 | CFN | 2.67 KM |
| Bristol Temple Meads | 3231 | BRI | 2.69 KM |
| Redland | 3247 | RDA | 3.03 KM |
Nearby Listings
| Address | Price | Type | Score | Distance |
|---|---|---|---|---|
| 18 Greville Street, Southville, Bristol | £ 520,000 | BUY | 7 / 10 | 0.00 KM |
| Greville Street, Southville, BRISTOL, BS3 | £ 600,000 | BUY | 8 / 10 | 0.02 KM |
| Greville Street, Bristol | £ 550,000 | BUY | 6 / 10 | 0.02 KM |
| Greville Street, Bristol, BS3 | £ 600,000 | BUY | Unknown | 0.02 KM |
| Greville Street, Bristol, BS3 | £ 600,000 | BUY | 6 / 10 | 0.03 KM |
Nearby Properties
| Address | Price | Distance |
|---|---|---|
| 13 Greville Street | £ 226,000 | 0.02 KM |
| 30 Greville Street | £ 442,000 | 0.02 KM |
| 1 Greville Street | £ 36,500 | 0.02 KM |
| 24 Greville Street | £ 89,950 | 0.02 KM |
| 18 Greville Street | £ 422,500 | 0.02 KM |