Mains Loan, Dundee, Dundee & Angus, DD4 7DF
BA

Mains Loan, Dundee, Dundee & Angus, DD4 7DF

By Barratt Homes - North Scotland

£ 199,995

Reviews

3 out of 5 stars

Barratt Homes - North Scotland says ..

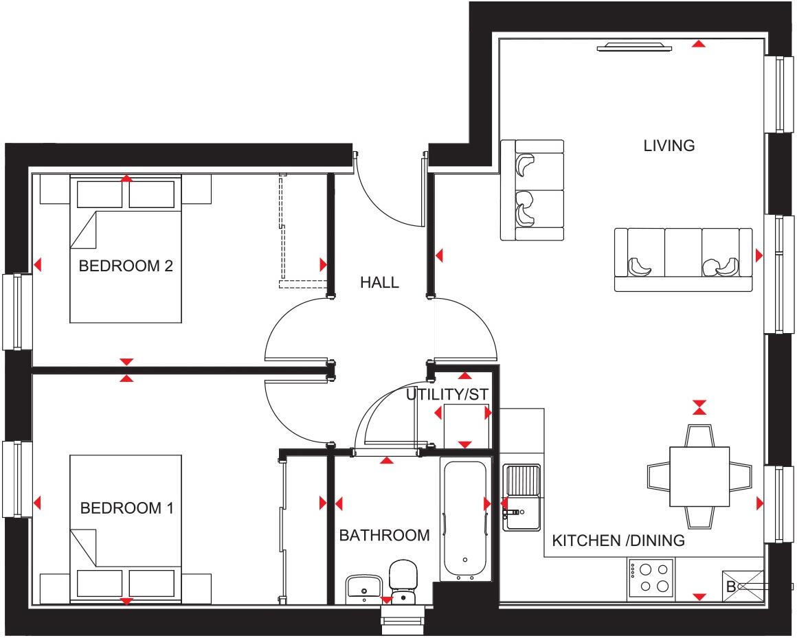
Your new Spey apartment in Dundee, just a short cycle from schools and shops, features bright and airy open-plan living. The modern kitchen comes with standard appliances and fridge-freezer included. Your utility cupboard includes a washer/dryer and ample storage space. The two bedrooms are spaci...

Property Oracle says ..

The property is a 2-bedroom home located in Mains Loan, Dundee, with a list price of £199,995. The property is 510 sqft and has no plot size information available. The average price for properties in the area is significantly higher at £321,187, with an average size of 1,102 sqft and an average price per sqft of £291. The property appears to be in excellent condition based on the provided images. The interior is modern, clean and well-maintained. The development itself also looks well-kept and modern. While there is no information on the size of the garden, the images suggest a small, communal green space is available within the development. Considering the significantly lower price compared to the average property price in the area (£199,995 vs £321,187), and the smaller size of this property (510 sqft vs 1,102 sqft), the list price may appear reasonable, especially considering the modern condition of the property. However, the lack of a private garden and the smaller size compared to other properties in the area could be considered drawbacks. The proximity to Dundee city centre and the rail station at Dundee (2.71km) could be seen as a positive influence on the location score. The lack of information on nearby schools and other amenities prevents a more comprehensive evaluation of the location. More information on the surrounding area would improve the analysis.

Therefore, we give this property 6 / 10. *Disclaimer: This is our option and does constitute a recommendation or financial advice. Do your own research. *

Price
8
Condition
9
Location
7
Land
3
Bedrooms
2
Bathrooms
0
Sqft (est)
510.00

The heatmap indicates the level of crime in the area. The color of the heatmap indicates the crime severity and recency.

Metrics Year-on-Year

Average area value
299,533.00 £
Decreased by 4.46 %
from 313,511.00 £
Est sale value
173,910.00 £
Increased by 11.07 %
from 156,570.00 £
Average area rental value
1,335.00 £/mo
Increased by 8.54 %
from 1,230.00 £/mo
Est letting value
510.00 £/mo
Unchanged by 0.00 %
from 510.00 £/mo
Est rental Yield
5.35 %
Increased by 13.59 %
from 4.71 %
Crime Rate
0.00 %
from 0.00 %

Agent Activity

  • Barratt Homes - North Scotland created the listing.

Images

Keiller's Rise apartments Dundee Ocean show apartment, Aberdeen Ocean Aberdeen Ocean Aberdeen Kittiwake H7252-Show-Apartment-001 Ocean Aberdeen H7252-Show-Apartment-001 DEV002586_North View 3rd Fl Plot 207 Spey and 214 Ury 001_013 DEV002586_South View 3rd Fl Plot 207 Spey and 214 Ury 003_006 DEV-002586_Keiller's Rise_Isla_BILA_04.10.2024_008 DEV-002586 Keillers Rise_Drone_060824_05 DEV-002586_Keiller's Rise_Isla_BILA_04.10.2024_010 DEV-002586 Keillers Rise Dundee Local Area 031022  21 DEV-002586 Keillers Rise Dundee Local Area 031022  15 DEV-002586_Keiller's Rise_Isla_BILA_04.10.2024_034 DEV-002586_Keiller's Rise_Isla_BILA_04.10.2024_017 DEV-002586 Keillers Rise Dundee Local Area 031022  27 DEV-002586_Keiller's Rise_Isla_BILA_04.10.2024_001

Nearby Streets

NameAverage PriceAverage SqftDistance
Clive Street £ 000.00 KM
Lammerton Terrace £ 000.00 KM
Shamrock Street £ 000.00 KM
Melrose Gardens £ 215,00000.00 KM
David Robertson Street £ 000.00 KM

Nearby Transport

NameNLCTLCDistance
Dundee9039DEE2.71 KM
Broughty Ferry9023BYF9.53 KM

Nearby Listings

AddressPriceTypeScoreDistance
Mains Loan, Dundee, Dundee & Angus, DD4 7DF £ 201,995BUY6 / 100.00 KM
Mains Loan, Dundee, Dundee & Angus, DD4 7DF £ 194,995BUY8 / 100.00 KM
Mains Loan, Dundee, Dundee & Angus, DD4 7DF £ 194,995BUY6 / 100.00 KM
Mains Loan, Dundee, DD4 7DF £ 326,995BUY7 / 100.00 KM
Mains Loan, Dundee, Dundee & Angus, DD4 7DF £ 182,995BUY6 / 100.00 KM