Eastnor Grove, Leamington Spa, Warwickshire CV31 1LD
By Fine & Country
£ 1,000,000
Reviews
3 out of 5 stars
Fine & Country says ..
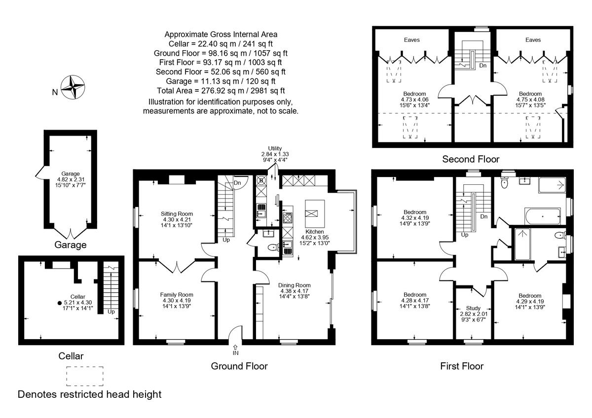
This beautifully restored early Victorian home combining period features with modern luxury is set over three floors and offers five generous sized double bedrooms and versatile living space all just a short walk from The Parade and train station
Property Oracle says ..
This is a well-presented, detached period property in a desirable location. The house offers five bedrooms and three bathrooms, making it suitable for a family. The modern kitchen and bathrooms are a plus, and the garden provides outdoor space. The property is well-located for schools and transport links. The price seems reasonable for the area and the size of the property.
Therefore, we give this property 7 / 10. *Disclaimer: This is our option and does constitute a recommendation or financial advice. Do your own research. *
- Price
- 7
- Condition
- 8
- Location
- 8
- Land
- 6
- Bedrooms
- 5
- Bathrooms
- 3
- Sqft (est)
- 2,981.00
The heatmap indicates the level of crime in the area. The color of the heatmap indicates the crime severity and recency.
Metrics Year-on-Year
- Average area value
- 360,000.00 £Increased by 8.80 %
- Est sale value
- 1,284,811.00 £Increased by 10.80 %
- Average area rental value
- 1,197.00 £/moDecreased by 9.86 %
- Est letting value
- 2,981.00 £/moUnchanged by 0.00 %
- Est rental Yield
- 3.99 %Decreased by 17.22 %
- Crime Rate
- 3.00 %Unchanged by 0.00 %
Agent Activity
Fine & Country created the listing.
Nearby Schools
| Name | Type | Ofsted | Distance |
|---|---|---|---|
| St Anthony'S Catholic Primary School | Voluntary Aided School | Outstanding | 0.22 KM |
| Clapham Terrace Community Primary School And Nursery | Community School | Good | 0.62 KM |
| St Paul'S Cofe Primary School, Leamington Spa | Voluntary Aided School | Good | 0.95 KM |
| Sydenham Primary School | Community School | Outstanding | 0.98 KM |
| Campion School | Academy Converter | Good | 1.03 KM |
Images
Nearby Streets
| Name | Average Price | Average Sqft | Distance |
|---|---|---|---|
| Saint Mary's Road | £ 0 | 0 | 0.00 KM |
| St David's Close | £ 0 | 0 | 0.00 KM |
| The Sycamores | £ 160,000 | 0 | 0.00 KM |
| Berrington Road | £ 0 | 0 | 0.00 KM |
| Mayfield Close | £ 0 | 0 | 0.00 KM |
Nearby Transport
| Name | NLC | TLC | Distance |
|---|---|---|---|
| Leamington Spa | 4597 | LMS | 1.86 KM |
| Warwick | 4600 | WRW | 6.92 KM |
| Kenilworth | 7985 | KNW | 8.78 KM |
Nearby Listings
| Address | Price | Type | Score | Distance |
|---|---|---|---|---|
| Eastnor Grove, Leamington Spa, Warwickshire CV31 1LD | £ 1,000,000 | BUY | 7 / 10 | 0.00 KM |
| Waterloo Street, Leamington Spa | £ 275,000 | BUY | 7 / 10 | 0.09 KM |
| Eastnor Grove, Central Leamington Spa – Elegant Detached 5 Bed Victorian Home - Over 2500 Sq Ft | £ 1,100,000 | BUY | 8 / 10 | 0.10 KM |
| Waterloo Street, Leamington Spa, Warwickshire, CV31 | £ 310,000 | BUY | 7 / 10 | 0.13 KM |
| Leam Terrace, Leamington Spa | £ 150,000 | BUY | 4 / 10 | 0.17 KM |
Nearby Properties
| Address | Price | Distance |
|---|---|---|
| 5 Eastnor Grove | £ 1,250,000 | 0.01 KM |
| 2 Eastnor Grove | £ 1,100,000 | 0.01 KM |
| 3 Eastnor Grove | £ 675,000 | 0.01 KM |
| 6 Eastnor Grove | £ 1,165,000 | 0.01 KM |
| 2a Eastnor Grove | £ 860,000 | 0.01 KM |