Lower Vickers Street, Manchester, M40
By Nested
£ 226,000
Reviews
3 out of 5 stars
Nested says ..
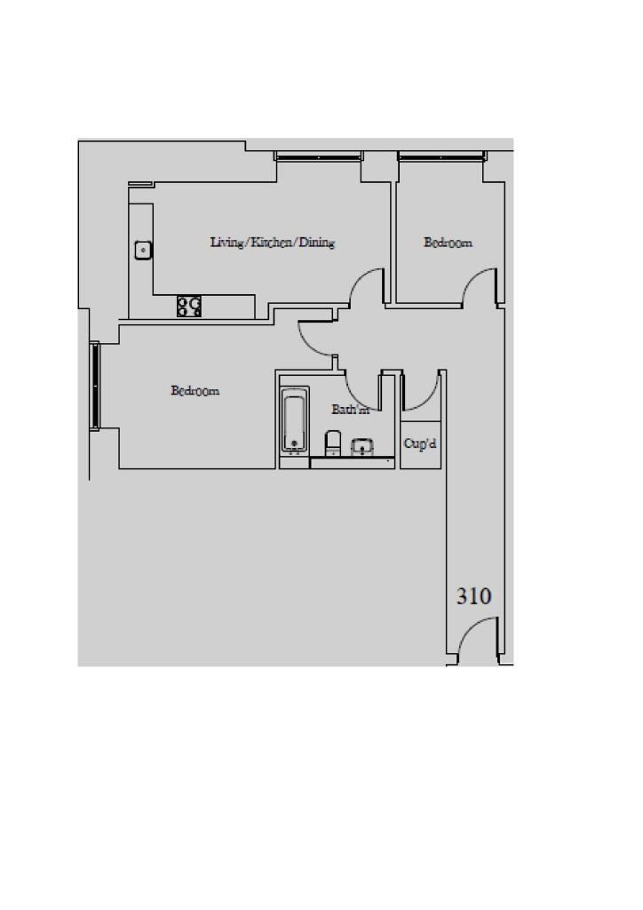
Brilliant, Bold & Beautiful – with an air of comfortable affluence – This stunning apartment boasts a bespoke luxurious interior, 791 sq. ft of immaculate living space. A true urban statement
Property Oracle says ..
This is a modern apartment located in Manchester, offering two bedrooms and two bathrooms. The property is in good condition and benefits from its proximity to local schools and transportation links. While it doesn’t have a garden, its location and modern amenities make it an attractive option. The price aligns with the local market, making it a reasonable investment.
Therefore, we give this property 6 / 10. *Disclaimer: This is our option and does constitute a recommendation or financial advice. Do your own research. *
- Price
- 7
- Condition
- 8
- Location
- 7
- Land
- 3
- Bedrooms
- 2
- Bathrooms
- 2
- Sqft (est)
- 725.00
The heatmap indicates the level of crime in the area. The color of the heatmap indicates the crime severity and recency.
Metrics Year-on-Year
- Average area value
- 246,100.00 £Decreased by 2.49 %
- Est sale value
- 249,400.00 £Increased by 16.61 %
- Average area rental value
- 1,331.00 £/moDecreased by 13.80 %
- Est letting value
- 725.00 £/moUnchanged by 0.00 %
- Est rental Yield
- 6.49 %Decreased by 11.58 %
- Crime Rate
- 0.00 %
Agent Activity
Nested created the listing.
Nearby Schools
| Name | Type | Ofsted | Distance |
|---|---|---|---|
| Miles Platting And Ancoats Children Centre | Children's Centre | 0.19 KM | |
| Park View Community Primary | Community School | Good | 0.26 KM |
| Collyhurst Sure Start Children'S Centre | Children's Centre | 0.98 KM | |
| St Anne'S Rc Primary School | Voluntary Aided School | Good | 0.99 KM |
| Collyhurst Nursery School | Local Authority Nursery School | Outstanding | 1.06 KM |
Images
Nearby Streets
| Name | Average Price | Average Sqft | Distance |
|---|---|---|---|
| Denver Avenue | £ 0 | 0 | 0.00 KM |
| Shenfield Walk | £ 0 | 0 | 0.00 KM |
| Sawley Road | £ 281,667 | 0 | 0.00 KM |
| Charnley Close | £ 0 | 0 | 0.00 KM |
| Bradford Road | £ 0 | 0 | 0.00 KM |
Nearby Transport
| Name | NLC | TLC | Distance |
|---|---|---|---|
| Ardwick | 2960 | ADK | 2.04 KM |
| Manchester Piccadilly | 2968 | MAN | 2.29 KM |
| Ashburys | 2941 | ABY | 2.97 KM |
| Manchester Victoria | 2970 | MCV | 3.14 KM |
| Manchester Oxford Road | 2966 | MCO | 3.52 KM |
Nearby Listings
| Address | Price | Type | Score | Distance |
|---|---|---|---|---|
| Lower Vickers Street ,Manchester M40 | £ 148,500 | BUY | 6 / 10 | 0.00 KM |
| Lower Vickers Street, Manchester, M40 | £ 164,300 | BUY | 6 / 10 | 0.00 KM |
| Lower Vickers Street, Manchester, M40 | £ 226,000 | BUY | 6 / 10 | 0.00 KM |
| Lower Vickers Street, Manchester, M40 | £ 197,500 | BUY | 5 / 10 | 0.00 KM |
| Victoria Mill, 10 Lower Vickers Street, Manchester, Greater Manchester, M40 | £ 90,000 | BUY | Unknown | 0.00 KM |
Nearby Properties
| Address | Price | Distance |
|---|---|---|
| 13 Darton Avenue | £ 55,000 | 0.24 KM |
| 4 Darton Avenue | £ 150,550 | 0.25 KM |
| 6 Darton Avenue | £ 170,000 | 0.25 KM |
| 10 Darton Avenue | £ 141,500 | 0.25 KM |
| 40 Tewkesbury Road | £ 280,700 | 0.26 KM |