Bridge Street, Christchurch, BH23
By Spencers Coastal
£ 1,100,000
Reviews
3 out of 5 stars
Spencers Coastal says ..
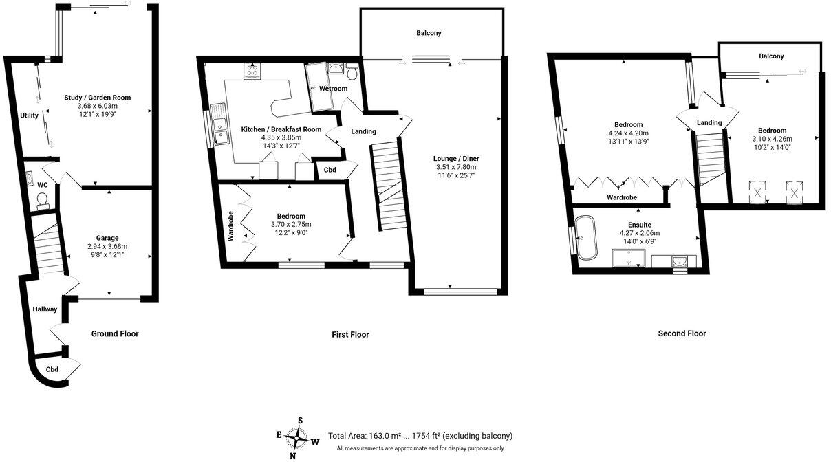
A beautifully presented four-bedroom townhouse, located within the prestigious Rossiters Quay development in Christchurch. This impressive waterside home boasts its own private mooring, multiple south-facing balconies, and is just a short, level walk to Christchurch town centre with its w...
Property Oracle says ..
This detached property on Rossiters Quay, Christchurch, offers a blend of modern living and a prime waterfront location. The house features four bedrooms and two bathrooms, making it suitable for families or those seeking ample living space. The listing indicates that the property is in good condition, with contemporary design elements and well-maintained interiors. Its location on the water adds significant appeal, providing scenic views and potential for water-based activities. While the square footage isn’t specified, the property’s overall features and location contribute to its market value. Nearby schools and transportation options further enhance its desirability.
Therefore, we give this property 7 / 10. *Disclaimer: This is our option and does constitute a recommendation or financial advice. Do your own research. *
- Price
- 6
- Condition
- 8
- Location
- 9
- Land
- 6
- Bedrooms
- 4
- Bathrooms
- 2
The heatmap indicates the level of crime in the area. The color of the heatmap indicates the crime severity and recency.
Metrics Year-on-Year
- Average area value
- 376,983.00 £Decreased by 11.57 %
- Average area rental value
- 1,330.00 £/moDecreased by 14.91 %
- Est rental Yield
- 4.23 %Decreased by 3.86 %
- Crime Rate
- 8.00 %Unchanged by 0.00 %
Agent Activity
Spencers Coastal created the listing.
Nearby Schools
| Name | Type | Ofsted | Distance |
|---|---|---|---|
| Christchurch West | Children's Centre | 0.72 KM | |
| The Priory Church Of England Primary School | Voluntary Aided School | Requires improvement | 0.74 KM |
| Twynham School | Academy Converter | Outstanding | 1.28 KM |
| St Katharine'S Church Of England Primary School | Voluntary Aided School | Good | 1.38 KM |
| Christchurch Learning Centre | Pupil Referral Unit | Good | 1.49 KM |
Images
Nearby Streets
| Name | Average Price | Average Sqft | Distance |
|---|---|---|---|
| Tamlyn's Farm Mews | £ 525,000 | 0 | 0.00 KM |
| Orchid Way | £ 0 | 0 | 0.00 KM |
| Springwater Drive | £ 0 | 0 | 0.00 KM |
| Stanpit Roundabout | £ 0 | 0 | 0.00 KM |
| Meredith Close | £ 399,950 | 0 | 0.00 KM |
Nearby Transport
| Name | NLC | TLC | Distance |
|---|---|---|---|
| Christchurch | 5879 | CHR | 1.54 KM |
| Pokesdown | 5885 | POK | 5.96 KM |
| Hinton Admiral | 5880 | HNA | 6.66 KM |
Nearby Listings
| Address | Price | Type | Score | Distance |
|---|---|---|---|---|
| Bridge Street, Christchurch, BH23 | £ 1,100,000 | BUY | 7 / 10 | 0.00 KM |
| Rossiters Quay, Bridge Street, Christchurch, Dorset, BH23 | £ 1,100,000 | BUY | 6 / 10 | 0.00 KM |
| Rossiters Quay, Christchurch bh23 | £ 1,100,000 | BUY | 8 / 10 | 0.04 KM |
| Rossiters Quay, Christchurch | £ 1,475,000 | BUY | 6 / 10 | 0.04 KM |
| Bridge Street, Christchurch, Dorset, BH23 | £ 650,000 | BUY | 8 / 10 | 0.05 KM |
Nearby Properties
| Address | Price | Distance |
|---|---|---|
| 13 Bridge Street | £ 620,000 | 0.04 KM |
| 25 Bridge Street | £ 950,000 | 0.09 KM |
| 1b Bridge Street | £ 400,000 | 0.09 KM |
| 1 Bridge Street | £ 1,050,000 | 0.09 KM |
| 17a Bridge Street | £ 175,000 | 0.11 KM |