TE
Yorkstones, Cliff Promenade, Broadstairs, CT10
By Terence Painter Estate Agents
£ 300,000
Terence Painter Estate Agents says ..
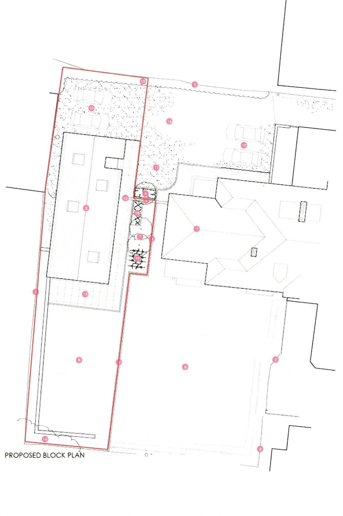
BUILDING PLOT FOR A DETACHED DWELLING ON THE PRESTIGIOUS NORTH FORELAND ESTATE IN BROADSTAIRSThis is an exciting opportunity to acquire a good size building plot measuring approximately 126' x 30' situated off Cliff Promenade on the prestigious gated North Foreland Private Estate; ...
- Bedrooms
- 3
- Bathrooms
- 2
The heatmap indicates the level of crime in the area. The color of the heatmap indicates the crime severity and recency.
Metrics Year-on-Year
- Average area value
- 517,499.00 £Decreased by 30.62 %
- Average area rental value
- 1,500.00 £/moDecreased by 3.35 %
- Est rental Yield
- 3.48 %Increased by 39.20 %
- Crime Rate
- 1.00 %Unchanged by 0.00 %
from 745,925.00 £
from 1,552.00 £/mo
from 2.50 %
from 1.00 %
Agent Activity
Terence Painter Estate Agents created the listing.
Nearby Schools
| Name | Type | Ofsted | Distance |
|---|---|---|---|
| Stone Bay School | Foundation Special School | Good | 0.71 KM |
| St Peter-In-Thanet Cofe Junior School | Voluntary Aided School | Good | 2.09 KM |
| St Mildred'S Primary Infant School | Foundation School | Outstanding | 2.15 KM |
| St Joseph'S Catholic Primary School, Broadstairs | Academy Converter | Good | 2.17 KM |
| Callis Grange Nursery And Infant School | Community School | Outstanding | 2.23 KM |
Images
Nearby Streets
| Name | Average Price | Average Sqft | Distance |
|---|---|---|---|
| Ocean Drive | £ 0 | 0 | 0.00 KM |
| Park Road | £ 525,000 | 0 | 0.00 KM |
| Hamliton Close | £ 950,000 | 0 | 0.00 KM |
| Bishop's Avenue | £ 800,000 | 0 | 0.00 KM |
| Bedford Court | £ 354,832 | 0 | 0.00 KM |
Nearby Transport
| Name | NLC | TLC | Distance |
|---|---|---|---|
| Broadstairs | 5006 | BSR | 2.00 KM |
| Dumpton Park | 5034 | DMP | 3.77 KM |
| Ramsgate | 5023 | RAM | 5.72 KM |
| Margate | 5018 | MAR | 8.54 KM |
Nearby Listings
| Address | Price | Type | Score | Distance |
|---|---|---|---|---|
| Yorkstones, Cliff Promenade, Broadstairs, CT10 | £ 300,000 | BUY | Unknown | 0.00 KM |
| Cliff Promenade, Broadstairs, CT10 | £ 895,000 | BUY | 8 / 10 | 0.12 KM |
| Cliff Promenade, Broadstairs, Kent, CT10 | £ 2,250,000 | BUY | 8 / 10 | 0.13 KM |
| North Foreland Estate, Broadstairs, Kent | £ 499,995 | BUY | 8 / 10 | 0.15 KM |
| Cliff Promenade, Broadstairs, CT10 3QY | £ 1,950,000 | BUY | Unknown | 0.16 KM |
Nearby Properties
| Address | Price | Distance |
|---|---|---|
| St. Georges | £ 679,000 | 0.11 KM |
| Wayfaring | £ 511 | 0.11 KM |
| Yorkstones | £ 750,000 | 0.11 KM |
| Little Wayfaring | £ 330,000 | 0.15 KM |
| North Goodwin House | £ 750,000 | 0.15 KM |