WH
The Oaks, Bognor Regis, PO21
By White & Brooks
£ 575,000
Reviews
3 out of 5 stars
White & Brooks says ..
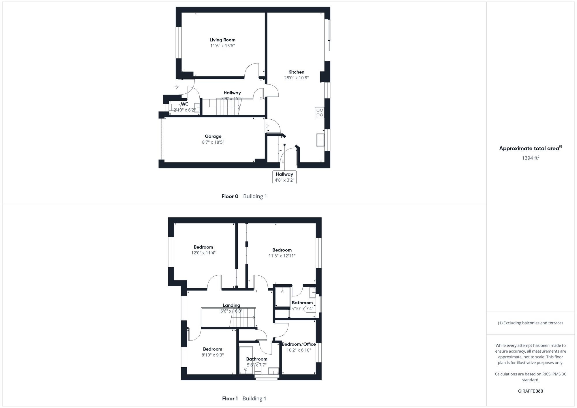
Immaculately presented detached house, situated in a cul-de-sac in the sought after area of Aldwick. The accommodation briefly comprises to the gr...
Property Oracle says ..
Therefore, we give this property 7 / 10. *Disclaimer: This is our option and does constitute a recommendation or financial advice. Do your own research. *
- Price
- 6
- Condition
- 8
- Location
- 7
- Land
- 7
- Bedrooms
- 4
- Bathrooms
- 2
- Sqft (est)
- 1,394.00
The heatmap indicates the level of crime in the area. The color of the heatmap indicates the crime severity and recency.
Metrics Year-on-Year
- Average area value
- 408,333.00 £Decreased by 28.39 %
- Est sale value
- 423,776.00 £Decreased by 11.37 %
- Average area rental value
- 1,550.00 £/moIncreased by 11.03 %
- Est letting value
- 1,394.00 £/mo
- Est rental Yield
- 4.56 %Increased by 55.10 %
- Crime Rate
- 7.00 %Unchanged by 0.00 %
from 570,201.00 £
from 478,142.00 £
from 1,396.00 £/mo
from 0.00 £/mo
from 2.94 %
from 7.00 %
Agent Activity
White & Brooks created the listing.
Nearby Schools
| Name | Type | Ofsted | Distance |
|---|---|---|---|
| Nyewood Cofe Junior School | Voluntary Aided School | Good | 1.51 KM |
| Nyewood Cofe Infant School, Bognor Regis | Voluntary Aided School | Good | 1.60 KM |
| Rose Green Junior School | Academy Converter | Good | 1.76 KM |
| Rose Green Infant School | Community School | Good | 1.81 KM |
| Southway Primary School | Academy Sponsor Led | Requires improvement | 1.86 KM |
Images
Nearby Streets
| Name | Average Price | Average Sqft | Distance |
|---|---|---|---|
| The Spinney | £ 0 | 0 | 0.00 KM |
| Aldwick Road | £ 0 | 0 | 0.00 KM |
| Lower Bognor Road | £ 0 | 0 | 0.00 KM |
| Birch Close | £ 0 | 0 | 0.00 KM |
| Ludlow Close | £ 400,000 | 0 | 0.00 KM |
Nearby Transport
| Name | NLC | TLC | Distance |
|---|---|---|---|
| Bognor Regis | 5253 | BOG | 3.50 KM |
| Barnham | 5252 | BAA | 9.12 KM |
| Chichester | 5255 | CCH | 9.72 KM |
Nearby Listings
| Address | Price | Type | Score | Distance |
|---|---|---|---|---|
| The Oaks, Bognor Regis, PO21 | £ 575,000 | BUY | 7 / 10 | 0.00 KM |
| The Oaks, Bognor Regis, PO21 | £ 600,000 | BUY | 7 / 10 | 0.01 KM |
| Westminster Drive, Bognor Regis, PO21 | £ 390,000 | BUY | Unknown | 0.05 KM |
| Westminster Drive, Bognor Regis, West Sussex, PO21 | £ 425,000 | BUY | 6 / 10 | 0.05 KM |
| The Oaks, Aldwick, PO21 | £ 585,000 | BUY | Unknown | 0.07 KM |
Nearby Properties
| Address | Price | Distance |
|---|---|---|
| 21 Westminster Drive | £ 266,000 | 0.04 KM |
| 16 Westminster Drive | £ 325,000 | 0.04 KM |
| 3 Westminster Drive | £ 430,000 | 0.04 KM |
| 1 Westminster Drive | £ 430,000 | 0.04 KM |
| 22 Westminster Drive | £ 345,000 | 0.04 KM |