Development Opportunity, Chatsworth Road, Bitterne, SO19
By Marco Harris
£ 525,000
Reviews
2 out of 5 stars
Marco Harris says ..
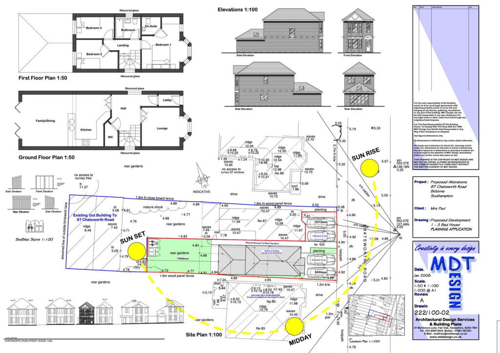
Welcome To Chatsworth Road! PLANNING PERMISSION APPROVED! A fantastic development opportunity consisting of a detached three bedroom home, a building plot with planning for an additional three bedroom detached and an outbuilding which could be converted to an annex with the correct planning pe...
Property Oracle says ..
This detached property on Chatsworth Road, Sholing, Southampton, presents a significant development opportunity. While the house requires extensive renovation, it benefits from a large plot and a detached outbuilding. The location is convenient, with proximity to schools and transportation. The property is listed for £525,000.
Therefore, we give this property 5 / 10. *Disclaimer: This is our option and does constitute a recommendation or financial advice. Do your own research. *
- Price
- 6
- Condition
- 2
- Location
- 7
- Land
- 7
- Bedrooms
- 3
- Bathrooms
- 1
- Sqft (est)
- 124.88
The heatmap indicates the level of crime in the area. The color of the heatmap indicates the crime severity and recency.
Metrics Year-on-Year
- Average area value
- 298,182.00 £Increased by 13.23 %
- Est sale value
- 40,211.36 £Increased by 2.55 %
- Average area rental value
- 1,058.00 £/moDecreased by 12.78 %
- Est letting value
- 124.88 £/moUnchanged by 0.00 %
- Est rental Yield
- 4.26 %Decreased by 22.97 %
- Crime Rate
- 3.00 %Unchanged by 0.00 %
Agent Activity
Marco Harris created the listing.
Nearby Schools
| Name | Type | Ofsted | Distance |
|---|---|---|---|
| Itchen College | Further Education | Requires improvement | 0.28 KM |
| Bitterne Sure Start Children Centre | Children's Centre | 0.45 KM | |
| Sholing Junior School | Academy Converter | 0.52 KM | |
| Sholing Infant School | Academy Converter | 0.66 KM | |
| Bitterne Ce Primary School | Voluntary Controlled School | Good | 0.71 KM |
Images
Nearby Streets
| Name | Average Price | Average Sqft | Distance |
|---|---|---|---|
| Lavender Close | £ 0 | 0 | 0.00 KM |
| Lynden Gate | £ 0 | 0 | 0.00 KM |
| Cleveland Road | £ 0 | 0 | 0.00 KM |
| Wakefield Court | £ 195,000 | 0 | 0.00 KM |
| Round Hill Close | £ 0 | 0 | 0.00 KM |
Nearby Transport
| Name | NLC | TLC | Distance |
|---|---|---|---|
| Sholing | 5930 | SHO | 1.85 KM |
| Bitterne | 5945 | BTE | 2.42 KM |
| Woolston | 5925 | WLS | 2.66 KM |
| St Denys | 5914 | SDN | 3.69 KM |
| Swaythling | 5933 | SWG | 4.01 KM |
Nearby Listings
| Address | Price | Type | Score | Distance |
|---|---|---|---|---|
| Development Opportunity, Chatsworth Road, Bitterne, SO19 | £ 525,000 | BUY | 5 / 10 | 0.00 KM |
| Chatsworth Road, Southampton | £ 315,000 | BUY | 6 / 10 | 0.07 KM |
| Chatsworth Road | £ 315,000 | BUY | Unknown | 0.07 KM |
| GUIDE PRICE- £325,000-£350,000! CHATSWORTH ROAD! NO FORWARD CHAIN! | £ 325,000 | BUY | Unknown | 0.08 KM |
| BITTERNE! EXTENDED HOUSE! OPEN PLAN LIVING! | £ 350,000 | BUY | 6 / 10 | 0.08 KM |
Nearby Properties
| Address | Price | Distance |
|---|---|---|
| 17 Chatsworth Road | £ 322,500 | 0.01 KM |
| 29 Chatsworth Road | £ 311,000 | 0.01 KM |
| 41 Chatsworth Road | £ 240,000 | 0.01 KM |
| 89 Chatsworth Road | £ 430,000 | 0.01 KM |
| 19 Chatsworth Road | £ 305,000 | 0.01 KM |