Caernarvon Way, Milking Bank
By Taylors Estate Agents
£ 374,950
Reviews
3 out of 5 stars
Taylors Estate Agents says ..
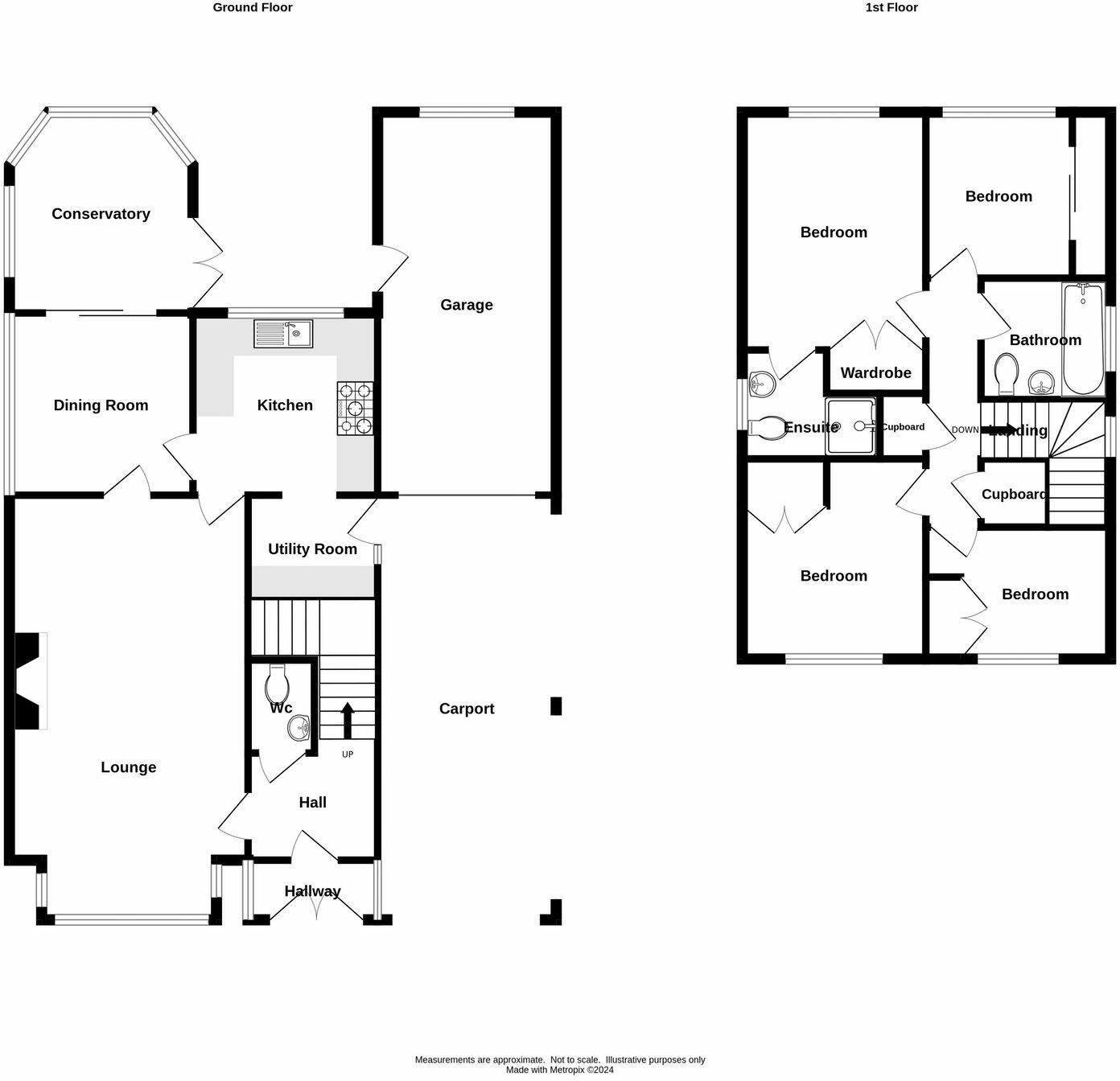
A FANTASTIC DETACHED family home, situated on the hugely desirable Milking Bank, offering easy access to popular schools, shops & other amenities. Being gas centrally heated & UPVC double glazed, this impressive residence also comprises; entrance porch, reception hallway, 22ft lounge, ...
Property Oracle says ..
This four-bedroom, two-bathroom detached house located on Caernarvon Way, Milking Bank in Dudley, West Midlands offers a comfortable family home. The property benefits from proximity to highly-rated primary schools, making it appealing to families with young children. The interior reveals a mix of modern and slightly dated features. While the house is well-maintained and doesn’t appear to require substantial renovations, some stylistic choices might not appeal to all buyers. For example, some wallpaper choices are somewhat dated. The kitchen seems functional but could benefit from a refresh to elevate its modern appeal. The property features a rear garden, providing outdoor space, although its size appears moderate. The inclusion of a driveway and possibly a garage (partially visible in one of the images) adds practicality. The asking price is competitive considering comparable properties listed in the area, although a lack of precise square footage data for those properties makes a complete value-per-square-foot comparison challenging. Overall, it presents a solid family home in a desirable location but could benefit from minor aesthetic updates to maximise its market appeal.
Therefore, we give this property 6 / 10. *Disclaimer: This is our option and does constitute a recommendation or financial advice. Do your own research. *
- Price
- 7
- Condition
- 6
- Location
- 7
- Land
- 5
- Bedrooms
- 4
- Bathrooms
- 2
- Sqft (est)
- 1,600.00
The heatmap indicates the level of crime in the area. The color of the heatmap indicates the crime severity and recency.
Metrics Year-on-Year
- Average area value
- 1,598,970.00 £Decreased by 20.58 %
- Est sale value
- 2,331,200.00 £Decreased by 26.53 %
- Average area rental value
- 2,716.00 £/moDecreased by 1.74 %
- Est letting value
- 3,200.00 £/moUnchanged by 0.00 %
- Est rental Yield
- 2.04 %Increased by 23.64 %
- Crime Rate
- 2.00 %Unchanged by 0.00 %
Agent Activity
Taylors Estate Agents created the listing.
Nearby Schools
| Name | Type | Ofsted | Distance |
|---|---|---|---|
| Milking Bank Primary School | Community School | Good | 0.34 KM |
| Cherry Tree Learning Centre | Academy Alternative Provision Converter | 0.70 KM | |
| Russells Hall Primary School | Community School | Good | 0.75 KM |
| Roberts Primary School | Community School | Good | 0.88 KM |
| Gornal Children'S Centre | Children's Centre | 0.93 KM |
Images
Nearby Streets
| Name | Average Price | Average Sqft | Distance |
|---|---|---|---|
| Winchcombe Close | £ 0 | 0 | 0.00 KM |
| Russell's Hall Road | £ 0 | 0 | 0.00 KM |
| Grosvenor Road South | £ 0 | 0 | 0.00 KM |
| Jew's Lane | £ 0 | 0 | 0.00 KM |
| Sparrowhawk Fold | £ 0 | 0 | 0.00 KM |
Nearby Transport
| Name | NLC | TLC | Distance |
|---|---|---|---|
| Coseley | 1143 | CSY | 4.74 KM |
| Cradley Heath | 4639 | CRA | 5.72 KM |
| Tipton | 1159 | TIP | 5.80 KM |
| Lye (West Midlands) | 4640 | LYE | 6.08 KM |
| Stourbridge Town | 4643 | SBT | 7.17 KM |
Nearby Listings
| Address | Price | Type | Score | Distance |
|---|---|---|---|---|
| Caernarvon Way, Milking Bank | £ 374,950 | BUY | 6 / 10 | 0.00 KM |
| Belvoir Close, Dudley, | £ 310,000 | BUY | 6 / 10 | 0.11 KM |
| Belvoir Close, Milking Bank, Dudley | £ 374,950 | BUY | 7 / 10 | 0.11 KM |
| Balmoral View, Dudley | £ 300,000 | BUY | 7 / 10 | 0.16 KM |
| Ludlow Way, Milking Bank, Dudley, West Midlands, DY1 | £ 375,000 | BUY | 7 / 10 | 0.17 KM |
Nearby Properties
| Address | Price | Distance |
|---|---|---|
| 1 Caernarvon Way | £ 265,000 | 0.01 KM |
| 17 Caernarvon Way | £ 225,000 | 0.01 KM |
| 7 Caernarvon Way | £ 232,500 | 0.01 KM |
| 6 Caernarvon Way | £ 222,500 | 0.01 KM |
| 3 Caernarvon Way | £ 192,000 | 0.01 KM |