Chancellors says ..
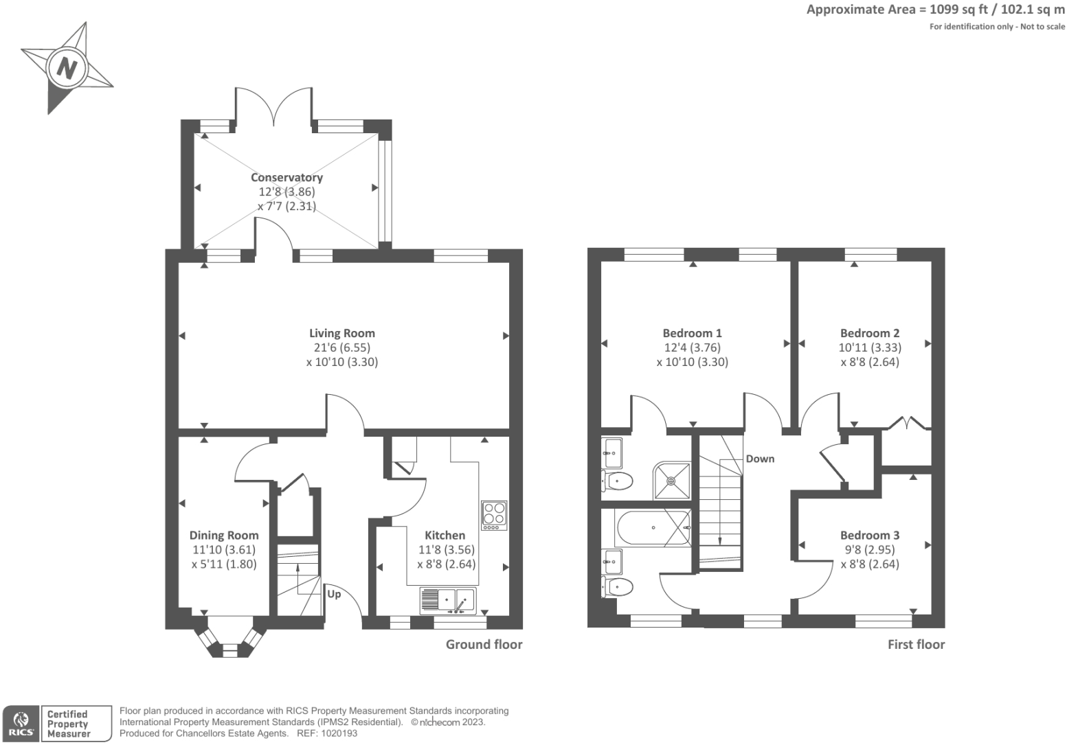
Set in this popular location convenient for Reading Town Centre, Reading Station and The Oracle is this three bedroom townhouse being sold with no onward chain. The accommodation comprises sitting room, dining room, kitchen with appliances, conservatory, ground floor WC. Master with en suite, garage
Property Oracle says ..
This three-bedroom townhouse in Reading, Berkshire, presents a reasonable option for potential buyers. Its location offers easy access to both Reading West and Reading mainline stations, facilitating convenient commutes. The proximity to several schools is another plus point for families. The property itself appears well-maintained from the exterior, though some interior images show the property requiring some minor cosmetic improvements and decluttering before it would be considered move-in ready. The inclusion of a small garden with a conservatory adds to its appeal. The list price is reasonably competitive when considering comparable properties in the area. However, the lack of precise square footage data for similar properties limits a detailed comparative analysis. Potential buyers should consider arranging a viewing to assess the property’s condition fully and determine whether it meets their needs and preferences.
Therefore, we give this property 6 / 10. *Disclaimer: This is our option and does constitute a recommendation or financial advice. Do your own research. *
- Price
- 7
- Condition
- 6
- Location
- 7
- Land
- 4
- Bedrooms
- 3
- Bathrooms
- 2
- Sqft (est)
- 1,099.00
The heatmap indicates the level of crime in the area. The color of the heatmap indicates the crime severity and recency.
Metrics Year-on-Year
- Average area value
- 382,304.00 £Increased by 10.41 %
- Est sale value
- 467,075.00 £Increased by 23.91 %
- Average area rental value
- 1,370.00 £/moIncreased by 3.55 %
- Est letting value
- 1,099.00 £/moUnchanged by 0.00 %
- Est rental Yield
- 4.30 %Decreased by 6.32 %
- Crime Rate
- 1.00 %Unchanged by 0.00 %
Agent Activity
Chancellors created the listing.
Nearby Schools
| Name | Type | Ofsted | Distance |
|---|---|---|---|
| All Saints Junior School | Free Schools | Outstanding | 0.44 KM |
| All Saints Church Of England Aided Infant School | Voluntary Aided School | Good | 0.44 KM |
| Coley Park | Children's Centre | 0.53 KM | |
| St Mary & All Saints Church Of England Primary School | Academy Sponsor Led | 0.56 KM | |
| St Edward'S Prep | Other Independent School | 0.63 KM |
Images
Nearby Streets
| Name | Average Price | Average Sqft | Distance |
|---|---|---|---|
| Ashley Road | £ 600,000 | 0 | 0.00 KM |
| Bath Road Overbridge | £ 1,150,000 | 0 | 0.00 KM |
| Josephine Court | £ 0 | 0 | 0.00 KM |
| Connaught Road | £ 0 | 0 | 0.00 KM |
| Monck Court | £ 0 | 0 | 0.00 KM |
Nearby Transport
| Name | NLC | TLC | Distance |
|---|---|---|---|
| Reading West | 3160 | RDW | 0.83 KM |
| Reading | 3149 | RDG | 2.34 KM |
| Tilehurst | 3154 | TLH | 5.12 KM |
| Earley | 5694 | EAR | 8.00 KM |
| Theale | 3153 | THE | 9.53 KM |
Nearby Listings
| Address | Price | Type | Score | Distance |
|---|---|---|---|---|
| Reading, Berkshire, RG1 | £ 500,000 | BUY | 6 / 10 | 0.00 KM |
| Bath Road, Reading | £ 465,000 | BUY | 6 / 10 | 0.07 KM |
| Flordia Court, Bath Road, Reading | £ 310,000 | BUY | 5 / 10 | 0.10 KM |
| Littlecote Drive, Reading | £ 725,000 | BUY | 7 / 10 | 0.11 KM |
| Littlecote Drive, Reading, Berkshire, RG1 | £ 625,000 | BUY | Unknown | 0.13 KM |
Nearby Properties
| Address | Price | Distance |
|---|---|---|
| 76 Berkeley Avenue | £ 385,000 | 0.05 KM |
| 102 Berkeley Avenue | £ 400,000 | 0.05 KM |
| 92 Berkeley Avenue | £ 627,500 | 0.05 KM |
| 94 Berkeley Avenue | £ 515,000 | 0.05 KM |
| 2 Littlecote Drive | £ 399,500 | 0.12 KM |