Yopa says ..
A charming, ready-to-move-in, well-maintained, chain-free one-bedroom flat, in the heart of Guildford. Whether you're stepping onto the property ladder as a first-time home buyer or seeking a solid rental asset as an investor, this home offers this and more!
Property Oracle says ..
Therefore, we give this property 5 / 10. *Disclaimer: This is our option and does constitute a recommendation or financial advice. Do your own research. *
- Price
- 3
- Condition
- 5
- Location
- 7
- Land
- 7
- Bedrooms
- 1
- Bathrooms
- 1
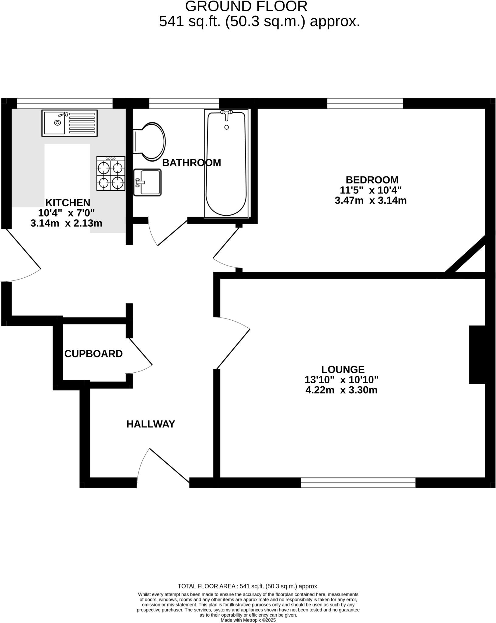
- Sqft (est)
- 344.64
The heatmap indicates the level of crime in the area. The color of the heatmap indicates the crime severity and recency.
Metrics Year-on-Year
- Average area value
- 318,816.00 £Decreased by 2.54 %
- Est sale value
- 122,691.84 £Decreased by 5.57 %
- Average area rental value
- 1,709.00 £/moIncreased by 11.63 %
- Est letting value
- 344.64 £/moUnchanged by 0.00 %
- Est rental Yield
- 6.43 %Increased by 14.41 %
- Crime Rate
- 10.00 %Unchanged by 0.00 %
from 327,134.00 £
from 129,929.28 £
from 1,531.00 £/mo
from 344.64 £/mo
from 5.62 %
from 10.00 %
Agent Activity
Yopa created the listing.
Nearby Schools
| Name | Type | Ofsted | Distance |
|---|---|---|---|
| Wey Valley College | Academy Alternative Provision Converter | 0.61 KM | |
| Kings College Guildford | Academy Sponsor Led | Good | 0.67 KM |
| St Joseph'S Catholic Primary School | Voluntary Aided School | Good | 0.75 KM |
| Rydes Hill Preparatory School | Other Independent School | 0.84 KM | |
| Queen Eleanor'S Church Of England School | Academy Converter | Good | 0.88 KM |
Images
Nearby Streets
| Name | Average Price | Average Sqft | Distance |
|---|---|---|---|
| Fairfield Close | £ 435,000 | 0 | 0.00 KM |
| Willway Court | £ 0 | 0 | 0.00 KM |
| St John's Close | £ 0 | 0 | 0.00 KM |
| The Square | £ 0 | 0 | 0.00 KM |
| Langford Close | £ 0 | 0 | 0.00 KM |
Nearby Transport
| Name | NLC | TLC | Distance |
|---|---|---|---|
| Guildford | 5631 | GLD | 2.43 KM |
| London Road (Guildford) | 5632 | LRD | 4.00 KM |
| Shalford (Surrey) | 5638 | SFR | 5.06 KM |
| Farncombe | 5643 | FNC | 5.28 KM |
| Worplesdon | 5686 | WPL | 5.37 KM |
Nearby Listings
| Address | Price | Type | Score | Distance |
|---|---|---|---|---|
| Roundhill Way, Guildford, GU2 | £ 250,000 | BUY | 5 / 10 | 0.00 KM |
| Hillcrest Road, Guildford, GU2 | £ 250,000 | BUY | Unknown | 0.13 KM |
| Foxburrows Avenue, Guildford, Surrey, GU2 | £ 325,000 | BUY | Unknown | 0.19 KM |
| Beech Grove, Guildford | £ 515,000 | BUY | Unknown | 0.22 KM |
| Beech Grove, Guildford, Surrey, GU2 | £ 625,000 | BUY | 8 / 10 | 0.23 KM |
Nearby Properties
| Address | Price | Distance |
|---|---|---|
| 56 Roundhill Way | £ 205,000 | 0.00 KM |
| 82 Roundhill Way | £ 175,000 | 0.00 KM |
| 75 Roundhill Way | £ 240,000 | 0.00 KM |
| 89 Roundhill Way | £ 168,500 | 0.00 KM |
| 65 Roundhill Way | £ 160,000 | 0.00 KM |