Foxtons says ..
Incredible 5-bedroom family home, boasting a modern kitchen with breakfast island, 2 reception rooms, plus a main bedroom with ensuite and built in storage. There is also a sunny garden with large home gym/office.
Property Oracle says ..
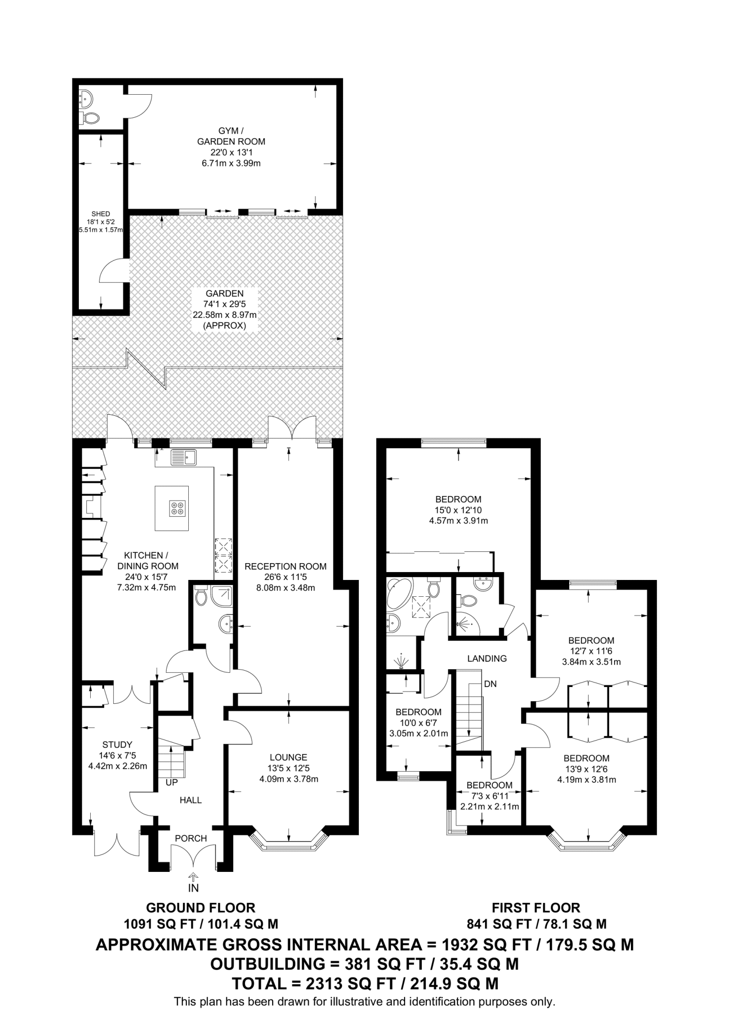
This property is a 5 bedroom, 3 bathroom house located on Parkland Avenue, Slough, Berkshire. The property is listed at £950,000 and has a plot size of 2,313 sqft and is 2,268.75 sqft. The property appears to be in good condition based on the provided photos. The kitchen has recently been renovated to a high standard, and the rest of the property seems well-maintained. There is evidence of a good-sized garden to the rear of the property. The location is also a positive aspect. The property is situated close to several highly-rated schools, including Castleview Primary School (rated ‘Good’) which is only 0.21km away. There are also several other schools within a reasonable distance. The proximity to several train stations (Datchet, Langley, Sunnymeads, Slough, and Windsor and Eton Riverside) provides good transport links. Considering the average house price in the area is £345,036 and the average price per sqft is £340, the asking price of £950,000 for this property seems high. However, the property’s size, condition, and location justify a higher price than average. The recent kitchen renovation is a significant factor. While a definitive price justification requires a more in-depth market analysis, the property’s features and location suggest that the price is within the range of similar high-end properties in the area.
Therefore, we give this property 8 / 10. *Disclaimer: This is our option and does constitute a recommendation or financial advice. Do your own research. *
- Price
- 7
- Condition
- 8
- Location
- 9
- Land
- 8
- Bedrooms
- 5
- Bathrooms
- 3
- Sqft (est)
- 2,268.75
- Lot (est)
- 2,313.00
The heatmap indicates the level of crime in the area. The color of the heatmap indicates the crime severity and recency.
Metrics Year-on-Year
- Average area value
- 364,766.00 £Decreased by 2.54 %
- Est sale value
- 721,462.50 £Increased by 5.30 %
- Average area rental value
- 1,277.00 £/moDecreased by 18.09 %
- Est letting value
- 2,268.75 £/moUnchanged by 0.00 %
- Est rental Yield
- 4.20 %Decreased by 16.00 %
- Crime Rate
- 2.00 %Unchanged by 0.00 %
Agent Activity
Foxtons created the listing.
Nearby Schools
| Name | Type | Ofsted | Distance |
|---|---|---|---|
| Castleview Primary School | Academy Converter | Good | 0.21 KM |
| Ryvers School | Academy Converter | Good | 0.72 KM |
| Ditton Park Academy | Free Schools | Good | 1.01 KM |
| The Langley Academy Primary | Free Schools | Outstanding | 1.19 KM |
| Langley Grammar School | Academy Converter | 1.20 KM |
Images
Nearby Streets
| Name | Average Price | Average Sqft | Distance |
|---|---|---|---|
| London Road | £ 699,000 | 0 | 0.00 KM |
| King's Reach | £ 0 | 0 | 0.00 KM |
| Thorn Road | £ 0 | 0 | 0.00 KM |
| Florence Mews | £ 0 | 0 | 0.00 KM |
| Jackson Close | £ 0 | 0 | 0.00 KM |
Nearby Transport
| Name | NLC | TLC | Distance |
|---|---|---|---|
| Datchet | 5668 | DAT | 2.40 KM |
| Langley | 3171 | LNY | 2.65 KM |
| Sunnymeads | 5675 | SNY | 3.05 KM |
| Slough | 3172 | SLO | 3.51 KM |
| Windsor And Eton Riverside | 5672 | WNR | 4.96 KM |
Nearby Listings
| Address | Price | Type | Score | Distance |
|---|---|---|---|---|
| Parkland Avenue, Langley, Slough, SL3 | £ 900,000 | BUY | 6 / 10 | 0.07 KM |
| Langley, SL3, SL3 | £ 950,000 | BUY | 7 / 10 | 0.15 KM |
| Courtlands Avenue, Langley, SL3 | £ 765,000 | BUY | 7 / 10 | 0.16 KM |
| Courtlands Avenue, Langley, Slough, SL3 | £ 800,000 | BUY | Unknown | 0.17 KM |
| Marlborough Road, Langley, SL3 | £ 775,000 | BUY | 7 / 10 | 0.17 KM |
Nearby Properties
| Address | Price | Distance |
|---|---|---|
| 22 Parkland Avenue | £ 334,950 | 0.02 KM |
| 32 Parkland Avenue | £ 455,000 | 0.02 KM |
| 10 Parkland Avenue | £ 406,000 | 0.02 KM |
| 2 Parkland Avenue | £ 370,000 | 0.02 KM |
| 6 Parkland Avenue | £ 320,000 | 0.02 KM |