Parish Lane, London, SE20
By Bromley Property Company
£ 325,000
Reviews
3 out of 5 stars
Bromley Property Company says ..
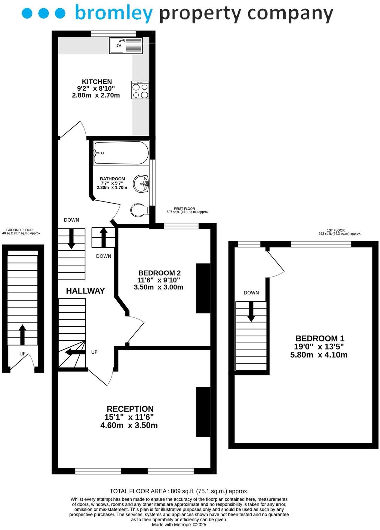
This 2 floor floor split level bedroom Victorian conversion flat is located close to Penge East station and within walking distance of Penge High Street and within esasy reach of Beckenham.
Property Oracle says ..
A two-bedroom flat in Penge And Cator, Bromley, London. The property is located close to transport links and schools. The property appears to be in reasonable condition, but could benefit from some modernisation. The property is priced below the average for the area.
Therefore, we give this property 6 / 10. *Disclaimer: This is our option and does constitute a recommendation or financial advice. Do your own research. *
- Price
- 7
- Condition
- 6
- Location
- 7
- Land
- 0
- Bedrooms
- 2
- Bathrooms
- 1
- Sqft (est)
- 809.00
The heatmap indicates the level of crime in the area. The color of the heatmap indicates the crime severity and recency.
Metrics Year-on-Year
- Average area value
- 470,278.00 £Decreased by 9.27 %
- Est sale value
- 443,332.00 £Increased by 64.07 %
- Average area rental value
- 1,755.00 £/moDecreased by 20.59 %
- Est letting value
- 1,618.00 £/moIncreased by 100.00 %
- Est rental Yield
- 4.48 %Decreased by 12.50 %
- Crime Rate
- 5.00 %Unchanged by 0.00 %
Agent Activity
Bromley Property Company created the listing.
Nearby Schools
| Name | Type | Ofsted | Distance |
|---|---|---|---|
| St John'S Church Of England Primary School | Academy Sponsor Led | Good | 0.51 KM |
| Alexandra Junior School | Academy Converter | Good | 0.69 KM |
| Harris Primary Academy Kent House | Academy Sponsor Led | Outstanding | 0.76 KM |
| Harris Primary Academy Crystal Palace | Academy Sponsor Led | Good | 0.82 KM |
| Alexandra Infant School | Academy Converter | Good | 0.84 KM |
Images
Nearby Streets
| Name | Average Price | Average Sqft | Distance |
|---|---|---|---|
| Alexandra Road | £ 0 | 0 | 0.00 KM |
| High Street | £ 0 | 0 | 0.00 KM |
| London Bridge to Windmill Bridge Junction | £ 0 | 0 | 0.00 KM |
| Evergreen Close | £ 0 | 0 | 0.00 KM |
| Broseley Grove | £ 0 | 0 | 0.00 KM |
Nearby Transport
| Name | NLC | TLC | Distance |
|---|---|---|---|
| Penge East | 5072 | PNE | 0.28 KM |
| Penge West | 5378 | PNW | 1.00 KM |
| Kent House | 5080 | KTH | 1.00 KM |
| Sydenham | 5437 | SYD | 1.03 KM |
| Clock House | 5048 | CLK | 1.65 KM |
Nearby Listings
| Address | Price | Type | Score | Distance |
|---|---|---|---|---|
| Parish Lane, London, SE20 | £ 325,000 | BUY | 6 / 10 | 0.00 KM |
| Parish Lane, London | £ 230,000 | BUY | Unknown | 0.01 KM |
| Parish Lane, London, SE20 | £ 575,000 | BUY | 5 / 10 | 0.01 KM |
| Parish Lane, London, SE20 | £ 160,000 | BUY | 5 / 10 | 0.03 KM |
| Parish Lane, Penge, London, SE20 | £ 300,000 | BUY | 7 / 10 | 0.03 KM |
Nearby Properties
| Address | Price | Distance |
|---|---|---|
| 43 Parish Lane | £ 225,000 | 0.04 KM |
| 50b Parish Lane | £ 155,995 | 0.04 KM |
| 55 Parish Lane | £ 201,000 | 0.04 KM |
| 45 Parish Lane | £ 625,000 | 0.04 KM |
| 49b Parish Lane | £ 184,000 | 0.04 KM |