Kallars says ..
Discover this charming one bedroom apartment in the sought-after Deptford. Featuring large windows, open plan living, and excellent transport links.
Property Oracle says ..
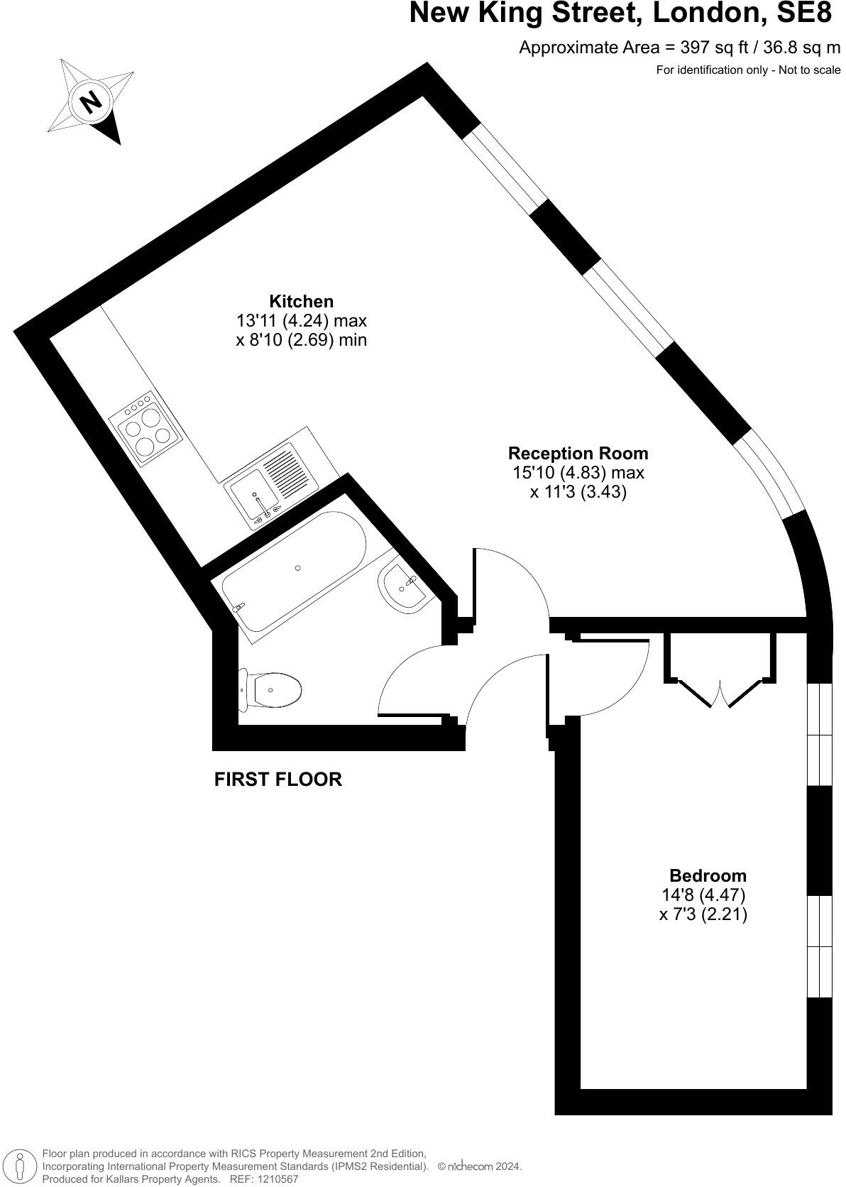
This is a one-bedroom apartment located in Deptford, London. The property is in good condition, featuring a modern kitchen and bathroom. It benefits from its location, with convenient access to transportation and local schools. The asking price of £290,000 appears competitive given the local market conditions.
Therefore, we give this property 5 / 10. *Disclaimer: This is our option and does constitute a recommendation or financial advice. Do your own research. *
- Price
- 7
- Condition
- 8
- Location
- 7
- Land
- 1
- Bedrooms
- 1
- Bathrooms
- 1
- Sqft (est)
- 145.74
The heatmap indicates the level of crime in the area. The color of the heatmap indicates the crime severity and recency.
Metrics Year-on-Year
- Average area value
- 460,000.00 £Decreased by 0.33 %
- Est sale value
- 91,087.50 £Decreased by 7.68 %
- Average area rental value
- 2,264.00 £/moIncreased by 1.25 %
- Est letting value
- 437.22 £/moUnchanged by 0.00 %
- Est rental Yield
- 5.91 %Increased by 1.72 %
- Crime Rate
- 6.00 %Unchanged by 0.00 %
Agent Activity
Kallars created the listing.
Nearby Schools
| Name | Type | Ofsted | Distance |
|---|---|---|---|
| St Joseph'S Catholic Primary School | Voluntary Aided School | Good | 0.33 KM |
| Grinling Gibbons Primary School | Community School | Good | 0.34 KM |
| Rachel Mcmillan Nursery School And Children'S Centre | Local Authority Nursery School | Outstanding | 0.35 KM |
| Rachel Mcmillan Nursery School And Children'S Centre | Children's Centre | 0.35 KM | |
| Tidemill Academy | Academy Converter | 0.56 KM |
Images
Nearby Streets
| Name | Average Price | Average Sqft | Distance |
|---|---|---|---|
| Watergate Street | £ 385,000 | 0 | 0.00 KM |
| Hyde Street | £ 0 | 0 | 0.00 KM |
| Creek Road | £ 0 | 0 | 0.00 KM |
| Ffinch Street | £ 0 | 0 | 0.00 KM |
| Barnes Terrace | £ 0 | 0 | 0.00 KM |
Nearby Transport
| Name | NLC | TLC | Distance |
|---|---|---|---|
| Deptford | 5145 | DEP | 0.31 KM |
| St Johns | 5059 | SAJ | 1.43 KM |
| Greenwich | 5146 | GNW | 1.50 KM |
| New Cross Gate | 5345 | NXG | 1.71 KM |
| Lewisham | 5051 | LEW | 2.24 KM |
Nearby Listings
| Address | Price | Type | Score | Distance |
|---|---|---|---|---|
| New King Street, Deptford, SE8 | £ 290,000 | BUY | 5 / 10 | 0.00 KM |
| New King Street, London, SE8 | £ 325,000 | BUY | Unknown | 0.00 KM |
| Deptford High Street, Deptford | £ 345,000 | BUY | Unknown | 0.03 KM |
| Deptford High Street, Deptford | £ 345,000 | BUY | 6 / 10 | 0.03 KM |
| Deptford High Street, Deptford | £ 465,000 | BUY | 6 / 10 | 0.03 KM |
Nearby Properties
| Address | Price | Distance |
|---|---|---|
| 189 Deptford High Street | £ 230,000 | 0.10 KM |
| 186a Deptford High Street | £ 500,000 | 0.12 KM |
| 204a Deptford High Street | £ 35,000 | 0.12 KM |
| 172 Deptford High Street | £ 369,500 | 0.12 KM |
| 54 Watergate Street | £ 535,000 | 0.14 KM |