Haselworth Drive, Alverstoke, Hampshire, PO12
By White & Brooks
£ 425,000
Reviews
3 out of 5 stars
White & Brooks says ..
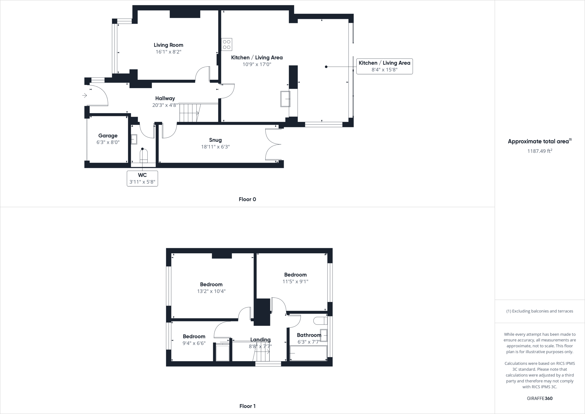
Situated in popular Alverstoke, this extended 4 bedroom semi-detached home with driveways for up to 3 cars has been extended by the current owner and is immaculately presented throughout. In our opinion the layout and internal spaces offer flexible configuration options to suit modern family lif...
Property Oracle says ..
This property is a 4-bedroom, 1-bathroom semi-detached house located in Alverstoke, Hampshire. The property is in good condition and has been recently modernised, as evidenced by the updated kitchen and bathroom. There is a well-maintained garden with a patio area and shed, and ample off-street parking. The location is convenient, with nearby schools and transportation links. The list price is slightly above the average price per square foot for the area, but this is justified by the property’s condition, size, and features. Overall, this is a desirable property in a good location.
Therefore, we give this property 7 / 10. *Disclaimer: This is our option and does constitute a recommendation or financial advice. Do your own research. *
- Price
- 7
- Condition
- 9
- Location
- 8
- Land
- 7
- Bedrooms
- 4
- Bathrooms
- 1
- Sqft (est)
- 1,118.92
- Lot (est)
- 1,187.49
The heatmap indicates the level of crime in the area. The color of the heatmap indicates the crime severity and recency.
Metrics Year-on-Year
- Average area value
- 207,500.00 £Decreased by 25.00 %
- Est sale value
- 260,708.36 £Decreased by 17.96 %
- Average area rental value
- 880.00 £/moDecreased by 9.18 %
- Est letting value
- 0.00 £/mo
- Est rental Yield
- 5.09 %Increased by 21.19 %
- Crime Rate
- 0.00 %
Agent Activity
White & Brooks marked this listing as sold.
White & Brooks created the listing.
Nearby Schools
| Name | Type | Ofsted | Distance |
|---|---|---|---|
| Haselworth Primary School | Community School | Good | 1.04 KM |
| Haselbridge Children'S Centre | Children's Centre | 1.08 KM | |
| Alverstoke Community Infant School | Community School | Outstanding | 1.42 KM |
| Alverstoke Church Of England Aided Junior School | Voluntary Aided School | Good | 1.57 KM |
| Leesland Church Of England Controlled Junior School | Voluntary Controlled School | Good | 1.61 KM |
Images
Nearby Streets
| Name | Average Price | Average Sqft | Distance |
|---|---|---|---|
| Longwater Drive | £ 385,000 | 0 | 0.00 KM |
| Park Road | £ 348,333 | 0 | 0.00 KM |
| Beechcroft Road | £ 647,500 | 0 | 0.00 KM |
| Cleveland Road | £ 0 | 0 | 0.00 KM |
| Molesworth Road | £ 0 | 0 | 0.00 KM |
Nearby Transport
| Name | NLC | TLC | Distance |
|---|---|---|---|
| Portsmouth Harbour | 5540 | PMH | 3.59 KM |
| Portsmouth And Southsea | 5537 | PMS | 5.37 KM |
| Ryde Pier Head | 5541 | RYP | 5.42 KM |
| Ryde Esplanade | 5542 | RYD | 6.03 KM |
| Ryde St Johns Road | 5543 | RYR | 6.78 KM |
Nearby Listings
| Address | Price | Type | Score | Distance |
|---|---|---|---|---|
| Haselworth Drive, Alverstoke, Hampshire, PO12 | £ 425,000 | BUY | 7 / 10 | 0.00 KM |
| Clayhall Road, Alverstoke, Gosport, Hampshire, PO12 | £ 470,000 | BUY | 7 / 10 | 0.10 KM |
| Clayhall Road, Alverstoke, Gosport | £ 450,000 | BUY | 6 / 10 | 0.10 KM |
| Lennox Close, Alverstoke, Gosport PO12 2UJ | £ 450,000 | BUY | 5 / 10 | 0.10 KM |
| Gilkicker Road, Gosport, Hampshire, PO12 | £ 660,000 | BUY | 7 / 10 | 0.17 KM |
Nearby Properties
| Address | Price | Distance |
|---|---|---|
| 28 Haselworth Drive | £ 290,000 | 0.01 KM |
| 15 Haselworth Drive | £ 203,000 | 0.01 KM |
| 3 Haselworth Drive | £ 345,000 | 0.01 KM |
| 11 Haselworth Drive | £ 265,000 | 0.01 KM |
| 70 Haselworth Drive | £ 299,000 | 0.01 KM |