Andrew Pearce says ..
This beautifully presented THREE / FOUR BEDROOM, end-of-terrace house is situated within an award-winning mews-style development, ideally located within the desirable Westfield Park Estate. The property offers a perfect blend of comfort and convenience, being just a short distance from the ...
Property Oracle says ..
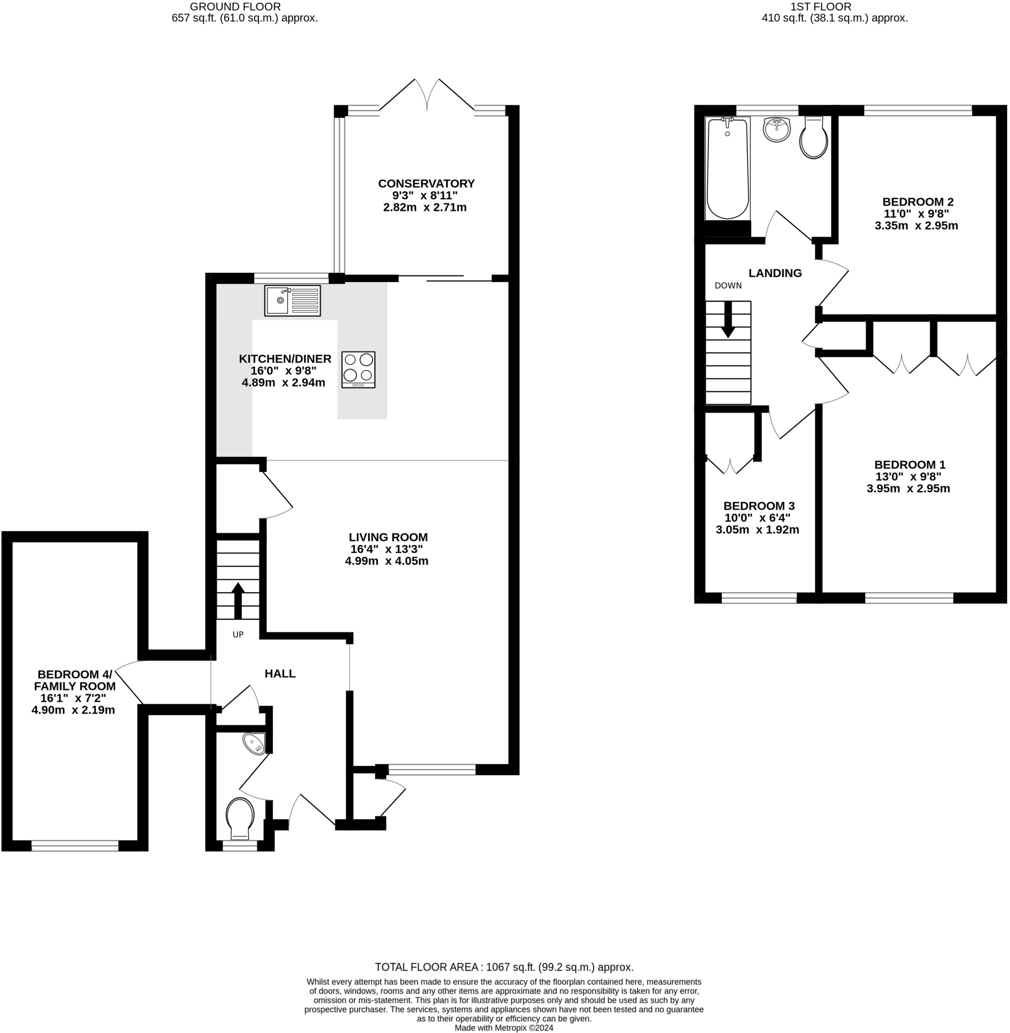
This three-bedroom house in Oakdene Close, Pinner, presents itself as a well-maintained property in a desirable location. The images depict a recently updated interior, notably the kitchen and bathroom areas which benefit from a modern design and finish. The property’s layout appears functional and well-proportioned. Its proximity to Hatch End station provides easy access to London Overground services, and several highly-rated schools are within walking distance. The small but well-kept private garden adds a degree of outdoor space, making it appealing to families. While the provided data includes nearby property prices, it’s incomplete, making definitive value assessment challenging, especially the absence of the property’s accurate square footage and the nearby properties’ comparable details. A thorough survey and property appraisal are recommended to fully assess the property’s structural integrity and market value before final purchase.
Therefore, we give this property 6 / 10. *Disclaimer: This is our option and does constitute a recommendation or financial advice. Do your own research. *
- Price
- 7
- Condition
- 8
- Location
- 7
- Land
- 4
- Bedrooms
- 3
- Bathrooms
- 1
- Sqft (est)
- 1,067.00
The heatmap indicates the level of crime in the area. The color of the heatmap indicates the crime severity and recency.
Metrics Year-on-Year
- Average area value
- 1,310,000.00 £Increased by 70.76 %
- Est sale value
- 558,041.00 £Decreased by 6.27 %
- Average area rental value
- 2,509.00 £/moIncreased by 14.46 %
- Est letting value
- 1,067.00 £/moUnchanged by 0.00 %
- Est rental Yield
- 2.30 %Decreased by 32.94 %
- Crime Rate
- 22.00 %Unchanged by 0.00 %
Agent Activity
Andrew Pearce created the listing.
Nearby Schools
| Name | Type | Ofsted | Distance |
|---|---|---|---|
| Grimsdyke School | Community School | Outstanding | 0.57 KM |
| Hatch End High School | Academy Converter | Good | 1.83 KM |
| Woodhall Primary School | Community School | Requires improvement | 1.83 KM |
| Shaftesbury High School | Community Special School | Outstanding | 1.90 KM |
| St Teresa'S Catholic Primary School And Nursery | Voluntary Aided School | Good | 1.98 KM |
Images
Nearby Streets
| Name | Average Price | Average Sqft | Distance |
|---|---|---|---|
| Seymour Close | £ 1,422,500 | 0 | 0.00 KM |
| Wessex Drive | £ 0 | 0 | 0.00 KM |
| Old Hall Drive | £ 1,575,000 | 0 | 0.00 KM |
| Pinewood Avenue | £ 800,000 | 0 | 0.00 KM |
| Beechengrove | £ 1,475,000 | 0 | 0.00 KM |
Nearby Transport
| Name | NLC | TLC | Distance |
|---|---|---|---|
| Hatch End | 1398 | HTE | 0.43 KM |
| Headstone Lane | 1434 | HDL | 1.82 KM |
| Carpenders Park | 1442 | CPK | 2.64 KM |
| Bushey | 1395 | BSH | 4.35 KM |
| Harrow And Wealdstone | 1397 | HRW | 4.58 KM |
Nearby Listings
| Address | Price | Type | Score | Distance |
|---|---|---|---|---|
| Oakdene Close, Pinner | £ 700,000 | BUY | 6 / 10 | 0.00 KM |
| Oakdene Close, Hatch End | £ 279,950 | BUY | 4 / 10 | 0.01 KM |
| Oakdene Close, Hatch End | £ 275,000 | BUY | 6 / 10 | 0.02 KM |
| Oakdene Close, Pinner | £ 675,000 | BUY | 7 / 10 | 0.03 KM |
| Oakdene Close, Hatch End, Middlesex | £ 425,000 | BUY | Unknown | 0.04 KM |
Nearby Properties
| Address | Price | Distance |
|---|---|---|
| 40 Oakdene Close | £ 156,000 | 0.00 KM |
| 37 Oakdene Close | £ 500,000 | 0.00 KM |
| 46 Oakdene Close | £ 205,000 | 0.00 KM |
| 19 Oakdene Close | £ 72,500 | 0.00 KM |
| 29 Oakdene Close | £ 362,000 | 0.00 KM |