Eastmead, Woking, Surrey, GU21
By Seymours Estate Agents
£ 375,000
Reviews
3 out of 5 stars
Seymours Estate Agents says ..
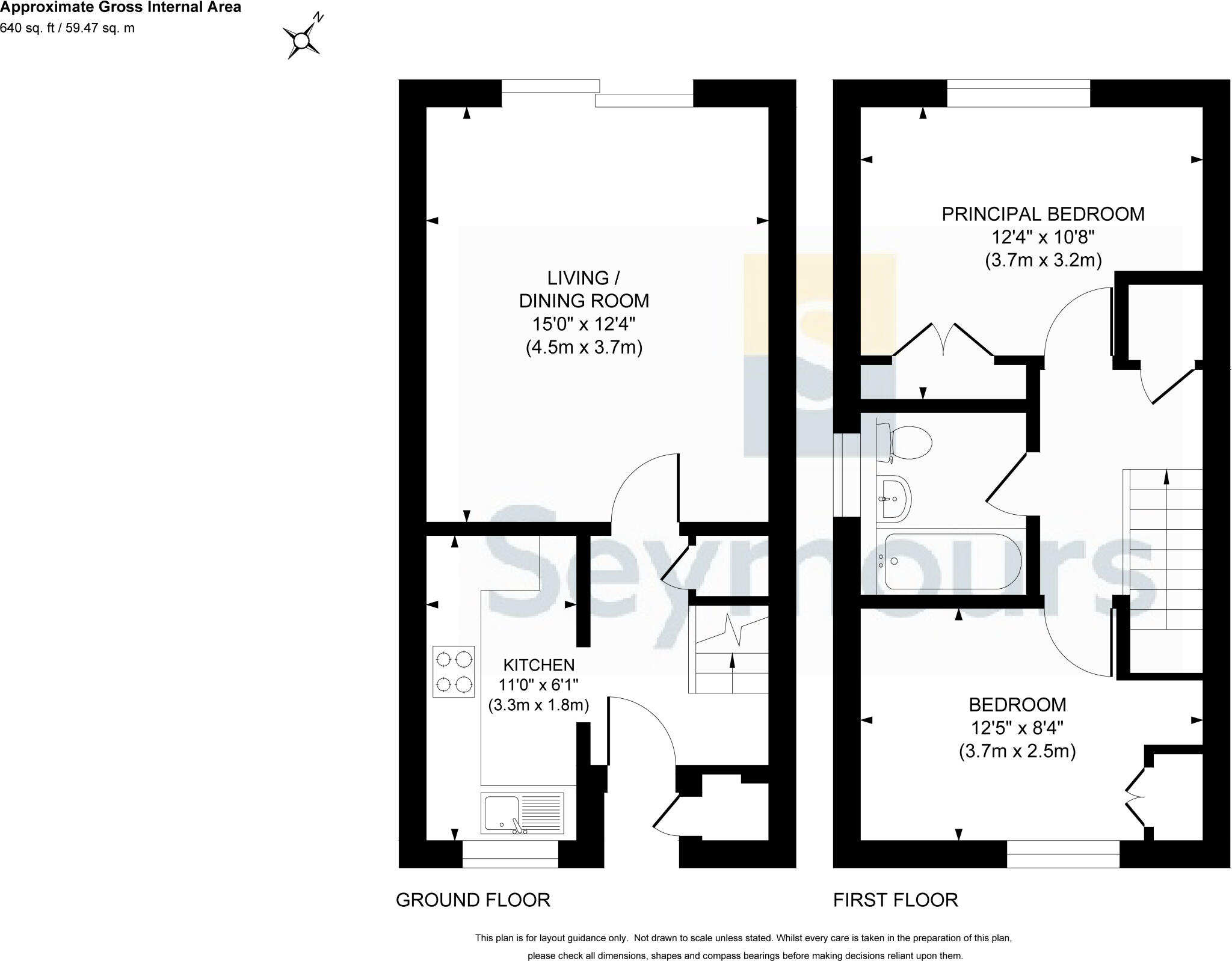
Beautifully renovated end-of-terrace home with spacious corner plot garden Fully renovated throughout, this stylish modern end-of-terrace house offers a perfect blend of contemporary living and a peaceful setting. The property features two well-proportioned bedrooms, a spacious recepti...
Property Oracle says ..
This is a two-bedroom end-of-terrace property located in Goldsworth Park, Woking. The property is in good condition, with a modern kitchen and bathroom. It also benefits from a good-sized garden. The property is conveniently located close to schools and transportation links. The asking price is £375,000, which is slightly above the average for similar properties in the area. Overall, this property would make a good home for a small family or couple. The modern interior and garden are particularly attractive features. The proximity to local amenities adds to the appeal.
Therefore, we give this property 7 / 10. *Disclaimer: This is our option and does constitute a recommendation or financial advice. Do your own research. *
- Price
- 7
- Condition
- 8
- Location
- 7
- Land
- 7
- Bedrooms
- 2
- Bathrooms
- 1
- Sqft (est)
- 488.00
The heatmap indicates the level of crime in the area. The color of the heatmap indicates the crime severity and recency.
Metrics Year-on-Year
- Average area value
- 350,000.00 £Decreased by 4.27 %
- Est sale value
- 342,088.00 £Increased by 53.39 %
- Average area rental value
- 2,283.00 £/moIncreased by 41.19 %
- Est letting value
- 1,952.00 £/moIncreased by 100.00 %
- Est rental Yield
- 7.83 %Increased by 47.46 %
- Crime Rate
- 12.00 %Unchanged by 0.00 %
Agent Activity
Seymours Estate Agents created the listing.
Nearby Schools
| Name | Type | Ofsted | Distance |
|---|---|---|---|
| Sythwood Sure Start Children'S Centre | Children's Centre | 0.62 KM | |
| Sythwood Primary School | Academy Converter | Good | 0.63 KM |
| Goldsworth Primary School | Academy Converter | 0.76 KM | |
| Horsell Cofe Aided Junior School | Voluntary Aided School | Good | 1.13 KM |
| The Horsell Village School | Academy Converter | 1.26 KM |
Images
Nearby Streets
| Name | Average Price | Average Sqft | Distance |
|---|---|---|---|
| Eastmead Connector | £ 0 | 0 | 0.00 KM |
| Parley Drive | £ 0 | 0 | 0.00 KM |
| Julian Close | £ 0 | 0 | 0.00 KM |
| Langdale Close | £ 699,950 | 0 | 0.00 KM |
| Russell Close | £ 535,000 | 0 | 0.00 KM |
Nearby Transport
| Name | NLC | TLC | Distance |
|---|---|---|---|
| Woking | 5685 | WOK | 2.77 KM |
| Worplesdon | 5686 | WPL | 3.22 KM |
| Brookwood | 5687 | BKO | 6.14 KM |
| Longcross | 5674 | LNG | 7.61 KM |
| West Byfleet | 5684 | WBY | 8.79 KM |
Nearby Listings
| Address | Price | Type | Score | Distance |
|---|---|---|---|---|
| Eastmead, Woking, Surrey, GU21 | £ 375,000 | BUY | 7 / 10 | 0.00 KM |
| Eastmead, Woking, Surrey, GU21 | £ 360,000 | BUY | 7 / 10 | 0.00 KM |
| Eastmead, Woking, Surrey, GU21 | £ 350,000 | BUY | 7 / 10 | 0.00 KM |
| Eastmead, Woking, Surrey, GU21 | £ 475,000 | BUY | 5 / 10 | 0.06 KM |
| Marston Road, Woking, GU21 | £ 400,000 | BUY | 7 / 10 | 0.08 KM |
Nearby Properties
| Address | Price | Distance |
|---|---|---|
| 52 Eastmead | £ 325,500 | 0.01 KM |
| 17 Eastmead | £ 422,500 | 0.01 KM |
| 57 Eastmead | £ 235,000 | 0.01 KM |
| 5 Eastmead | £ 465,000 | 0.01 KM |
| 35 Eastmead | £ 322,500 | 0.01 KM |