Greystoke Gardens, Enfield, Middlesex, EN2
By Ian Gibbs
£ 895,000
Reviews
3 out of 5 stars
Ian Gibbs says ..
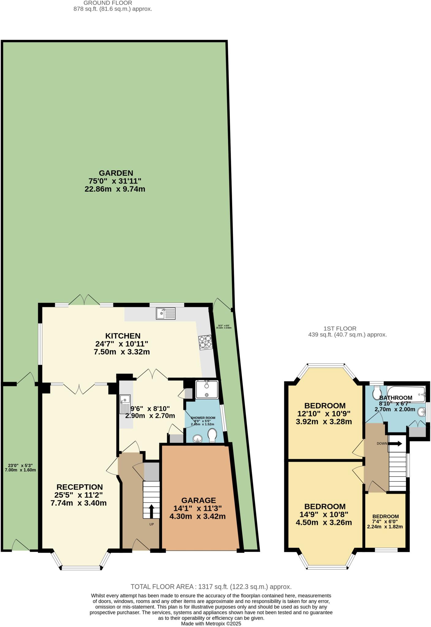
This imposing 3 bedroom detached house has a substantial full width rear extension and we understand the garage foundations were built with a first floor extension in mind. There is a large rear garden and Oakwood Tube station and excellent local shops are just 0.5 miles away. Sold chain free.
Property Oracle says ..
This is a detached property located in Greystoke Gardens, Highlands, Enfield. The property offers three bedrooms and two bathrooms, with a total living space of 1,317 sqft and a plot size of 3,000 sqft. The property includes a garage. While the property is in a good location with access to nearby schools and transportation, it requires some modernisation and the garden needs landscaping. The asking price of £895,000 is slightly above the average for the area, considering the condition of the property.
Therefore, we give this property 6 / 10. *Disclaimer: This is our option and does constitute a recommendation or financial advice. Do your own research. *
- Price
- 6
- Condition
- 5
- Location
- 7
- Land
- 6
- Bedrooms
- 3
- Bathrooms
- 2
- Sqft (est)
- 1,317.00
- Lot (est)
- 3,000.00
The heatmap indicates the level of crime in the area. The color of the heatmap indicates the crime severity and recency.
Metrics Year-on-Year
- Average area value
- 780,333.00 £Increased by 28.74 %
- Est sale value
- 875,805.00 £Increased by 31.68 %
- Average area rental value
- 2,100.00 £/moIncreased by 7.91 %
- Est letting value
- 1,317.00 £/moUnchanged by 0.00 %
- Est rental Yield
- 3.23 %Decreased by 16.10 %
- Crime Rate
- 5.00 %Unchanged by 0.00 %
Agent Activity
Ian Gibbs created the listing.
Nearby Schools
| Name | Type | Ofsted | Distance |
|---|---|---|---|
| Eversley Primary School | Community School | Outstanding | 1.21 KM |
| Wolfson Hillel Primary School | Academy Converter | 1.29 KM | |
| Merryhills Primary School | Community School | Good | 1.43 KM |
| West Grove Primary | Community School | Good | 1.48 KM |
| Middlesex University | Higher Education Institutions | 1.60 KM |
Images
Nearby Streets
| Name | Average Price | Average Sqft | Distance |
|---|---|---|---|
| Lake Side | £ 0 | 0 | 0.00 KM |
| Tarn Bank | £ 785,000 | 0 | 0.00 KM |
| Avenue Close | £ 0 | 0 | 0.00 KM |
| Malcolms Way | £ 0 | 0 | 0.00 KM |
| Chase Bank Court | £ 400,000 | 0 | 0.00 KM |
Nearby Transport
| Name | NLC | TLC | Distance |
|---|---|---|---|
| Grange Park | 6029 | GPK | 2.94 KM |
| Winchmore Hill | 6024 | WIH | 3.00 KM |
| Gordon Hill | 6028 | GDH | 3.48 KM |
| Enfield Chase | 6010 | ENC | 3.59 KM |
| Palmers Green | 6021 | PAL | 3.76 KM |
Nearby Listings
| Address | Price | Type | Score | Distance |
|---|---|---|---|---|
| Greystoke Gardens, Enfield, Middlesex, EN2 | £ 895,000 | BUY | 6 / 10 | 0.00 KM |
| Greystoke Gardens, Enfield | £ 750,000 | BUY | 5 / 10 | 0.04 KM |
| Greystoke Gardens, Enfield | £ 760,000 | BUY | 5 / 10 | 0.07 KM |
| Greystoke Gardens, Enfield | £ 875,000 | BUY | 7 / 10 | 0.08 KM |
| Greystoke Gardens, Enfield | £ 850,000 | BUY | 7 / 10 | 0.09 KM |
Nearby Properties
| Address | Price | Distance |
|---|---|---|
| 17 Greystoke Gardens | £ 730,000 | 0.07 KM |
| 3 Greystoke Gardens | £ 385,000 | 0.07 KM |
| 11 Greystoke Gardens | £ 380,000 | 0.07 KM |
| 5 - 7 Greystoke Gardens | £ 125,000 | 0.07 KM |
| 38 Merryhills Drive | £ 725,000 | 0.08 KM |