Holden Mill, Blackburn Road, Bolton
By Redpath Leach Estate Agents
£ 140,000
Reviews
2 out of 5 stars
Redpath Leach Estate Agents says ..
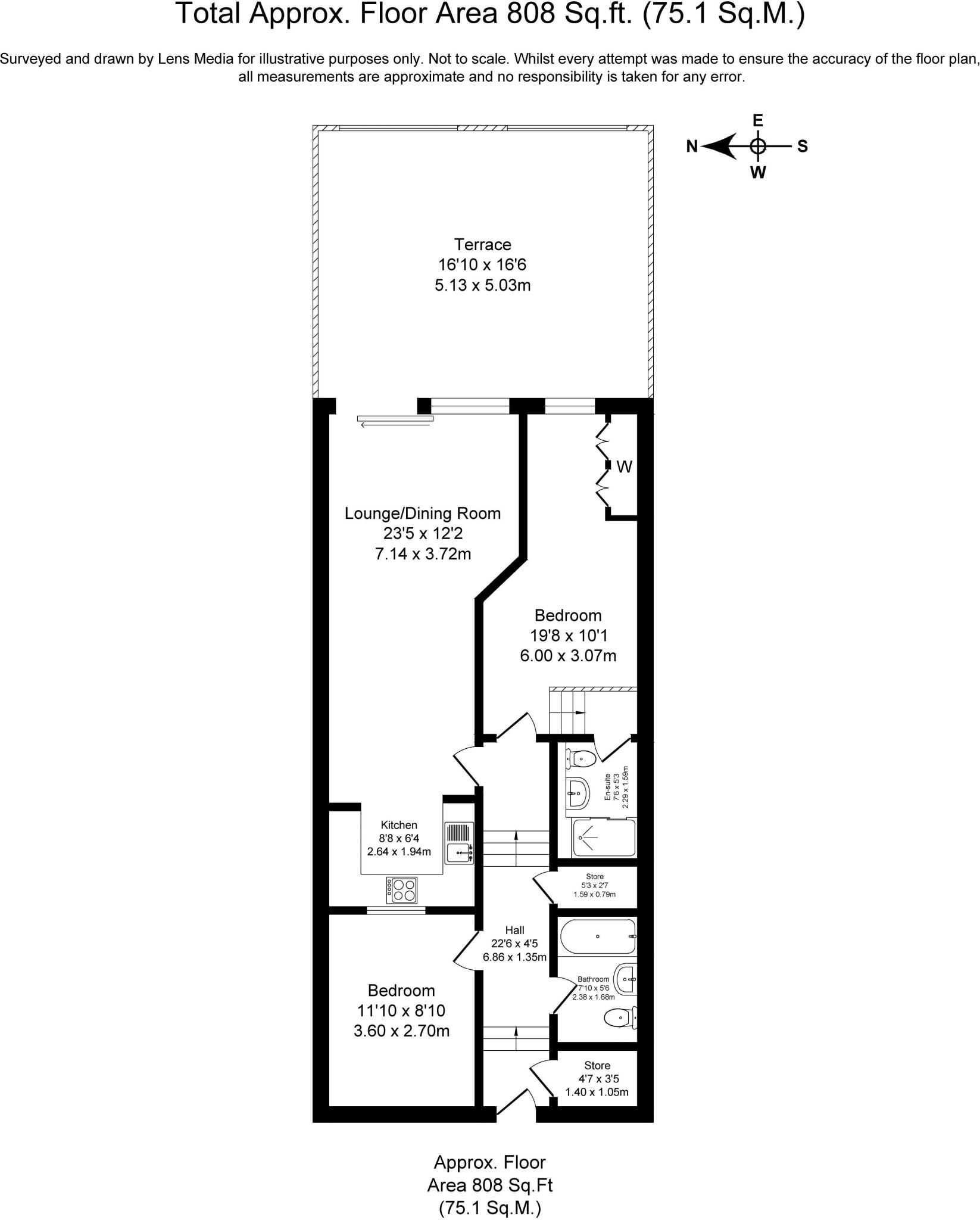
Exuding character and style in equal measure, this generously proportioned two bed, fifth floor apartment simply must be viewed to appreciate not only its impressive levels of space, but also the thoughtful design, both of the property, but more generally, the development itself, forming part of ...
Property Oracle says ..
This two-bedroom, two-bathroom apartment located at Holden Mill, Blackburn Road, Bolton, presents a compelling option for buyers. The apartment itself is presented in good condition, benefiting from a modern aesthetic and what appears to be a recently updated kitchen and bathrooms. The open-plan living space offers a contemporary feel, while the bedrooms provide comfortable accommodation.
The location in Astley Bridge provides access to highly-rated primary schools and relatively convenient transport links to Bolton and other areas. The presence of nearby train stations enhances the appeal for commuters. However, it’s worth noting that the property is an apartment with no private outdoor space, a factor to consider for prospective buyers who value private gardens.
While a precise per-sqft price comparison is hampered by incomplete data on similar properties, the asking price appears relatively competitive given the location, condition, and amenities. Potential buyers should conduct thorough research into local market trends to ensure they are satisfied with the property’s value before making a purchase decision. The development itself has a modern lobby and well-maintained common areas, suggesting a well-managed building.
Therefore, we give this property 5 / 10. *Disclaimer: This is our option and does constitute a recommendation or financial advice. Do your own research. *
- Price
- 7
- Condition
- 7
- Location
- 7
- Land
- 1
- Bedrooms
- 2
- Bathrooms
- 2
- Sqft (est)
- 808.00
The heatmap indicates the level of crime in the area. The color of the heatmap indicates the crime severity and recency.
Metrics Year-on-Year
- Average area value
- 210,714.00 £Decreased by 13.37 %
- Est sale value
- 159,984.00 £Increased by 8.20 %
- Average area rental value
- 907.00 £/moDecreased by 9.21 %
- Est letting value
- 0.00 £/mo
- Est rental Yield
- 5.17 %Increased by 4.87 %
- Crime Rate
- 0.00 %
Agent Activity
Redpath Leach Estate Agents marked this listing as sold.
Redpath Leach Estate Agents created the listing.
Nearby Schools
| Name | Type | Ofsted | Distance |
|---|---|---|---|
| High Lawn Primary School | Community School | Good | 0.45 KM |
| Holy Infant And St Anthony Rc Primary School | Voluntary Aided School | Good | 0.67 KM |
| St Paul'S Cofe Primary School, Astley Bridge | Academy Converter | Outstanding | 0.73 KM |
| The Oaks Primary School | Community School | Outstanding | 0.74 KM |
| Oldhams Start Well Link Site | Children's Centre Linked Site | 0.74 KM |
Images
Nearby Streets
| Name | Average Price | Average Sqft | Distance |
|---|---|---|---|
| Back Howarden Street | £ 160,167 | 0 | 0.00 KM |
| Durban Road | £ 0 | 0 | 0.00 KM |
| Back Rainshaw Street | £ 160,000 | 0 | 0.00 KM |
| Back Primrose Street | £ 0 | 0 | 0.00 KM |
| Back Ivy Bank Road | £ 0 | 0 | 0.00 KM |
Nearby Transport
| Name | NLC | TLC | Distance |
|---|---|---|---|
| Hall-I'-Th'-Wood | 2572 | HID | 2.22 KM |
| Bromley Cross (Lancs) | 2697 | BMC | 2.46 KM |
| Bolton | 2599 | BON | 3.55 KM |
| Entwistle | 2747 | ENT | 5.91 KM |
| Moses Gate | 2606 | MSS | 6.45 KM |
Nearby Listings
| Address | Price | Type | Score | Distance |
|---|---|---|---|---|
| Holden Mill, Blackburn Road, Bolton | £ 140,000 | BUY | 5 / 10 | 0.00 KM |
| Holden Mill, Blackburn Road, Bolton | £ 140,000 | BUY | 5 / 10 | 0.00 KM |
| Holden Mill, Blackburn Road, Bolton | £ 285,000 | BUY | 6 / 10 | 0.00 KM |
| Holden Mill, Blackburn Road, Bolton | £ 125,000 | BUY | 5 / 10 | 0.00 KM |
| Holden Mill, Blackburn Road, Bolton | £ 160,000 | BUY | 7 / 10 | 0.00 KM |
Nearby Properties
| Address | Price | Distance |
|---|---|---|
| 5 Hesketh Avenue | £ 142,500 | 0.09 KM |
| 751 Blackburn Road | £ 217,500 | 0.13 KM |
| 753 Blackburn Road | £ 180,000 | 0.13 KM |
| 4 Ringley Grove | £ 185,000 | 0.15 KM |
| 1 Ringley Grove | £ 265,000 | 0.15 KM |