WI
Princess Cottages, Westow Hill, London, SE19
By Winkworth
£ 815,000
Reviews
3 out of 5 stars
Winkworth says ..
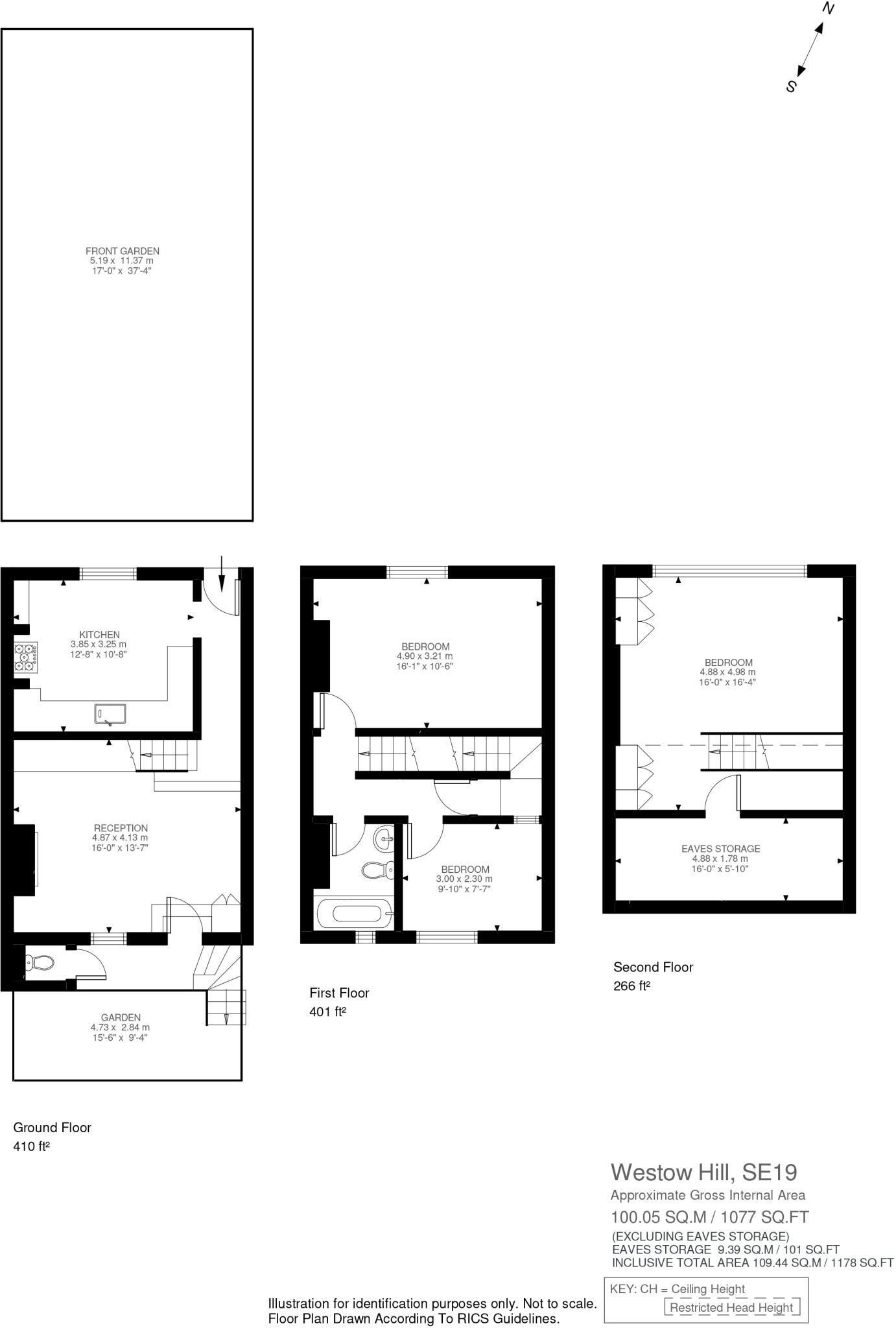
Tucked away, just off Westow Hill, on the bustling Crystal Palace Triangle is this Victorian cottage. Boasting unrivalled views of London’s skyline, a charming private garden and three good-sized bedrooms, this is a real hidden gem, close to an array of local amenities and excellent transpo...
Property Oracle says ..
Therefore, we give this property 6 / 10. *Disclaimer: This is our option and does constitute a recommendation or financial advice. Do your own research. *
- Price
- 4
- Condition
- 8
- Location
- 8
- Land
- 7
- Bedrooms
- 3
- Bathrooms
- 1
- Sqft (est)
- 1,076.93
- Lot (est)
- 635.82
The heatmap indicates the level of crime in the area. The color of the heatmap indicates the crime severity and recency.
Metrics Year-on-Year
- Average area value
- 455,829.00 £Decreased by 18.48 %
- Est sale value
- 536,311.14 £Decreased by 36.07 %
- Average area rental value
- 2,118.00 £/moDecreased by 3.99 %
- Est letting value
- 2,153.86 £/moDecreased by 33.33 %
- Est rental Yield
- 5.58 %Increased by 17.97 %
- Crime Rate
- 15.00 %Unchanged by 0.00 %
from 559,161.00 £
from 838,928.47 £
from 2,206.00 £/mo
from 3,230.79 £/mo
from 4.73 %
from 15.00 %
Agent Activity
Winkworth created the listing.
Nearby Schools
| Name | Type | Ofsted | Distance |
|---|---|---|---|
| Paxton Primary School | Community School | Outstanding | 0.24 KM |
| Rockmount Primary School | Community School | Outstanding | 0.81 KM |
| Hillcrest | Miscellaneous | 0.88 KM | |
| All Saints Cofe Primary School | Voluntary Aided School | Good | 1.00 KM |
| Harris City Academy Crystal Palace | Academy Sponsor Led | Outstanding | 1.14 KM |
Images
Nearby Streets
| Name | Average Price | Average Sqft | Distance |
|---|---|---|---|
| Woodland Road | £ 497,857 | 0 | 0.00 KM |
| Forbes Court | £ 0 | 0 | 0.00 KM |
| Crystal Palace Parade | £ 650,000 | 0 | 0.00 KM |
| Bowley Close | £ 0 | 0 | 0.00 KM |
| Tudor Road | £ 0 | 0 | 0.00 KM |
Nearby Transport
| Name | NLC | TLC | Distance |
|---|---|---|---|
| Gipsy Hill | 5363 | GIP | 0.49 KM |
| Crystal Palace | 5356 | CYP | 1.12 KM |
| Sydenham Hill | 5085 | SYH | 1.41 KM |
| Anerley | 5397 | ANZ | 2.05 KM |
| Penge West | 5378 | PNW | 2.42 KM |
Nearby Listings
| Address | Price | Type | Score | Distance |
|---|---|---|---|---|
| Princess Cottages, Westow Hill, London, SE19 | £ 815,000 | BUY | 6 / 10 | 0.00 KM |
| Coopers Yard, Crystal Palace, London, SE19 | £ 425,000 | BUY | 7 / 10 | 0.03 KM |
| Cooper's Yard, London, SE19 | £ 550,000 | BUY | 5 / 10 | 0.03 KM |
| Coopers Yard, Crystal Palace, London, SE19 | £ 550,000 | BUY | Unknown | 0.04 KM |
| Camden Hill Road, London, SE19 | £ 615,000 | BUY | Unknown | 0.04 KM |
Nearby Properties
| Address | Price | Distance |
|---|---|---|
| 1a Westow Hill | £ 500,000 | 0.06 KM |
| 20 Camden Hill Road | £ 55,000 | 0.08 KM |
| 8a Camden Hill Road | £ 585,000 | 0.08 KM |
| 8c Camden Hill Road | £ 164,995 | 0.08 KM |
| 26a Camden Hill Road | £ 600,000 | 0.08 KM |