GI
Cornwall Court, 11 Cornwall Road, Pinner
By Gibbs Gillespie
£ 395,000
Reviews
3 out of 5 stars
Gibbs Gillespie says ..
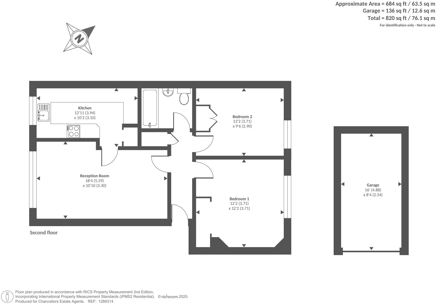
Offered with a share of freehold and a 999-year lease from 25th December 2025, this well-presented two double bedroom ground floor apartment is an excellent opportunity for first-time buyers, downsizers, or investors. The property features spacious accommodation throughout, gas centra...
Property Oracle says ..
Therefore, we give this property 6 / 10. *Disclaimer: This is our option and does constitute a recommendation or financial advice. Do your own research. *
- Price
- 8
- Condition
- 7
- Location
- 8
- Land
- 3
- Bedrooms
- 2
- Bathrooms
- 1
- Sqft (est)
- 864.00
The heatmap indicates the level of crime in the area. The color of the heatmap indicates the crime severity and recency.
Metrics Year-on-Year
- Average area value
- 1,310,000.00 £Increased by 70.76 %
- Est sale value
- 451,872.00 £Decreased by 6.27 %
- Average area rental value
- 2,509.00 £/moIncreased by 14.46 %
- Est letting value
- 864.00 £/moUnchanged by 0.00 %
- Est rental Yield
- 2.30 %Decreased by 32.94 %
- Crime Rate
- 18.00 %Unchanged by 0.00 %
from 767,161.00 £
from 482,112.00 £
from 2,192.00 £/mo
from 864.00 £/mo
from 3.43 %
from 18.00 %
Agent Activity
Gibbs Gillespie marked this listing as sold.
Gibbs Gillespie created the listing.
Nearby Schools
| Name | Type | Ofsted | Distance |
|---|---|---|---|
| Grimsdyke School | Community School | Outstanding | 0.71 KM |
| Hatch End High School | Academy Converter | Good | 1.80 KM |
| Shaftesbury High School | Community Special School | Outstanding | 1.87 KM |
| Pinner Park Primary School | Community School | Outstanding | 1.90 KM |
| Reddiford School | Other Independent School | 1.93 KM |
Images
Nearby Streets
| Name | Average Price | Average Sqft | Distance |
|---|---|---|---|
| Seymour Close | £ 1,422,500 | 0 | 0.00 KM |
| Wessex Drive | £ 0 | 0 | 0.00 KM |
| Old Hall Drive | £ 1,575,000 | 0 | 0.00 KM |
| Beechengrove | £ 1,475,000 | 0 | 0.00 KM |
| Cherry Court | £ 230,000 | 0 | 0.00 KM |
Nearby Transport
| Name | NLC | TLC | Distance |
|---|---|---|---|
| Hatch End | 1398 | HTE | 0.50 KM |
| Headstone Lane | 1434 | HDL | 1.75 KM |
| Carpenders Park | 1442 | CPK | 2.80 KM |
| Harrow And Wealdstone | 1397 | HRW | 4.50 KM |
| Bushey | 1395 | BSH | 4.54 KM |
Nearby Listings
| Address | Price | Type | Score | Distance |
|---|---|---|---|---|
| Cornwall Court, 11 Cornwall Road, Pinner | £ 395,000 | BUY | 6 / 10 | 0.00 KM |
| Phoenix Court, Tilbury Close, Pinner | £ 230,000 | BUY | 5 / 10 | 0.06 KM |
| Helston Close, Pinner, Middlesex | £ 400,000 | BUY | Unknown | 0.10 KM |
| Park View, Hatch End, Pinner HA5 | £ 1,100,000 | BUY | 7 / 10 | 0.14 KM |
| Anselm Road, Pinner, Middlesex | £ 1,650,000 | BUY | 8 / 10 | 0.16 KM |
Nearby Properties
| Address | Price | Distance |
|---|---|---|
| 369b Uxbridge Road | £ 263,000 | 0.12 KM |
| 357 Uxbridge Road | £ 169,000 | 0.12 KM |
| 12 Devonshire Road | £ 600,000 | 0.12 KM |
| 16 Park View | £ 570,000 | 0.13 KM |
| 58 Park View | £ 827,500 | 0.13 KM |