EweMove says ..
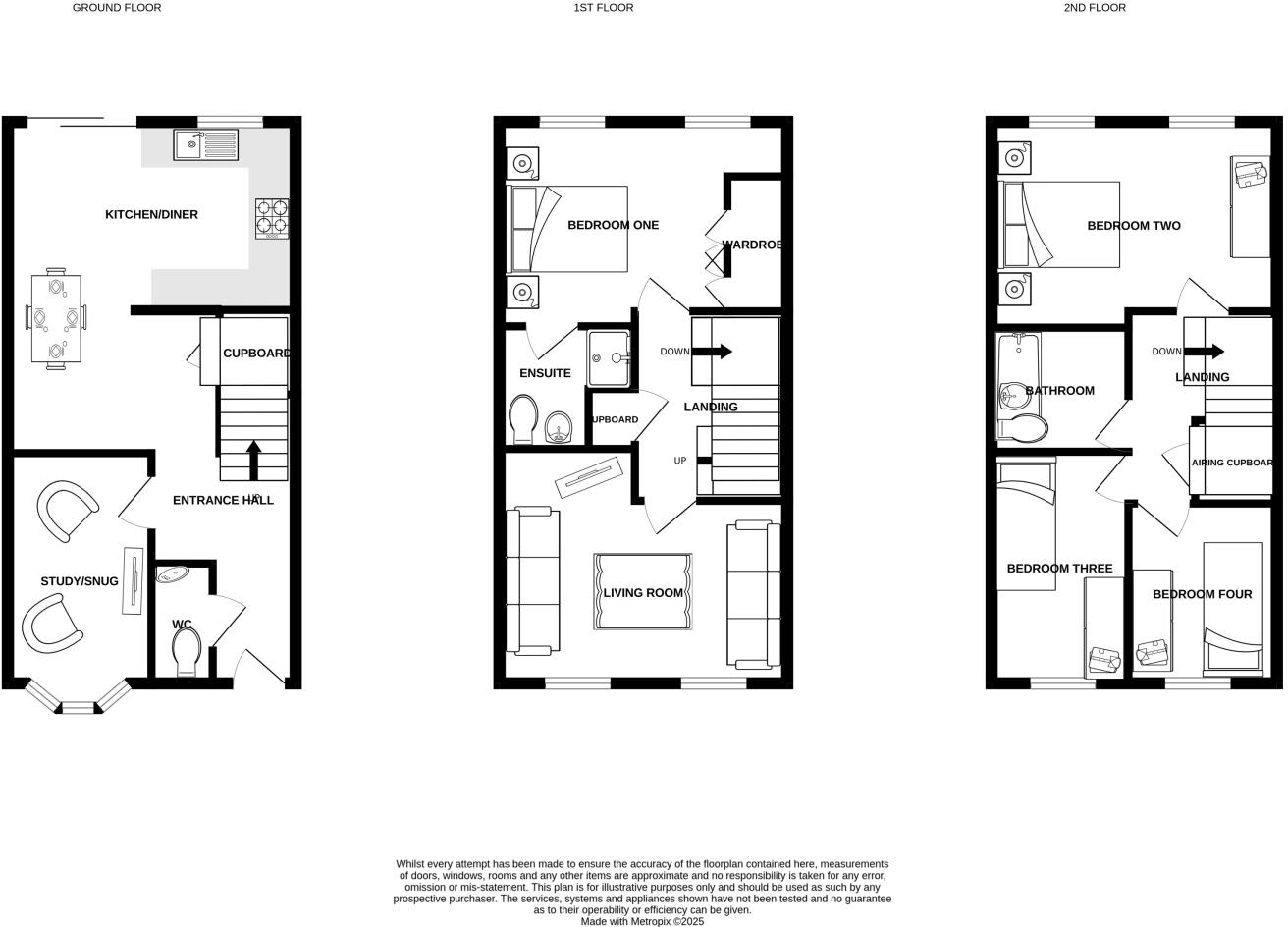
A brilliant, deceptively large 4 bedroom, 3 storey town house, conveniently located and well looked after throughout, with garage and parking.
Property Oracle says ..
Therefore, we give this property 7 / 10. *Disclaimer: This is our option and does constitute a recommendation or financial advice. Do your own research. *
- Price
- 6
- Condition
- 8
- Location
- 7
- Land
- 7
- Bedrooms
- 4
- Bathrooms
- 2
- Sqft (est)
- 412.00
The heatmap indicates the level of crime in the area. The color of the heatmap indicates the crime severity and recency.
Metrics Year-on-Year
- Average area value
- 317,492.00 £Decreased by 9.44 %
- Est sale value
- 97,232.00 £Decreased by 15.71 %
- Average area rental value
- 1,550.00 £/moIncreased by 15.07 %
- Est letting value
- 412.00 £/moUnchanged by 0.00 %
- Est rental Yield
- 5.86 %Increased by 27.11 %
- Crime Rate
- 6.00 %Unchanged by 0.00 %
from 350,605.00 £
from 115,360.00 £
from 1,347.00 £/mo
from 412.00 £/mo
from 4.61 %
from 6.00 %
Agent Activity
EweMove created the listing.
Nearby Schools
| Name | Type | Ofsted | Distance |
|---|---|---|---|
| Somerset Bridge Primary School | Community School | Good | 0.14 KM |
| Polden Bower School | Foundation Special School | Good | 1.18 KM |
| Sedgemoor South | Children's Centre | 1.21 KM | |
| Hamp Nursery And Infants' School | Community School | Good | 1.23 KM |
| Robert Blake Science College | Foundation School | Requires improvement | 1.25 KM |
Images
Nearby Streets
| Name | Average Price | Average Sqft | Distance |
|---|---|---|---|
| King George Avenue | £ 0 | 0 | 0.00 KM |
| Turner Close | £ 0 | 0 | 0.00 KM |
| Suffolk Close | £ 0 | 0 | 0.00 KM |
| Beechwood | £ 0 | 0 | 0.00 KM |
| The Green | £ 152,500 | 0 | 0.00 KM |
Nearby Transport
| Name | NLC | TLC | Distance |
|---|---|---|---|
| Bridgwater | 3449 | BWT | 1.86 KM |
Nearby Listings
| Address | Price | Type | Score | Distance |
|---|---|---|---|---|
| 6 Stockmoor Drive, Bridgwater | £ 260,000 | BUY | 7 / 10 | 0.00 KM |
| 2 Stockmoor Drive, Bridgwater | £ 425,000 | BUY | 7 / 10 | 0.03 KM |
| Stockmoor Drive, Bridgwater | £ 375,000 | BUY | 7 / 10 | 0.13 KM |
| Simmental Street, Bridgwater | £ 289,950 | BUY | 6 / 10 | 0.14 KM |
| Tori Green, Bridgwater | £ 280,000 | BUY | 6 / 10 | 0.16 KM |
Nearby Properties
| Address | Price | Distance |
|---|---|---|
| 2 Dexter Walk | £ 260,000 | 0.07 KM |
| 20 Stockmoor Drive | £ 200,500 | 0.11 KM |
| 3 Simmental Street | £ 172,500 | 0.14 KM |
| 12 Simmental Street | £ 204,995 | 0.14 KM |
| 1 Simmental Street | £ 195,000 | 0.14 KM |