St. John Street, Whithorn, DG8
SO

St. John Street, Whithorn, DG8

By South West Property Centre

£ 185,000

Reviews

3 out of 5 stars

South West Property Centre says ..

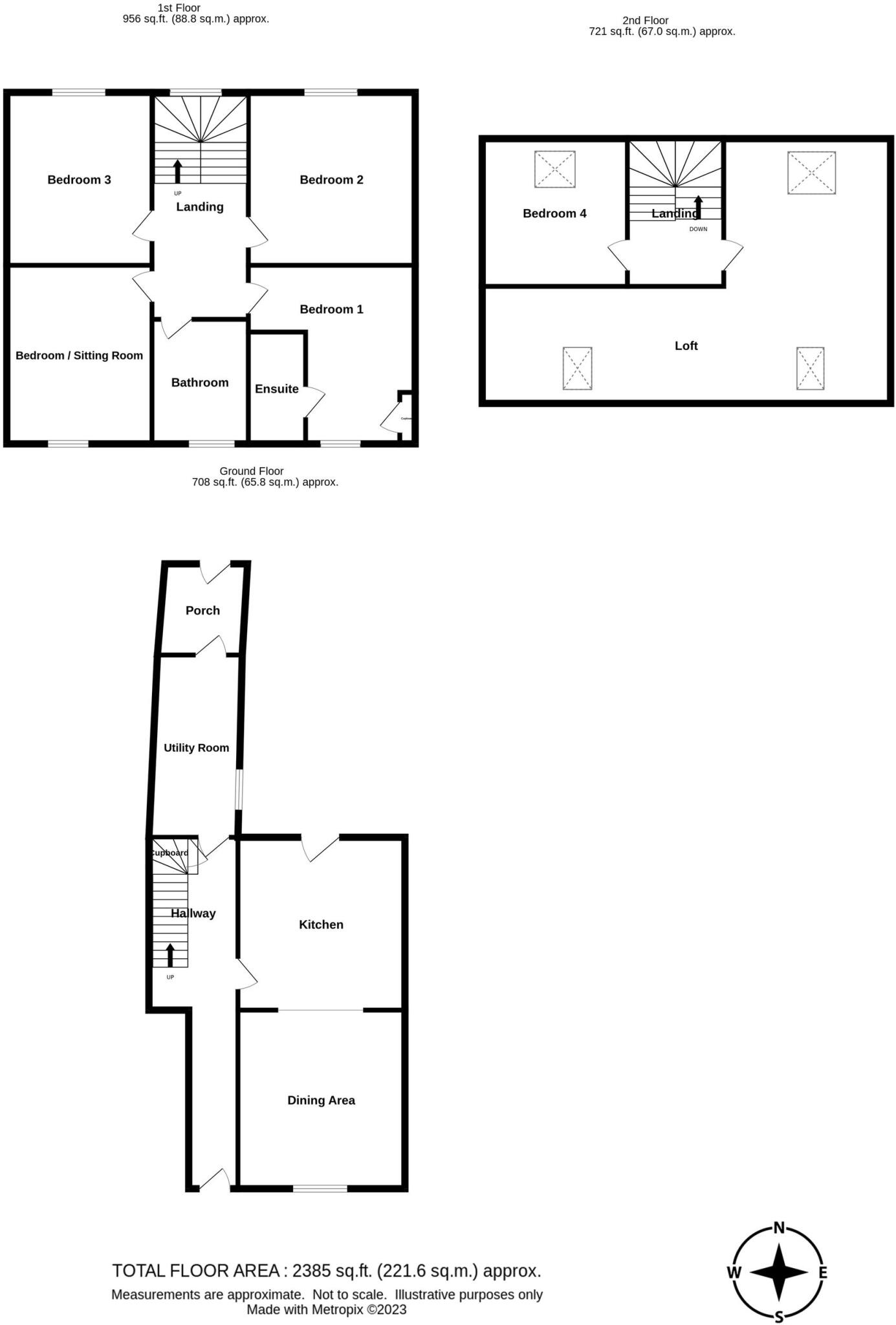
Spacious townhouse in historic Whithorn village, with 4/5 beds, garden, garage. Ideal family home with easy access to outdoor pursuits.

Property Oracle says ..

This property is a 4-bedroom, 2-bathroom house located in Whithorn, Dumfries and Galloway. Based on the provided images, the property appears to be in good condition, with a recently updated kitchen and bathrooms. There is a small garden to the rear of the property, and while the loft is unfinished, it offers potential for additional living space. The location in Whithorn offers proximity to local amenities, although specific details on schools and transportation are not provided. The list price of £185,000 should be considered in relation to comparable properties in the area and the average price per square foot, which is unfortunately not available in the provided data. Additional information on local schools, transportation, and comparable property pricing would be beneficial for a more comprehensive analysis.

Therefore, we give this property 7 / 10. *Disclaimer: This is our option and does constitute a recommendation or financial advice. Do your own research. *

Price
7
Condition
8
Location
7
Land
6
Bedrooms
4
Bathrooms
2
Sqft (est)
2,050.00
Lot (est)
2,385.00

The heatmap indicates the level of crime in the area. The color of the heatmap indicates the crime severity and recency.

Metrics Year-on-Year

Average area value
507,692.00 £
Decreased by 14.14 %
from 591,271.00 £
Est sale value
1,107,000.00 £
Increased by 25.58 %
from 881,500.00 £
Average area rental value
1,925.00 £/mo
Decreased by 6.28 %
from 2,054.00 £/mo
Est letting value
4,100.00 £/mo
Increased by 100.00 %
from 2,050.00 £/mo
Est rental Yield
4.55 %
Increased by 9.11 %
from 4.17 %
Crime Rate
0.00 %
from 0.00 %

Agent Activity

  • South West Property Centre created the listing.

Images

Hallway Kitchen Kitchen Kitchen Kitchen Utility Room Utility Room Dining Area Dining Area Landing Landing Lounge / Bedroom Bedroom 1 Bedroom 2 Bedroom 2 Bedroom 3 En-Suite En-Suite Bathroom Bathroom Loft

Nearby Streets

NameAverage PriceAverage SqftDistance
The Park £ 000.00 KM
King's Road £ 000.00 KM

Nearby Listings

AddressPriceTypeScoreDistance
St. John Street, Whithorn, DG8 £ 185,000BUY7 / 100.00 KM
Priory Croft, 3 John Street, Whithorn £ 280,000BUYUnknown0.09 KM
33 St John’s Street, Whithorn, Newton Stewart, DG8 8PD £ 90,000BUY3 / 100.10 KM
George Street, Whithorn, DG8 £ 185,000BUY6 / 100.12 KM
George Street, Whithorn, DG8 £ 180,000BUY6 / 100.15 KM