Church Lane, Crouch End N8
By David Astburys Ltd
£ 400,000
Reviews
2 out of 5 stars
David Astburys Ltd says ..
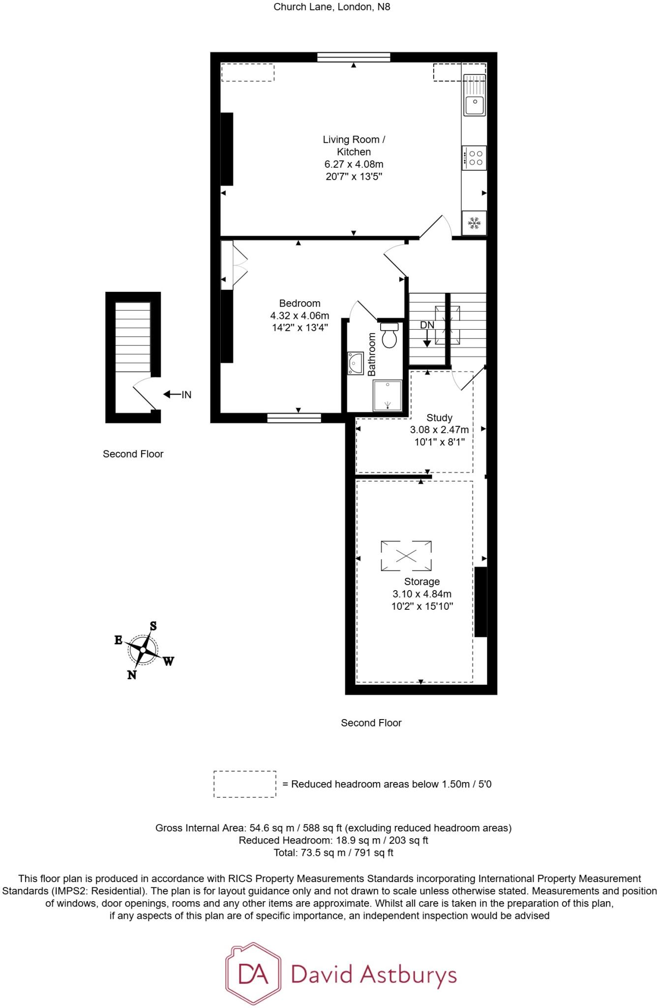
2nd Floor (Top) | 791 Square Feet | Share of Freehold | Open Plan Kitchen & Reception | 203 Square Foot Storage Room With Potential to Convert STPC | Chain free | Hornsey Station 0.2 Miles | Turnpike Lane Station 0.6 Miles
Property Oracle says ..
This one-bedroom apartment located on Church Lane in Crouch End, N8, offers a convenient and relatively affordable entry point into the London property market. The property’s interior presents a bright, well-maintained space with an open-plan living/kitchen area and a separate bedroom and bathroom. The provided photographs showcase a functional layout, though design elements are fairly basic and may not be considered luxurious.
The apartment’s strong selling point is undoubtedly its location within Crouch End. Its proximity to Hornsey station offers excellent transport links, and the neighbourhood itself boasts a vibrant atmosphere, plentiful amenities, and excellent schools, making it an attractive place to live. However, a significant drawback is the absence of any garden or meaningful outdoor space; a common feature in London properties but one that greatly reduces desirability for many. Further, the lack of comprehensive details on the size and features of the property hinders a full evaluation, notably a lack of information on the plot size and a missing price per square foot. Buyers looking for a functional home with strong commuting links in a desirable London location might find this property suitable. Potential buyers, however, should carefully consider the lack of outdoor space and might wish to obtain a full structural survey and clarify the details of the property’s freehold prior to purchase.
Therefore, we give this property 5 / 10. *Disclaimer: This is our option and does constitute a recommendation or financial advice. Do your own research. *
- Price
- 7
- Condition
- 6
- Location
- 7
- Land
- 1
- Bedrooms
- 1
- Bathrooms
- 1
- Sqft (est)
- 791.15
The heatmap indicates the level of crime in the area. The color of the heatmap indicates the crime severity and recency.
Metrics Year-on-Year
- Average area value
- 755,385.00 £Decreased by 2.88 %
- Est sale value
- 740,516.40 £Increased by 2.07 %
- Average area rental value
- 2,071.00 £/moDecreased by 11.19 %
- Est letting value
- 1,582.30 £/moUnchanged by 0.00 %
- Est rental Yield
- 3.29 %Decreased by 8.61 %
- Crime Rate
- 5.00 %Unchanged by 0.00 %
Agent Activity
David Astburys Ltd marked this listing as sold.
David Astburys Ltd created the listing.
Nearby Schools
| Name | Type | Ofsted | Distance |
|---|---|---|---|
| St Mary'S Cofe Primary School | Voluntary Aided School | Good | 0.02 KM |
| Greig City Academy | Academy Sponsor Led | Good | 0.32 KM |
| Hornsey School For Girls | Community School | Good | 0.44 KM |
| Rokesly Junior School | Community School | Good | 0.57 KM |
| Rokesly Infant & Nursery School | Community School | Good | 0.57 KM |
Images
Nearby Streets
| Name | Average Price | Average Sqft | Distance |
|---|---|---|---|
| Hillfield Avenue | £ 585,000 | 0 | 0.00 KM |
| Cranford Way | £ 425,000 | 0 | 0.00 KM |
| Miles Road | £ 0 | 0 | 0.00 KM |
| New River Path | £ 640,000 | 0 | 0.00 KM |
| Wightman Road | £ 0 | 0 | 0.00 KM |
Nearby Transport
| Name | NLC | TLC | Distance |
|---|---|---|---|
| Hornsey | 6015 | HRN | 0.38 KM |
| Alexandra Palace | 6025 | AAP | 1.46 KM |
| Harringay | 6012 | HGY | 1.47 KM |
| Crouch Hill | 7406 | CRH | 1.63 KM |
| Harringay Green Lanes | 7401 | HRY | 2.13 KM |
Nearby Listings
| Address | Price | Type | Score | Distance |
|---|---|---|---|---|
| Church Lane, Crouch End N8 | £ 375,000 | BUY | 5 / 10 | 0.00 KM |
| Church Lane, Crouch End, London, N8 | £ 850,000 | BUY | Unknown | 0.02 KM |
| Tottenham Lane, Crouch End N8 | £ 475,000 | BUY | Unknown | 0.06 KM |
| Tottenham Lane, Crouch End N8 | £ 385,000 | BUY | 6 / 10 | 0.08 KM |
| Church Lane, London, N8 | £ 2,000,000 | BUY | 8 / 10 | 0.08 KM |
Nearby Properties
| Address | Price | Distance |
|---|---|---|
| 13c Church Lane | £ 160,000 | 0.01 KM |
| 13a Church Lane | £ 108,000 | 0.01 KM |
| 3 Church Lane | £ 310,000 | 0.01 KM |
| 17a Church Lane | £ 891,575 | 0.01 KM |
| 3b Church Lane | £ 450,000 | 0.01 KM |