MA
London Road, Northfleet, Gravesend, Kent, DA11
By Mann
£ 125,000
Reviews
3 out of 5 stars
Mann says ..
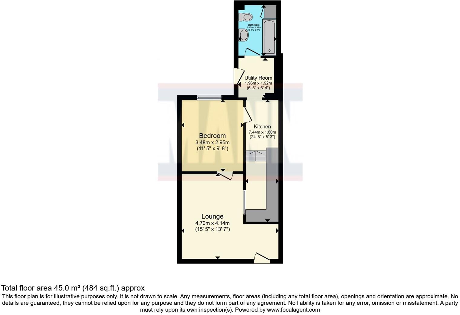
OIEO £125,000 What an amazing opportunity for first time buyers and investors alike to purchase this one double bedroomed basement flat. The property is well situated for all local transport links and amenities. The property itself comprises of private entrance, lounge/diner, kit...
Property Oracle says ..
Therefore, we give this property 6 / 10. *Disclaimer: This is our option and does constitute a recommendation or financial advice. Do your own research. *
- Price
- 9
- Condition
- 7
- Location
- 7
- Land
- 1
- Bedrooms
- 1
- Bathrooms
- 1
- Sqft (est)
- 484.38
The heatmap indicates the level of crime in the area. The color of the heatmap indicates the crime severity and recency.
Metrics Year-on-Year
- Average area value
- 420,333.00 £Increased by 19.71 %
- Est sale value
- 523,130.40 £Increased by 143.24 %
- Average area rental value
- 1,320.00 £/moDecreased by 3.51 %
- Est letting value
- 1,453.14 £/moIncreased by 200.00 %
- Est rental Yield
- 3.77 %Decreased by 19.44 %
- Crime Rate
- 11.00 %Unchanged by 0.00 %
from 351,115.00 £
from 215,064.72 £
from 1,368.00 £/mo
from 484.38 £/mo
from 4.68 %
from 11.00 %
Agent Activity
Mann created the listing.
Nearby Schools
| Name | Type | Ofsted | Distance |
|---|---|---|---|
| Northfleet Nursery School | Local Authority Nursery School | Outstanding | 0.63 KM |
| Copperfield Academy | Academy Sponsor Led | Good | 0.78 KM |
| Mayfield Grammar School, Gravesend | Academy Converter | Outstanding | 0.81 KM |
| Bronte School | Other Independent School | 0.94 KM | |
| Cecil Road Primary And Nursery School | Foundation School | Good | 1.01 KM |
Images
Nearby Streets
| Name | Average Price | Average Sqft | Distance |
|---|---|---|---|
| Berwick Square | £ 0 | 0 | 0.00 KM |
| Mottram Road | £ 0 | 0 | 0.00 KM |
| The Shore | £ 0 | 0 | 0.00 KM |
| Geneive Road | £ 436,000 | 0 | 0.00 KM |
| St Marks Road | £ 160,000 | 0 | 0.00 KM |
Nearby Transport
| Name | NLC | TLC | Distance |
|---|---|---|---|
| Gravesend | 5172 | GRV | 1.30 KM |
| Tilbury Town | 7462 | TIL | 2.22 KM |
| Northfleet | 5120 | NFL | 3.41 KM |
| Ebbsfleet International | 5566 | EBD | 3.76 KM |
| Swanscombe | 5156 | SWM | 5.07 KM |
Nearby Listings
| Address | Price | Type | Score | Distance |
|---|---|---|---|---|
| London Road, Northfleet, Gravesend, Kent, DA11 | £ 125,000 | BUY | 6 / 10 | 0.00 KM |
| Burch Road, Northfleet, Gravesend, Kent, DA11 | £ 500,000 | BUY | 5 / 10 | 0.05 KM |
| Burch Road, Northfleet, Gravesend, Kent, DA11 | £ 170,000 | BUY | 6 / 10 | 0.05 KM |
| Burch Road, Gravesend, kent, DA11 | £ 150,000 | BUY | Unknown | 0.06 KM |
| London Road Northfleet Kent DA11 9LY | £ 450,000 | BUY | 4 / 10 | 0.12 KM |
Nearby Properties
| Address | Price | Distance |
|---|---|---|
| 119 London Road | £ 165,000 | 0.00 KM |
| 113a London Road | £ 110,000 | 0.00 KM |
| 107a London Road | £ 87,000 | 0.00 KM |
| 114c London Road | £ 56,000 | 0.00 KM |
| 117 London Road | £ 260,000 | 0.00 KM |