Watsons says ..
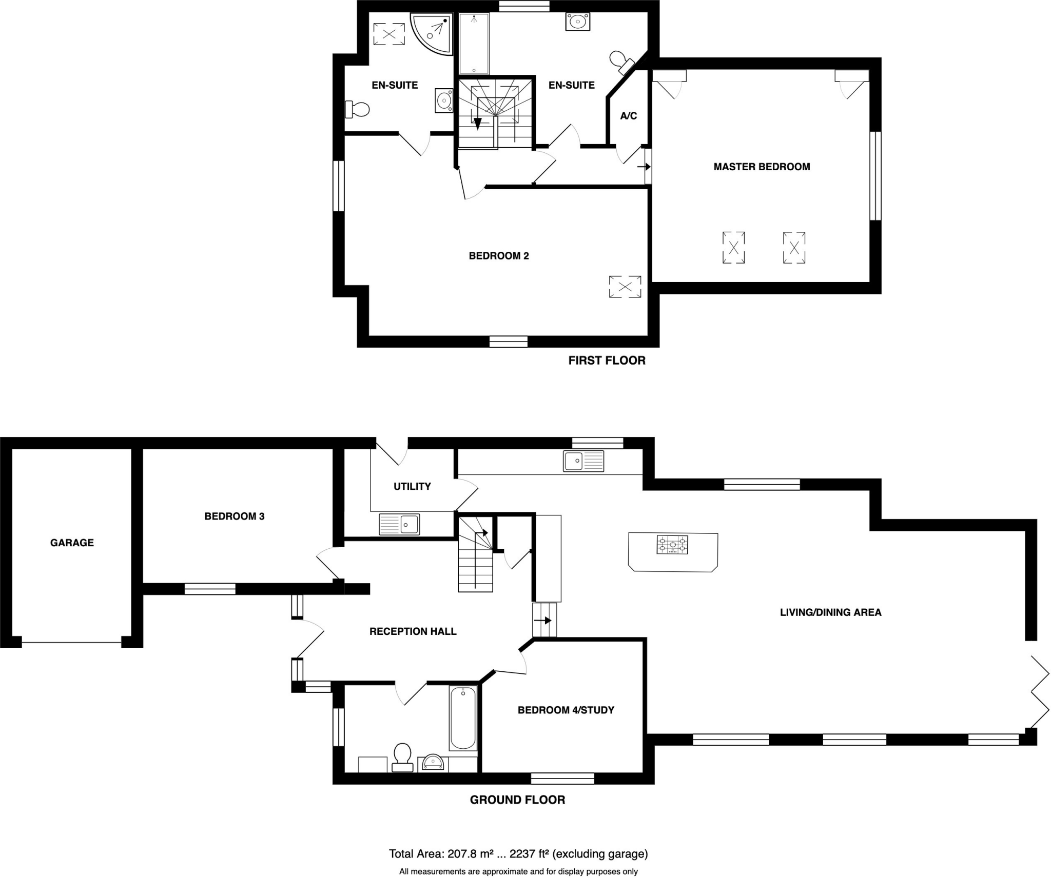
An individual non-estate modern detached split-level residence, with abundant, light, space and excellent "B" rating for energy efficiency
Property Oracle says ..
Therefore, we give this property 8 / 10. *Disclaimer: This is our option and does constitute a recommendation or financial advice. Do your own research. *
- Price
- 8
- Condition
- 9
- Location
- 8
- Land
- 7
- Bedrooms
- 4
- Bathrooms
- 3
- Sqft (est)
- 2,237.00
The heatmap indicates the level of crime in the area. The color of the heatmap indicates the crime severity and recency.
Metrics Year-on-Year
- Average area value
- 686,107.00 £Decreased by 13.94 %
- Est sale value
- 782,950.00 £Decreased by 55.13 %
- Average area rental value
- 2,042.00 £/moDecreased by 7.18 %
- Est letting value
- 2,237.00 £/moDecreased by 50.00 %
- Est rental Yield
- 3.57 %Increased by 7.85 %
- Crime Rate
- 4.00 %Unchanged by 0.00 %
from 797,268.00 £
from 1,744,860.00 £
from 2,200.00 £/mo
from 4,474.00 £/mo
from 3.31 %
from 4.00 %
Agent Activity
Watsons created the listing.
Nearby Schools
| Name | Type | Ofsted | Distance |
|---|---|---|---|
| Suffield Park Infant And Nursery School, Cromer | Community School | Good | 0.62 KM |
| Cromer Children'S Centre | Children's Centre | 0.65 KM | |
| Cromer Junior School | Academy Converter | 0.66 KM | |
| Cromer Academy | Academy Converter | Good | 0.81 KM |
| Overstrand, The Belfry, Church Of England Voluntary Aided Primary School | Voluntary Aided School | Good | 3.00 KM |
Images
Nearby Streets
| Name | Average Price | Average Sqft | Distance |
|---|---|---|---|
| White House Estate | £ 0 | 0 | 0.00 KM |
| RidgeWay | £ 415,000 | 0 | 0.00 KM |
| Grove Road | £ 90,000 | 0 | 0.00 KM |
| Mayfield Drive | £ 330,000 | 0 | 0.00 KM |
| King's Chalet Park | £ 57,000 | 0 | 0.00 KM |
Nearby Transport
| Name | NLC | TLC | Distance |
|---|---|---|---|
| Roughton Road | 7297 | RNR | 0.88 KM |
| Cromer | 7295 | CMR | 2.23 KM |
| West Runton | 7329 | WRN | 7.19 KM |
| Gunton | 7299 | GNT | 7.23 KM |
Nearby Listings
| Address | Price | Type | Score | Distance |
|---|---|---|---|---|
| Cromer | £ 615,000 | BUY | 8 / 10 | 0.00 KM |
| Stevens Road, Cromer | £ 350,000 | BUY | Unknown | 0.12 KM |
| Stevens Road, Cromer | £ 350,000 | BUY | Unknown | 0.12 KM |
| Stable Cottages, Hartington Road, Cromer | £ 215,000 | BUY | 6 / 10 | 0.23 KM |
| Bridge Close, Cromer, Norfolk, NR27 | £ 270,000 | BUY | 7 / 10 | 0.23 KM |
Nearby Properties
| Address | Price | Distance |
|---|---|---|
| Hillcrest | £ 194,000 | 0.00 KM |
| Sandal Wood | £ 167,000 | 0.00 KM |
| Pine Wood | £ 170,000 | 0.00 KM |
| Birch Wood | £ 280,000 | 0.00 KM |
| Grantley House | £ 282,500 | 0.09 KM |