SP
Vale Crescent, Southport, Merseyside, PR8
By Spencer Gordon
£ 290,000
Reviews
3 out of 5 stars
Spencer Gordon says ..
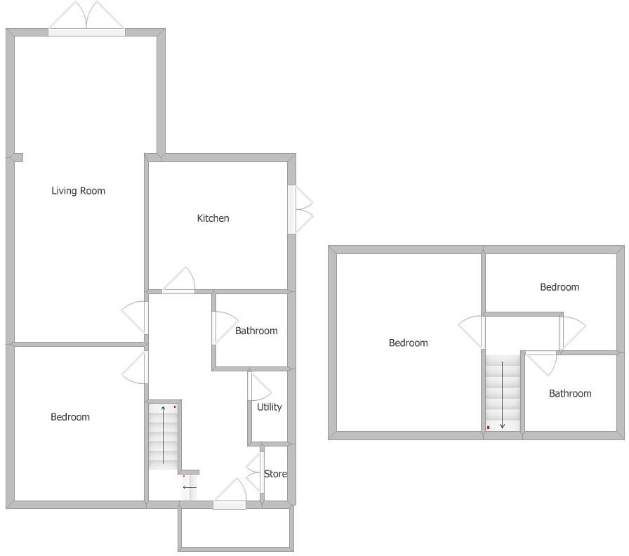
Set on a large corner plot this pleasantly presented property is available with NO ONWARD CHAIN. Extended to the rear, this property has spacious and versatile accommodation throughout. Early viewings are essential to fully appreciate what is on offer
Property Oracle says ..
Therefore, we give this property 7 / 10. *Disclaimer: This is our option and does constitute a recommendation or financial advice. Do your own research. *
- Price
- 7
- Condition
- 6
- Location
- 8
- Land
- 7
- Bedrooms
- 3
- Bathrooms
- 2
- Sqft (est)
- 1,022.00
The heatmap indicates the level of crime in the area. The color of the heatmap indicates the crime severity and recency.
Metrics Year-on-Year
- Average area value
- 350,455.00 £Increased by 5.50 %
- Est sale value
- 322,952.00 £Increased by 24.41 %
- Average area rental value
- 10,875.00 £/moIncreased by 953.78 %
- Est letting value
- 9,198.00 £/mo
- Est rental Yield
- 37.24 %Increased by 898.39 %
- Crime Rate
- 11.00 %Unchanged by 0.00 %
from 332,171.00 £
from 259,588.00 £
from 1,032.00 £/mo
from 0.00 £/mo
from 3.73 %
from 11.00 %
Agent Activity
Spencer Gordon created the listing.
Nearby Schools
| Name | Type | Ofsted | Distance |
|---|---|---|---|
| Kings Meadow Primary School And Early Years Education Centre | Community School | Good | 0.45 KM |
| Kings Meadow Children'S Centre | Children's Centre Linked Site | 0.45 KM | |
| Ainsdale St John'S Church Of England Primary School | Voluntary Aided School | Outstanding | 1.44 KM |
| Merefield School | Community Special School | Outstanding | 1.72 KM |
| Shoreside Primary School | Academy Sponsor Led | 2.08 KM |
Images
Nearby Streets
| Name | Average Price | Average Sqft | Distance |
|---|---|---|---|
| Cherry Road | £ 0 | 0 | 0.00 KM |
| Heather Close | £ 0 | 0 | 0.00 KM |
| Broad Lane | £ 0 | 0 | 0.00 KM |
| Penrith Avenue | £ 0 | 0 | 0.00 KM |
| Wentworth Close | £ 339,499 | 0 | 0.00 KM |
Nearby Transport
| Name | NLC | TLC | Distance |
|---|---|---|---|
| Ainsdale | 2350 | ANS | 1.73 KM |
| Hillside | 2231 | HIL | 4.07 KM |
| Freshfield | 2355 | FRE | 4.55 KM |
| Formby | 2354 | FBY | 5.34 KM |
| Birkdale | 2352 | BDL | 5.73 KM |
Nearby Listings
| Address | Price | Type | Score | Distance |
|---|---|---|---|---|
| Vale Crescent, Southport, Merseyside, PR8 | £ 290,000 | BUY | 7 / 10 | 0.00 KM |
| Vale Crescent, Southport, Merseyside, PR8 | £ 300,000 | BUY | Unknown | 0.00 KM |
| Vale Crescent, Southport, PR8 3SZ | £ 270,000 | BUY | 6 / 10 | 0.01 KM |
| Moor Lane, Southport, Merseyside, PR8 | £ 190,000 | BUY | 5 / 10 | 0.08 KM |
| Moor Close, Ainsdale, Southport | £ 200,000 | BUY | 7 / 10 | 0.14 KM |
Nearby Properties
| Address | Price | Distance |
|---|---|---|
| 22 Vale Crescent | £ 163,500 | 0.00 KM |
| 20 Vale Crescent | £ 280,000 | 0.00 KM |
| 18 Vale Crescent | £ 166,000 | 0.00 KM |
| 43 Vale Crescent | £ 160,000 | 0.00 KM |
| 58 Vale Crescent | £ 80,000 | 0.00 KM |