Anstey Road, Reading, RG1
By AH Lansley Residential
£ 395,000
Reviews
3 out of 5 stars
AH Lansley Residential says ..
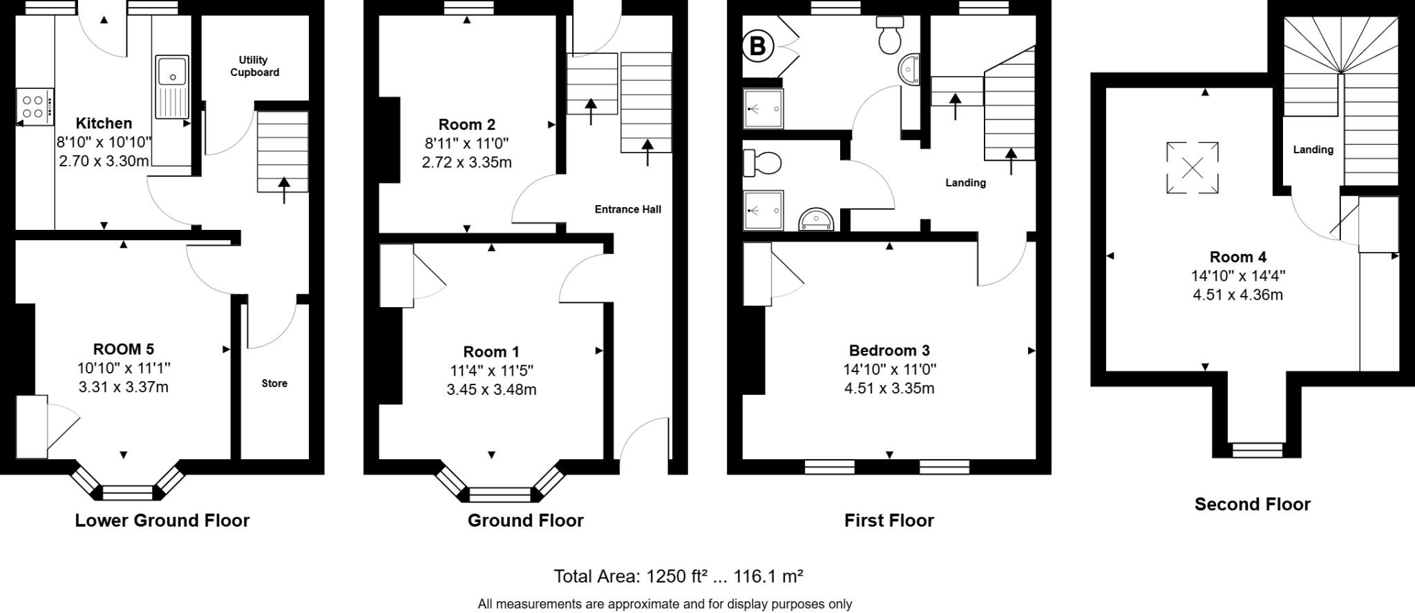
This listened HMO is located within walking distance of Reading town centre and mainline railway station. The property is well presented and offers five double rooms over four floors, two shower rooms, fully fitted kitchen with separate utility area and enclosed courtyard garden. All rooms are cu...
Property Oracle says ..
Therefore, we give this property 6 / 10. *Disclaimer: This is our option and does constitute a recommendation or financial advice. Do your own research. *
- Price
- 8
- Condition
- 6
- Location
- 7
- Land
- 4
- Bedrooms
- 5
- Bathrooms
- 2
- Sqft (est)
- 1,250.00
The heatmap indicates the level of crime in the area. The color of the heatmap indicates the crime severity and recency.
Metrics Year-on-Year
- Average area value
- 350,323.00 £Decreased by 1.18 %
- Est sale value
- 538,750.00 £Increased by 20.73 %
- Average area rental value
- 1,334.00 £/moDecreased by 2.49 %
- Est letting value
- 1,250.00 £/moUnchanged by 0.00 %
- Est rental Yield
- 4.57 %Decreased by 1.30 %
- Crime Rate
- 6.00 %Unchanged by 0.00 %
from 354,508.00 £
from 446,250.00 £
from 1,368.00 £/mo
from 1,250.00 £/mo
from 4.63 %
from 6.00 %
Agent Activity
AH Lansley Residential created the listing.
Nearby Schools
| Name | Type | Ofsted | Distance |
|---|---|---|---|
| Coley Primary School | Community School | Good | 0.32 KM |
| Civitas Academy | Academy Sponsor Led | Good | 0.60 KM |
| Katesgrove Primary School | Community School | Good | 0.82 KM |
| Oxford Road Community School | Community School | Good | 0.94 KM |
| All Saints Church Of England Aided Infant School | Voluntary Aided School | Good | 1.04 KM |
Images
Nearby Streets
| Name | Average Price | Average Sqft | Distance |
|---|---|---|---|
| Marshall Close | £ 0 | 0 | 0.00 KM |
| Jesse Terrace | £ 0 | 0 | 0.00 KM |
| Castle Street | £ 195,000 | 0 | 0.00 KM |
| Cheriton Court | £ 215,000 | 0 | 0.00 KM |
| Bath Road | £ 0 | 0 | 0.00 KM |
Nearby Transport
| Name | NLC | TLC | Distance |
|---|---|---|---|
| Reading | 3149 | RDG | 1.06 KM |
| Reading West | 3160 | RDW | 1.27 KM |
| Tilehurst | 3154 | TLH | 6.00 KM |
| Earley | 5694 | EAR | 6.87 KM |
| Winnersh Triangle | 5698 | WTI | 9.86 KM |
Nearby Listings
| Address | Price | Type | Score | Distance |
|---|---|---|---|---|
| Anstey Road, Reading, RG1 | £ 395,000 | BUY | 6 / 10 | 0.00 KM |
| Anstey Road, Reading, RG1 | £ 375,000 | BUY | 5 / 10 | 0.03 KM |
| Anstey Road, Reading, Berkshire, RG1 | £ 325,000 | BUY | 4 / 10 | 0.03 KM |
| Carey Street, Reading | £ 275,000 | BUY | 7 / 10 | 0.06 KM |
| Carey Street, Reading, Berkshire, RG1 | £ 190,000 | BUY | 7 / 10 | 0.07 KM |
Nearby Properties
| Address | Price | Distance |
|---|---|---|
| 36 Anstey Road | £ 75,000 | 0.03 KM |
| 30 Anstey Road | £ 230,000 | 0.03 KM |
| 34 Anstey Road | £ 65,000 | 0.03 KM |
| 2 Anstey Road | £ 397,500 | 0.03 KM |
| 6 Anstey Road | £ 342,500 | 0.03 KM |