Longhurst Lane, Marple Bridge, Stockport
By Gascoigne Halman
£ 450,000
Reviews
3 out of 5 stars
Gascoigne Halman says ..
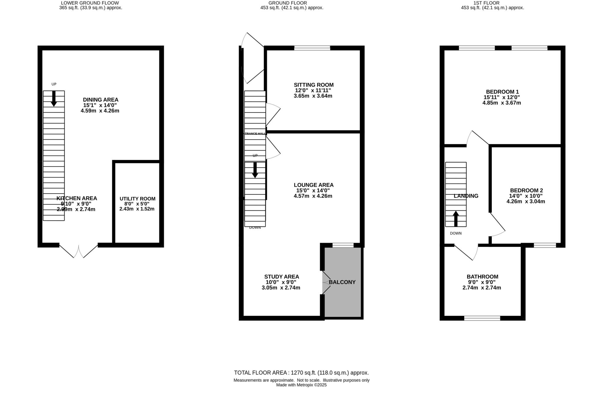
A stunning, deceptively spacious TWO double bedroom, THREE reception room mid terrace property situated in the heart of the village, boasting many character and period features and SOUTH FACING rear garden.
Property Oracle says ..
This property is a charming terraced house located in Marple Bridge, Stockport. It benefits from a modern interior with a recently renovated kitchen and bathroom. The property has two bedrooms and a good-sized garden, although the garden is not exceptionally large. The location is excellent, with easy access to local amenities, schools, and transport links. The property appears to be in good condition. The asking price is slightly below the average price for the area, but it is important to note that the average price per square foot is higher than that of this property, which may suggest a reasonable price.
Therefore, we give this property 7 / 10. *Disclaimer: This is our option and does constitute a recommendation or financial advice. Do your own research. *
- Price
- 7
- Condition
- 9
- Location
- 9
- Land
- 6
- Bedrooms
- 2
- Bathrooms
- 1
- Sqft (est)
- 1,270.14
The heatmap indicates the level of crime in the area. The color of the heatmap indicates the crime severity and recency.
Metrics Year-on-Year
- Average area value
- 583,125.00 £Increased by 22.07 %
- Est sale value
- 579,183.84 £Increased by 21.93 %
- Average area rental value
- 1,406.00 £/moIncreased by 16.39 %
- Est letting value
- 1,270.14 £/mo
- Est rental Yield
- 2.89 %Decreased by 4.62 %
- Crime Rate
- 0.00 %
Agent Activity
Gascoigne Halman created the listing.
Nearby Schools
| Name | Type | Ofsted | Distance |
|---|---|---|---|
| Brabyns Preparatory School | Other Independent School | 0.41 KM | |
| St Mary'S Catholic Voluntary Academy | Academy Converter | 0.42 KM | |
| Ludworth Primary School | Community School | Outstanding | 0.47 KM |
| All Saints Church Of England Primary School Marple | Voluntary Controlled School | Good | 1.18 KM |
| Mellor Primary School | Academy Converter | Good | 1.50 KM |
Images
Nearby Streets
| Name | Average Price | Average Sqft | Distance |
|---|---|---|---|
| Pear Tree Close | £ 380,000 | 0 | 0.00 KM |
| Homer Drive | £ 0 | 0 | 0.00 KM |
| Field House Lane | £ 950,000 | 0 | 0.00 KM |
| Oldknow Road | £ 700,000 | 0 | 0.00 KM |
| The Close | £ 0 | 0 | 0.00 KM |
Nearby Transport
| Name | NLC | TLC | Distance |
|---|---|---|---|
| Marple | 2830 | MPL | 0.48 KM |
| Rose Hill Marple | 2873 | RSH | 2.62 KM |
| Strines | 2834 | SRN | 3.46 KM |
| Romiley | 2833 | RML | 4.32 KM |
| Disley | 2765 | DSL | 4.75 KM |
Nearby Listings
| Address | Price | Type | Score | Distance |
|---|---|---|---|---|
| Longhurst Lane, Marple Bridge, Stockport | £ 450,000 | BUY | 7 / 10 | 0.00 KM |
| 33 Town Street, Marple Bridge, Stockport SK6 5AA | £ 230,000 | BUY | 7 / 10 | 0.05 KM |
| Low Lea Road, Marple Bridge, Stockport, Greater Manchester, SK6 | £ 535,000 | BUY | Unknown | 0.07 KM |
| Town Street, Marple Bridge, Stockport, Greater Manchester, SK6 | £ 225,000 | BUY | 7 / 10 | 0.08 KM |
| Hollins Lane, Marple Bridge, Stockport, Cheshire, SK6 5BB | £ 1,125,000 | BUY | 8 / 10 | 0.14 KM |
Nearby Properties
| Address | Price | Distance |
|---|---|---|
| 3 Low Lea Road | £ 225,000 | 0.09 KM |
| 1 Low Lea Road | £ 84,000 | 0.09 KM |
| 5 Low Lea Road | £ 197,500 | 0.09 KM |
| 2 Low Lea Road | £ 91,500 | 0.09 KM |
| 27 Low Lea Road | £ 385,000 | 0.09 KM |