Stoney Bridge, Abbeymead, Gloucester
By Naylor Powell
£ 215,000
Reviews
3 out of 5 stars
Naylor Powell says ..
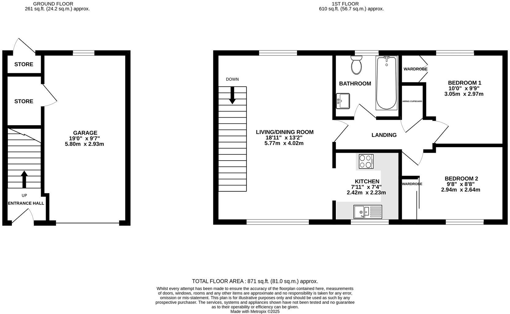
A great opportunity for first-time buyers or buy to let investors. An immaculately presented two-bedroom first-floor coach house. Comprising of bathroom, good sized living/dining and kitchen. This property has the additional benefits of double glazing throughout, gas central heating, a garage, an...
Property Oracle says ..
This property is a coach house located in Abbeymead, Gloucester. It benefits from being close to good schools and transport links. The property itself is modern and well-maintained, as shown in the photos. While it does not have a large plot size, it includes a garage. The list price of £215,000 is below the average price for the area, making it potentially good value for money, especially considering its modern condition and desirable location.
Therefore, we give this property 7 / 10. *Disclaimer: This is our option and does constitute a recommendation or financial advice. Do your own research. *
- Price
- 8
- Condition
- 9
- Location
- 8
- Land
- 3
- Bedrooms
- 2
- Bathrooms
- 1
- Sqft (est)
- 871.00
The heatmap indicates the level of crime in the area. The color of the heatmap indicates the crime severity and recency.
Metrics Year-on-Year
- Average area value
- 335,000.00 £Decreased by 4.56 %
- Est sale value
- 342,303.00 £Decreased by 2.00 %
- Average area rental value
- 1,036.00 £/moDecreased by 2.63 %
- Est letting value
- 871.00 £/moUnchanged by 0.00 %
- Est rental Yield
- 3.71 %Increased by 1.92 %
- Crime Rate
- 6.00 %Unchanged by 0.00 %
Agent Activity
Naylor Powell created the listing.
Nearby Schools
| Name | Type | Ofsted | Distance |
|---|---|---|---|
| Abbeymead Primary School | Community School | Good | 0.67 KM |
| Dinglewell Junior School | Community School | Good | 0.91 KM |
| Dinglewell Infant School | Community School | Good | 0.91 KM |
| Heron Primary School | Foundation School | Good | 1.11 KM |
| Barnwood Park School | Foundation School | Good | 1.12 KM |
Images
Nearby Streets
| Name | Average Price | Average Sqft | Distance |
|---|---|---|---|
| Spartan Close | £ 225,000 | 0 | 0.00 KM |
| Roman Road | £ 343,850 | 0 | 0.00 KM |
| Lady Chapel Road | £ 156,000 | 0 | 0.00 KM |
| The Plantation | £ 0 | 0 | 0.00 KM |
| The Copse | £ 370,000 | 0 | 0.00 KM |
Nearby Transport
| Name | NLC | TLC | Distance |
|---|---|---|---|
| Gloucester | 4760 | GCR | 4.38 KM |
Nearby Listings
| Address | Price | Type | Score | Distance |
|---|---|---|---|---|
| Stoney Bridge, Abbeymead, Gloucester | £ 215,000 | BUY | 7 / 10 | 0.00 KM |
| Stoney Bridge, Abbeymead, Gloucester | £ 300,000 | BUY | 6 / 10 | 0.03 KM |
| Stoney Bridge, Abbeymead, GL4 | £ 300,000 | BUY | Unknown | 0.03 KM |
| Ashbed Close, Abbeymead, Gloucester | £ 340,000 | BUY | 6 / 10 | 0.12 KM |
| The Oaks, Gloucester | £ 498,000 | BUY | 7 / 10 | 0.15 KM |
Nearby Properties
| Address | Price | Distance |
|---|---|---|
| 25 Stoney Bridge | £ 176,000 | 0.02 KM |
| 31 Stoney Bridge | £ 225,000 | 0.02 KM |
| 2 Stoney Bridge | £ 253,750 | 0.02 KM |
| 21 Stoney Bridge | £ 230,000 | 0.02 KM |
| 9 Stoney Bridge | £ 240,000 | 0.02 KM |