Barkers Piece, Marston Moretaine, MK43
By James Kendall
£ 260,000
Reviews
3 out of 5 stars
James Kendall says ..
Tucked away in the sought-after village of Marston Moretaine, this two-bedroom home blends offers practical living spaces in a convenient location. The property is ideal for first-time buyers, downsizers, or investors looking for a well-connected yet tranquil location.
Property Oracle says ..
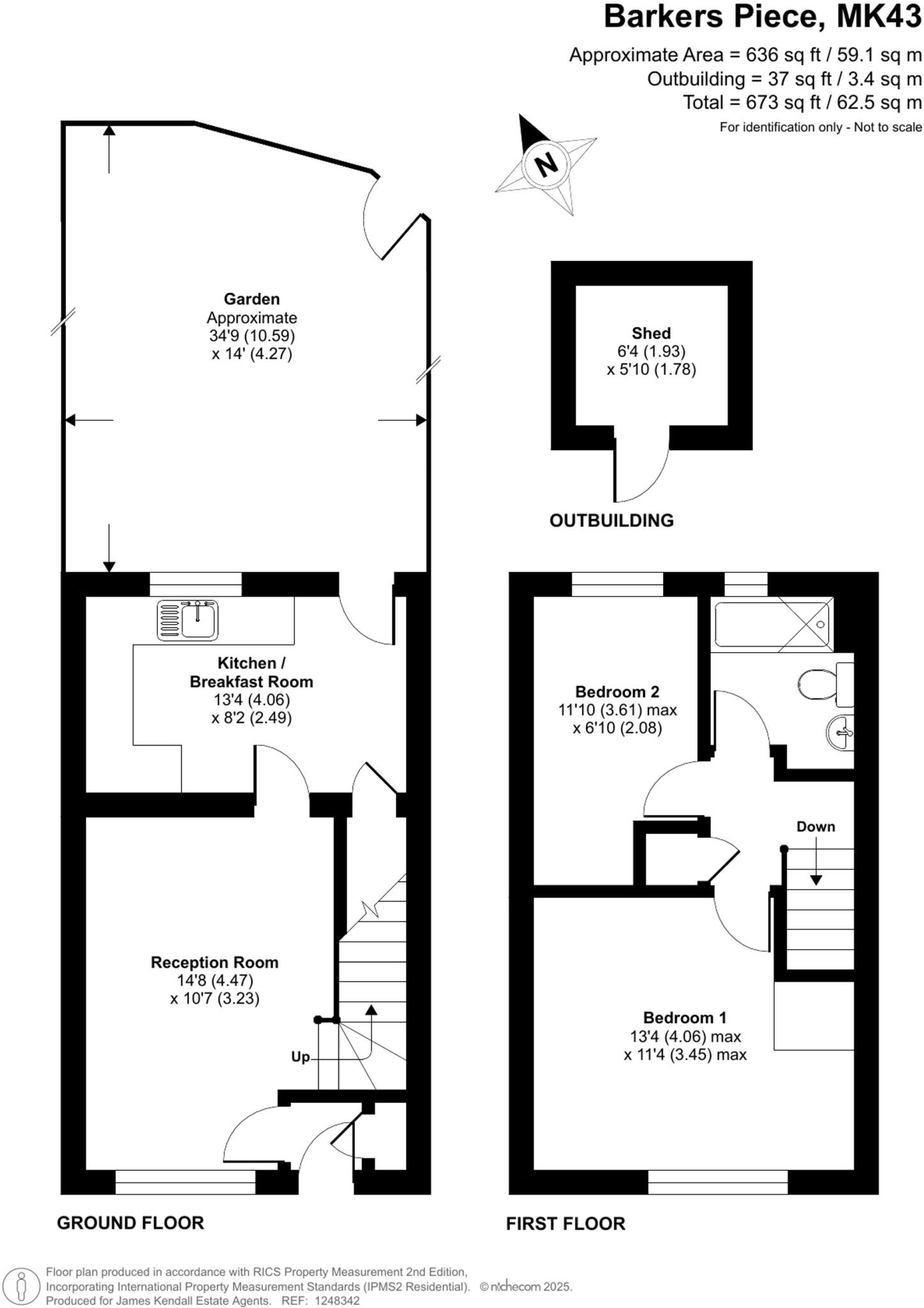
This two-bedroom terraced house in Marston Moretaine, Bedfordshire is listed at £260,000. The property boasts a fitted kitchen/diner, a lounge, a refitted bathroom, and off-road parking for two to three cars. It is situated in a quiet cul-de-sac close to local amenities and backs onto fields, offering a non-overlooked rear garden. While the property itself appears to be in good condition based on the provided photos, the list price is significantly lower than the average price for the area (£457,016). This discrepancy may be due to the smaller size of the property (996.58 sqft) compared to the average (1,317 sqft). The average price per sqft in the area is £347, while this property is listed at a lower price per sqft. The proximity to local amenities, schools (Marston Moreteyne VC School is 0.77km away), and train stations (Millbrook station is 2.20km away) adds to the property’s appeal. The presence of a garden is a positive feature. However, a comprehensive survey would be needed to fully assess the property’s condition and value.
Therefore, we give this property 7 / 10. *Disclaimer: This is our option and does constitute a recommendation or financial advice. Do your own research. *
- Price
- 7
- Condition
- 8
- Location
- 8
- Land
- 7
- Bedrooms
- 2
- Bathrooms
- 1
- Sqft (est)
- 996.58
- Lot (est)
- 673.00
The heatmap indicates the level of crime in the area. The color of the heatmap indicates the crime severity and recency.
Metrics Year-on-Year
- Average area value
- 370,600.00 £Decreased by 20.01 %
- Est sale value
- 395,642.26 £Increased by 0.25 %
- Average area rental value
- 1,063.00 £/moDecreased by 10.52 %
- Est letting value
- 996.58 £/moUnchanged by 0.00 %
- Est rental Yield
- 3.44 %Increased by 11.69 %
- Crime Rate
- 6.00 %Unchanged by 0.00 %
Agent Activity
James Kendall marked this listing as sold.
James Kendall created the listing.
Nearby Schools
| Name | Type | Ofsted | Distance |
|---|---|---|---|
| Marston Moreteyne Vc School | Voluntary Controlled School | 0.77 KM | |
| Shelton Lower School | Foundation School | Good | 1.47 KM |
| Kimberley 16 - 19 Stem College | Free Schools 16 To 19 | Good | 2.48 KM |
| Wootton Upper School | Academy Converter | Good | 3.16 KM |
| Thomas Johnson Lower School | Community School | Good | 3.47 KM |
Images
Nearby Streets
| Name | Average Price | Average Sqft | Distance |
|---|---|---|---|
| Chapel Road | £ 210,000 | 0 | 0.00 KM |
| A421 | £ 0 | 0 | 0.00 KM |
| Browns Close | £ 270,000 | 0 | 0.00 KM |
| St Marys Close | £ 0 | 0 | 0.00 KM |
| Evans Orchard | £ 0 | 0 | 0.00 KM |
Nearby Transport
| Name | NLC | TLC | Distance |
|---|---|---|---|
| Millbrook (Bedfordshire) | 1537 | MLB | 2.20 KM |
| Stewartby | 1386 | SWR | 2.92 KM |
| Lidlington | 1579 | LID | 3.19 KM |
| Kempston Hardwick | 1384 | KMH | 5.50 KM |
| Ridgmont | 1538 | RID | 6.97 KM |
Nearby Listings
| Address | Price | Type | Score | Distance |
|---|---|---|---|---|
| Barkers Piece, Marston Moretaine | £ 330,000 | BUY | 6 / 10 | 0.04 KM |
| Barkers Piece, Marston Moretaine, Bedford | £ 270,000 | BUY | 6 / 10 | 0.04 KM |
| Barkers Piece, Bedford | £ 185,000 | BUY | 6 / 10 | 0.04 KM |
| Barkers Piece, Marston Moretaine, MK43 | £ 340,000 | BUY | 7 / 10 | 0.09 KM |
| Pembroke Close, Marston Moretaine, MK43 | £ 375,000 | BUY | 7 / 10 | 0.13 KM |
Nearby Properties
| Address | Price | Distance |
|---|---|---|
| 9 Barkers Piece | £ 149,995 | 0.02 KM |
| 31 Barkers Piece | £ 105,000 | 0.02 KM |
| 19 Barkers Piece | £ 80,000 | 0.02 KM |
| 45 Barkers Piece | £ 320,000 | 0.02 KM |
| 39 Barkers Piece | £ 200,000 | 0.02 KM |