Barnard Marcus says ..
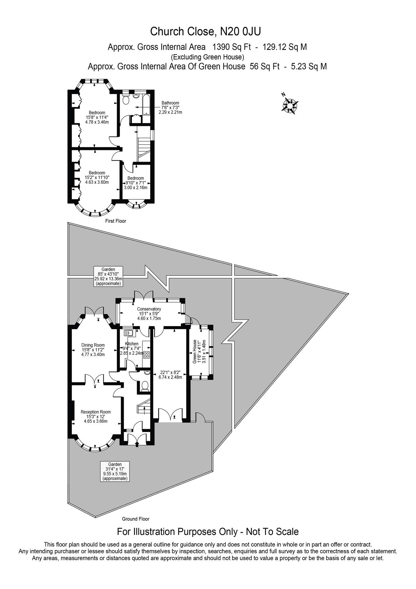
This three-bedroom semi-detached residence located on this premier cul-de-sac road and has been well-maintained by the current owner offering great potential for someone to put their own stamp and extend on this lovely residence.
Property Oracle says ..
Therefore, we give this property 8 / 10. *Disclaimer: This is our option and does constitute a recommendation or financial advice. Do your own research. *
- Price
- 7
- Condition
- 8
- Location
- 8
- Land
- 9
- Bedrooms
- 3
- Bathrooms
- 2
- Sqft (est)
- 1,390.00
The heatmap indicates the level of crime in the area. The color of the heatmap indicates the crime severity and recency.
Metrics Year-on-Year
- Average area value
- 1,302,500.00 £Increased by 43.07 %
- Est sale value
- 750,600.00 £Decreased by 5.10 %
- Average area rental value
- 2,439.00 £/moIncreased by 4.59 %
- Est letting value
- 1,390.00 £/moUnchanged by 0.00 %
- Est rental Yield
- 2.25 %Decreased by 26.71 %
- Crime Rate
- 2.00 %Unchanged by 0.00 %
from 910,395.00 £
from 790,910.00 £
from 2,332.00 £/mo
from 1,390.00 £/mo
from 3.07 %
from 2.00 %
Agent Activity
Barnard Marcus created the listing.
Nearby Schools
| Name | Type | Ofsted | Distance |
|---|---|---|---|
| Oakleigh School & Acorn Assessment Centre | Community Special School | Outstanding | 0.38 KM |
| Sacred Heart Roman Catholic Primary School | Voluntary Aided School | Good | 0.81 KM |
| All Saints' Cofe Primary School N20 | Voluntary Aided School | Good | 0.90 KM |
| Queenswell Infant & Nursery School | Community School | Good | 0.99 KM |
| Queenswell Junior School | Community School | Good | 0.99 KM |
Images
Nearby Streets
| Name | Average Price | Average Sqft | Distance |
|---|---|---|---|
| Church Close | £ 0 | 0 | 0.00 KM |
| St Ninian's Court | £ 302,500 | 0 | 0.00 KM |
| Lawrence Campe Close | £ 0 | 0 | 0.00 KM |
| Leadbeaters Close | £ 0 | 0 | 0.00 KM |
| Queen's Parade Close | £ 0 | 0 | 0.00 KM |
Nearby Transport
| Name | NLC | TLC | Distance |
|---|---|---|---|
| Oakleigh Park | 6020 | OKL | 1.68 KM |
| New Southgate | 6019 | NSG | 2.33 KM |
| New Barnet | 6018 | NBA | 3.07 KM |
| Bowes Park | 6027 | BOP | 4.92 KM |
| Hadley Wood | 6075 | HDW | 5.28 KM |
Nearby Listings
| Address | Price | Type | Score | Distance |
|---|---|---|---|---|
| Church Close, London | £ 875,000 | BUY | 8 / 10 | 0.00 KM |
| Raleigh Drive, Whetstone, N20 | £ 820,000 | BUY | 7 / 10 | 0.13 KM |
| Raleigh Drive, Whetstone | £ 850,000 | BUY | 8 / 10 | 0.14 KM |
| Friars Avenue, Whetstone, N20 | £ 1,595,000 | BUY | 7 / 10 | 0.15 KM |
| Friars Avenue, Whetstone, N20 | £ 1,400,000 | BUY | Unknown | 0.16 KM |
Nearby Properties
| Address | Price | Distance |
|---|---|---|
| 70 Raleigh Drive | £ 745,000 | 0.14 KM |
| 102 Raleigh Drive | £ 905,000 | 0.14 KM |
| 51 Friars Avenue | £ 900,000 | 0.14 KM |
| 124 Raleigh Drive | £ 750,000 | 0.14 KM |
| 104 Raleigh Drive | £ 438,000 | 0.14 KM |