New Road, Tiptree
By David Martin Estate Agents
£ 485,000
Reviews
3 out of 5 stars
David Martin Estate Agents says ..
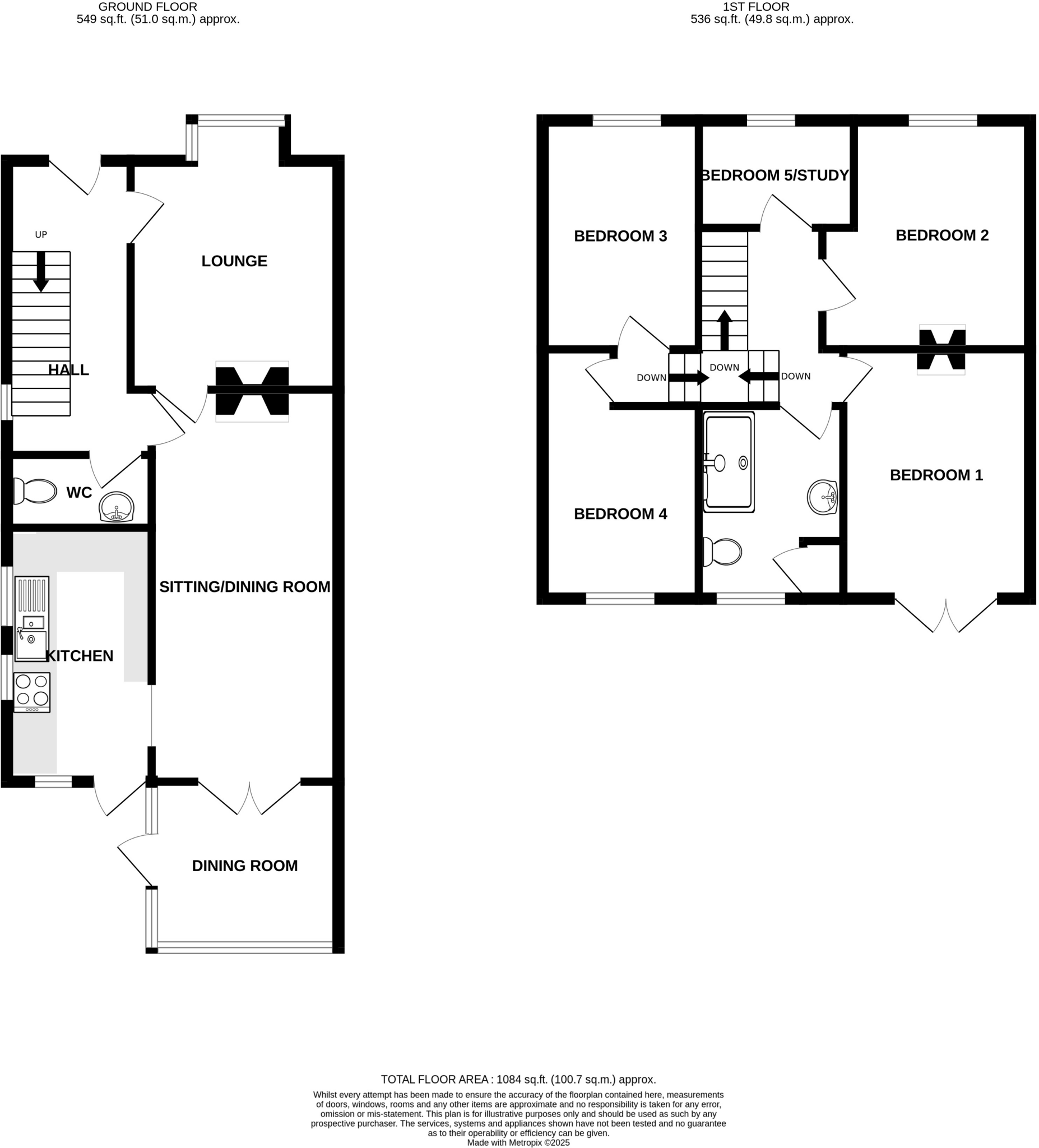
David Martin Estate Agents are delighted this four bedroom detached house centrally situated in popular village of Tiptree with its shops, schools and amenities. The property offers versatile family accommodation comprising of entrance hall, lounge, sitting room, conservatory, kitchen, ground flo...
Property Oracle says ..
The property is a 4 bedroom, 2 bathroom detached house located on New Road, Tiptree, Colchester, Essex. It is listed at £485,000 and has 1,284 sqft of living space and a 1,084 sqft plot. The average property price in the area is £348,914, with an average price per sqft of £356. The property is larger than average at 1284 sqft compared to the average of 979 sqft. Based on the images provided, the property appears to be well maintained and in good condition. The interior is modern and updated, with a recently fitted kitchen and bathrooms. There is a good sized garden with a patio area. The property benefits from off-street parking. The location is good, with several primary schools within a short distance, including St Luke’s Church of England Controlled Primary School and Milldene Primary School, both rated ‘Good’ by Ofsted. There are also secondary schools nearby. Transport links are reasonable, with Kelvedon and Marks Tey train stations within a reasonable distance. Considering the property’s size, condition, location, and the presence of a garden, the list price of £485,000 appears to be slightly above average for the area, but not unreasonable given the property’s condition and amenities. The price per sqft is higher than average, reflecting the larger size and good condition of the property.
Therefore, we give this property 7 / 10. *Disclaimer: This is our option and does constitute a recommendation or financial advice. Do your own research. *
- Price
- 7
- Condition
- 9
- Location
- 8
- Land
- 7
- Bedrooms
- 4
- Bathrooms
- 2
- Sqft (est)
- 1,284.00
- Lot (est)
- 1,084.00
The heatmap indicates the level of crime in the area. The color of the heatmap indicates the crime severity and recency.
Metrics Year-on-Year
- Average area value
- 415,385.00 £Increased by 2.38 %
- Est sale value
- 555,972.00 £Increased by 11.31 %
- Average area rental value
- 1,000.00 £/moDecreased by 33.77 %
- Est letting value
- 1,284.00 £/moUnchanged by 0.00 %
- Est rental Yield
- 2.89 %Decreased by 35.35 %
- Crime Rate
- 6.00 %Unchanged by 0.00 %
Agent Activity
David Martin Estate Agents created the listing.
Nearby Schools
| Name | Type | Ofsted | Distance |
|---|---|---|---|
| St Luke'S Church Of England Controlled Primary School | Voluntary Controlled School | Good | 0.64 KM |
| Milldene Primary School | Community School | Good | 0.81 KM |
| Thurstable School Sports College And Sixth Form Centre | Academy Converter | Good | 1.23 KM |
| Tiptree Heath Primary School | Academy Converter | 1.90 KM | |
| Baynards Primary School | Community School | Good | 1.91 KM |
Images
Nearby Streets
| Name | Average Price | Average Sqft | Distance |
|---|---|---|---|
| Wood View | £ 0 | 0 | 0.00 KM |
| Greengage Close | £ 475,000 | 0 | 0.00 KM |
| Frost Drive | £ 550,000 | 0 | 0.00 KM |
| Tiffin Drive | £ 0 | 0 | 0.00 KM |
| Ager Avenue | £ 402,500 | 0 | 0.00 KM |
Nearby Transport
| Name | NLC | TLC | Distance |
|---|---|---|---|
| Kelvedon | 6838 | KEL | 6.72 KM |
| Marks Tey | 6863 | MKT | 8.36 KM |
Nearby Listings
| Address | Price | Type | Score | Distance |
|---|---|---|---|---|
| Keeble Close, Tiptree, Colchester | £ 435,000 | BUY | Unknown | 0.11 KM |
| Keeble Close, Tiptree | £ 435,000 | BUY | Unknown | 0.11 KM |
| Berryfield Close, Tiptree, Colchester | £ 350,000 | BUY | 8 / 10 | 0.14 KM |
| Berryfield Close, Tiptree | £ 375,000 | BUY | 7 / 10 | 0.14 KM |
| Berryfield Close, Tiptree, Colchester | £ 325,000 | BUY | 6 / 10 | 0.14 KM |
Nearby Properties
| Address | Price | Distance |
|---|---|---|
| 44 New Road | £ 315,000 | 0.00 KM |
| 29 New Road | £ 262,000 | 0.00 KM |
| 18 New Road | £ 345,000 | 0.00 KM |
| 24 New Road | £ 64,995 | 0.00 KM |
| 32 New Road | £ 305,000 | 0.00 KM |