Imeary Street, South Shields
By Browns Estate Agents
£ 69,950
Reviews
2 out of 5 stars
Browns Estate Agents says ..
This well-located and affordable 2-bedroom apartment in South Shields is a perfect first-time buyer property or investment opportunity.
Property Oracle says ..
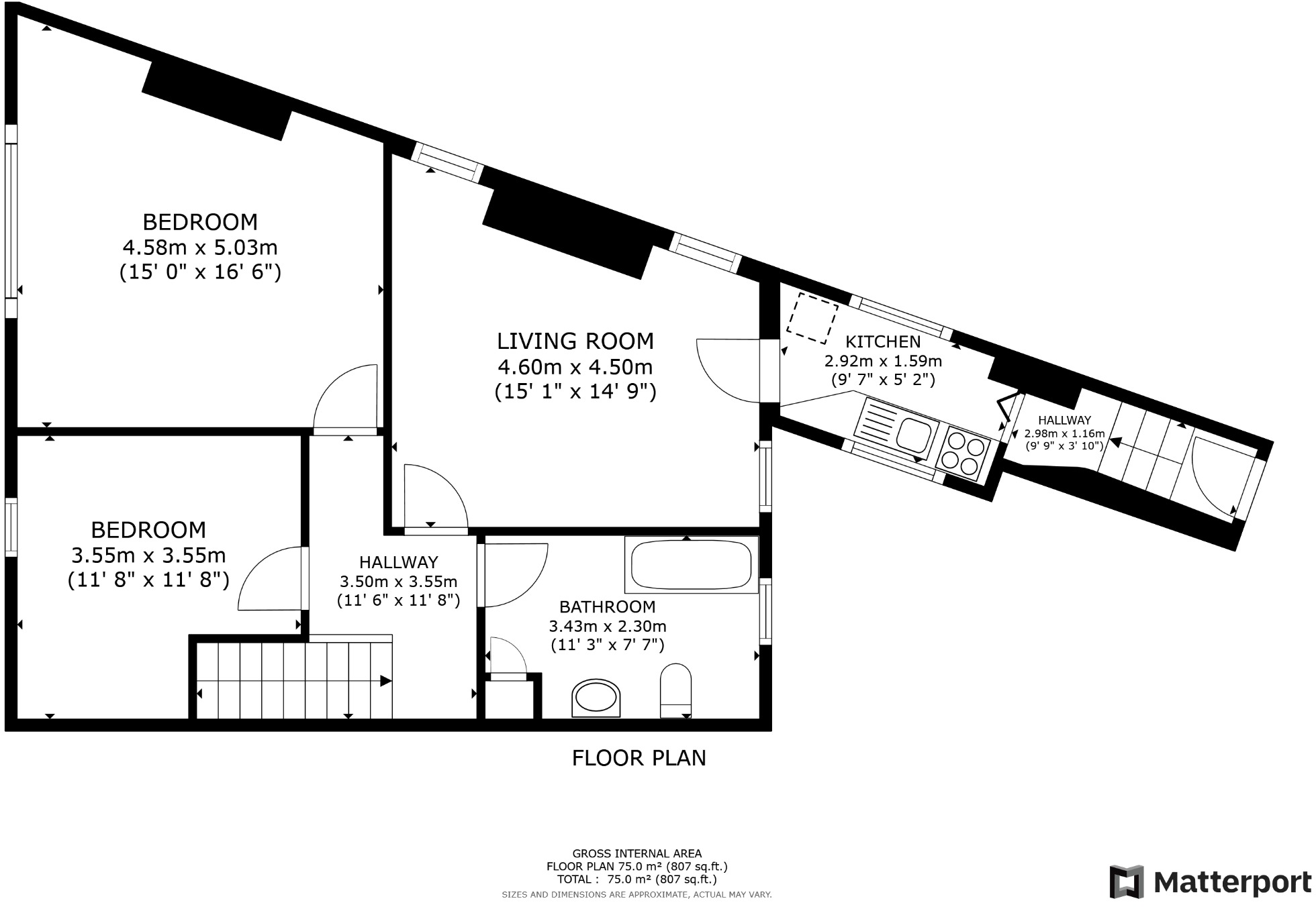
This 2-bedroom property in Westoe, South Shields, presents a mixed bag. The location is a positive aspect, with relatively nearby schools and potentially close proximity to local shops, though confirmation of the latter requires further details. The provided images show a property in need of some modernisation and renovation. Some rooms are presented in a good condition but some flooring is exposed and the kitchen and bathroom need updates and may require repair. The absence of a garden is a notable drawback, especially for families. While the asking price seems reasonably positioned within the local market based on limited comparable data, potential buyers should factor in the required renovations, to determine the true cost of the property and its overall value for money.
Therefore, we give this property 5 / 10. *Disclaimer: This is our option and does constitute a recommendation or financial advice. Do your own research. *
- Price
- 7
- Condition
- 5
- Location
- 7
- Land
- 1
- Bedrooms
- 2
- Bathrooms
- 1
- Sqft (est)
- 807.29
The heatmap indicates the level of crime in the area. The color of the heatmap indicates the crime severity and recency.
Metrics Year-on-Year
- Average area value
- 200,068.00 £Increased by 34.96 %
- Est sale value
- 160,650.71 £Increased by 91.35 %
- Average area rental value
- 746.00 £/moIncreased by 8.91 %
- Est letting value
- 0.00 £/mo
- Est rental Yield
- 4.47 %Decreased by 19.31 %
- Crime Rate
- 5.00 %Unchanged by 0.00 %
Agent Activity
Browns Estate Agents created the listing.
Nearby Schools
| Name | Type | Ofsted | Distance |
|---|---|---|---|
| St Bede'S Catholic Primary School, South Shields | Academy Converter | 0.64 KM | |
| Laygate Community School | Community School | Good | 0.65 KM |
| Riverside Children'S Centre | Children's Centre | 0.74 KM | |
| Tyne Coast College | Further Education | Good | 0.85 KM |
| Mortimer Community College | Community School | Good | 0.86 KM |
Images
Nearby Streets
| Name | Average Price | Average Sqft | Distance |
|---|---|---|---|
| West Stainton Street | £ 0 | 0 | 0.00 KM |
| Victoria Road | £ 0 | 0 | 0.00 KM |
| Graham Street | £ 60,000 | 0 | 0.00 KM |
| Shakespeare Street | £ 0 | 0 | 0.00 KM |
| Dean Road | £ 0 | 0 | 0.00 KM |
Nearby Listings
| Address | Price | Type | Score | Distance |
|---|---|---|---|---|
| Imeary Street, South Shields | £ 69,950 | BUY | 5 / 10 | 0.00 KM |
| 131 Imeary Street, South Shields NE33 4EW | £ 37,000 | BUY | 5 / 10 | 0.02 KM |
| Imeary Street, Westoe, South Shields, Tyne and Wear, NE33 4EW | £ 60,000 | BUY | 5 / 10 | 0.02 KM |
| 135 Imeary Street, South Shields NE33 4EW | £ 32,000 | BUY | 5 / 10 | 0.03 KM |
| South Shields, Tyne and Wear, NE33 | £ 75,000 | BUY | 6 / 10 | 0.03 KM |
Nearby Properties
| Address | Price | Distance |
|---|---|---|
| 141 Imeary Street | £ 80,000 | 0.03 KM |
| 96 Imeary Street | £ 49,000 | 0.03 KM |
| 100 - 102 Imeary Street | £ 63,500 | 0.03 KM |
| 139 Imeary Street | £ 72,000 | 0.03 KM |
| 25 West Moffett Street | £ 68,000 | 0.03 KM |