Gascoigne Halman says ..
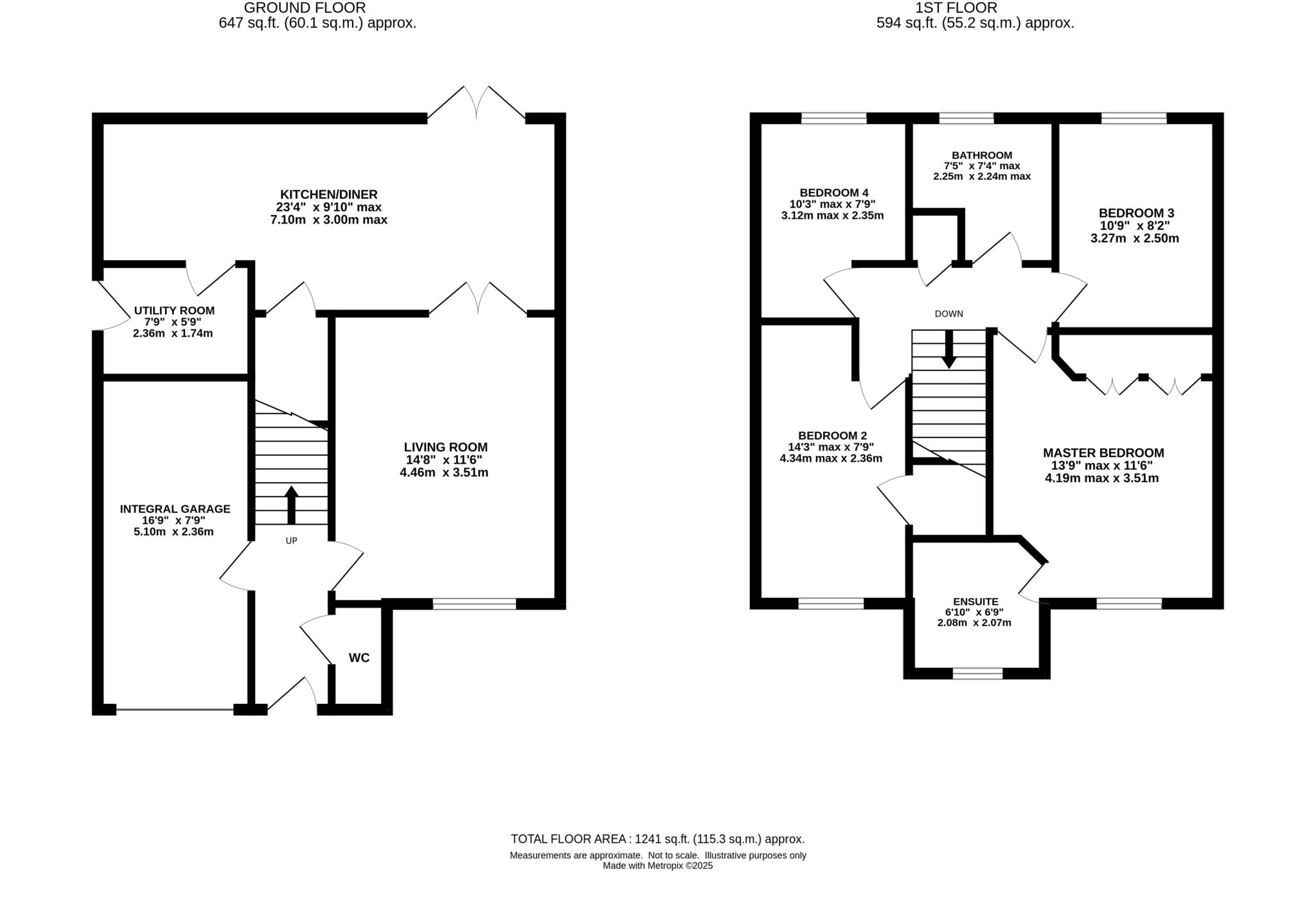
A freehold, detached family home, situated in a desirable residential area. Comprising of four bedrooms, bathroom, en-suite, and a single garage with integral access. Located close to local amenities, schools, and excellent transport links, it is ideal for families seeking comfort and convenience...
Property Oracle says ..
Therefore, we give this property 7 / 10. *Disclaimer: This is our option and does constitute a recommendation or financial advice. Do your own research. *
- Price
- 6
- Condition
- 9
- Location
- 7
- Land
- 8
- Bedrooms
- 4
- Bathrooms
- 2
- Sqft (est)
- 1,119.00
The heatmap indicates the level of crime in the area. The color of the heatmap indicates the crime severity and recency.
Metrics Year-on-Year
- Average area value
- 183,878.00 £Decreased by 22.92 %
- Est sale value
- 239,466.00 £Decreased by 17.37 %
- Average area rental value
- 1,019.00 £/moIncreased by 15.93 %
- Est letting value
- 1,119.00 £/mo
- Est rental Yield
- 6.65 %Increased by 50.45 %
- Crime Rate
- 3.00 %Unchanged by 0.00 %
from 238,551.00 £
from 289,821.00 £
from 879.00 £/mo
from 0.00 £/mo
from 4.42 %
from 3.00 %
Agent Activity
Gascoigne Halman created the listing.
Nearby Schools
| Name | Type | Ofsted | Distance |
|---|---|---|---|
| Priestley College | Academy 16-19 Converter | Good | 0.55 KM |
| Stockton Heath Primary School | Community School | Good | 0.70 KM |
| St Thomas' Cofe Primary School | Voluntary Aided School | Good | 0.81 KM |
| Latchford St James Cofe Primary School | Voluntary Aided School | Good | 1.24 KM |
| Our Lady'S Catholic Primary School | Voluntary Aided School | Good | 1.30 KM |
Images
Nearby Streets
| Name | Average Price | Average Sqft | Distance |
|---|---|---|---|
| Stafford Road | £ 257,475 | 0 | 0.00 KM |
| Trans Pennine Trail | £ 0 | 0 | 0.00 KM |
| Black Bear Park | £ 475,000 | 0 | 0.00 KM |
| Roman Road | £ 276,250 | 0 | 0.00 KM |
| Ellison Street | £ 266,250 | 0 | 0.00 KM |
Nearby Transport
| Name | NLC | TLC | Distance |
|---|---|---|---|
| Warrington Central | 2390 | WAC | 2.21 KM |
| Warrington Bank Quay | 2384 | WBQ | 2.50 KM |
| Padgate | 2387 | PDG | 4.46 KM |
| Warrington West | 6583 | WAW | 6.49 KM |
| Birchwood | 2304 | BWD | 7.61 KM |
Nearby Listings
| Address | Price | Type | Score | Distance |
|---|---|---|---|---|
| Wade Avenue, Warrington | £ 440,000 | BUY | 7 / 10 | 0.00 KM |
| Wade Avenue, The Heath, Warrington, WA4 | £ 370,000 | BUY | 7 / 10 | 0.02 KM |
| Wade Avenue, Warrington, WA4 | £ 465,000 | BUY | 8 / 10 | 0.04 KM |
| The Clock Tower, Elphins Drive, Warrington | £ 160,000 | BUY | 6 / 10 | 0.12 KM |
| The Clock Tower, Elphins Drive, Warrington | £ 110,000 | BUY | Unknown | 0.12 KM |
Nearby Properties
| Address | Price | Distance |
|---|---|---|
| 1 Wade Avenue | £ 299,995 | 0.05 KM |
| 21 Wade Avenue | £ 242,000 | 0.05 KM |
| 15 Wade Avenue | £ 312,500 | 0.05 KM |
| 19 Wade Avenue | £ 211,845 | 0.05 KM |
| 7 Wade Avenue | £ 355,000 | 0.05 KM |