Templeton, Narberth
FI

Templeton, Narberth

By Finest

£ 475,000

Reviews

3 out of 5 stars

Finest says ..

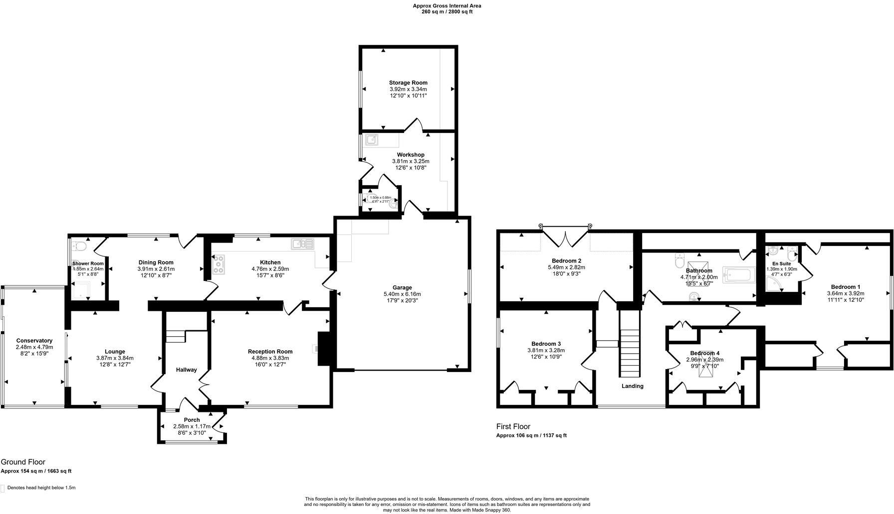
Welcome to David's Lake. This detached dormer bungalow is positioned on the outskirts of Templeton village, approximately 3 miles out of the quaint market town of Narberth, where most everyday amenities are available. This property would make a fantastic family home and offers the potential to de...

Property Oracle says ..

This detached bungalow in Templeton, Narberth, offers a blend of rural living with convenient access to nearby amenities. The property features four bedrooms and two bathrooms, making it suitable for families. While the house is in reasonable condition, it would benefit from some modernisation to enhance its appeal and value. The generous plot size and well-maintained garden provide ample outdoor space for relaxation and recreation. The location, while peaceful, is somewhat removed from major urban centers, which may be a consideration for some buyers. The price appears to be on the higher side compared to average property values in the area, considering the need for some updates.

Therefore, we give this property 6 / 10. *Disclaimer: This is our option and does constitute a recommendation or financial advice. Do your own research. *

Price
6
Condition
6
Location
7
Land
8
Bedrooms
4
Bathrooms
2

The heatmap indicates the level of crime in the area. The color of the heatmap indicates the crime severity and recency.

Metrics Year-on-Year

Average area value
278,905.00 £
Increased by 2.67 %
from 271,663.00 £
Average area rental value
800.00 £/mo
Decreased by 34.53 %
from 1,222.00 £/mo
Est rental Yield
3.44 %
Decreased by 36.30 %
from 5.40 %
Crime Rate
30.00 %
Unchanged by 0.00 %
from 30.00 %

Agent Activity

  • Finest created the listing.

Nearby Schools

NameTypeOfstedDistance
Templeton C.P. SchoolWelsh Establishment0.97 KM
Narberth Cp SchoolWelsh Establishment3.40 KM
Landsker EducationWelsh Establishment3.46 KM
Stepaside C.P. SchoolWelsh Establishment5.13 KM
Saundersfoot C.P. SchoolWelsh Establishment7.54 KM

Images

25 (34).jpg 2 - 2025-12-01T132440.272.jpg 3 - 2025-12-01T132443.414.jpg 17 (90).jpg 16 (92).jpg 5 - 2025-12-01T132447.026.jpg 6 - 2025-12-01T132451.800.jpg 1 - 2025-12-01T132439.025.jpg 14 (100).jpg 13 - 2025-12-01T132535.337.jpg 8 - 2025-12-01T132508.871.jpg 7 - 2025-12-01T132505.125.jpg 9 - 2025-12-01T132514.555.jpg 20 (72).jpg 22 (56).jpg 23 (45).jpg 15 (98).jpg 19 (77).jpg 24 (37).jpg 21 (58).jpg 18 (79).jpg 11 - 2025-12-01T132522.003.jpg 10 - 2025-12-01T132520.124.jpg 4 - 2025-12-01T132444.930.jpg 12 - 2025-12-01T132528.256.jpg

Nearby Streets

NameAverage PriceAverage SqftDistance
Tanner's Lane £ 000.00 KM

Nearby Transport

NameNLCTLCDistance
Narberth4098NAR3.64 KM
Kilgetty4083KGT4.93 KM
Saundersfoot4108SDF5.82 KM
Clunderwen4070CUW7.97 KM

Nearby Listings

AddressPriceTypeScoreDistance
Templeton, Narberth £ 475,000BUY6 / 100.00 KM
Kings Park, Templeton, Narberth £ 485,000BUY6 / 100.09 KM
Sentence Gardens, Templeton, Narberth £ 299,950BUY7 / 100.12 KM
Sentence Gardens, Templeton, Narberth £ 315,000BUY7 / 100.12 KM
Sentence Gardens, Templeton, Narberth £ 315,000BUY7 / 100.12 KM

Nearby Properties

AddressPriceDistance
Plot 2 Kings Park £ 59,9500.03 KM
3 Maple Court £ 214,0000.03 KM
2 Maple Court £ 300,0000.03 KM
16 Sentence Gardens £ 165,0000.07 KM
5 Sentence Gardens £ 77,0000.07 KM